| ||||||||||||||||||||||||||||
Скачать ГОСТ Р 58424-2019 Предохранительные устройства для станций и установок регулирования давления газа. Устройства защитного отключения газа для давления на входе до 10 МПаДата актуализации: 01.06.2025
| ||||||||||||||||||||||||||||
| Обозначение: | ![]() ГОСТ Р 58424-2019 |
| Статус: | действующий |
| Название рус.: | Предохранительные устройства для станций и установок регулирования давления газа. Устройства защитного отключения газа для давления на входе до 10 МПа |
| Название англ.: | Safety devices for gas pressure regulating stations and installations. Gas safety shut-off devices for inlet pressures up to 10 MPa |
| Дата актуализации текста: | 01.06.2022 |
| Дата актуализации описания: | 01.07.2023 |
| Дата издания: | 29.10.2019 |
| Дата введения: | 01.04.2020 |
| Нормативные ссылки: | ГОСТ 9.030; ГОСТ 5542 ; ГОСТ Р 56019; ГОСТ 6357; ГОСТ 9544; ГОСТ 13764; ГОСТ 13765; ГОСТ 16037; ГОСТ 21345; ГОСТ 28338; ГОСТ 30489; ГОСТ 33257; ГОСТ 33259; ГОСТ 33260; ГОСТ 33857; ГОСТ 34011; ГОСТ ИСО/МЭК 17025; ГОСТ ИСО 1817; ГОСТ Р 50753; ГОСТ Р 53687; ГОСТ Р 53688; ГОСТ Р 54006; ГОСТ Р 54795; ГОСТ Р 54803; ГОСТ Р 55508; ГОСТ Р 56019; ГОСТ Р 58423; ГОСТ Р ИСО 148-1; ГОСТ Р ИСО 9001; ГОСТ Р ИСО 15607; ГОСТ Р ИСО 15609-1; ГОСТ Р ИСО 15610; ГОСТ Р ИСО 15611; ГОСТ Р ИСО 15612; ГОСТ Р ИСО 15613; ГОСТ Р ИСО 15614-1; ГОСТ Р ИСО 15614-2; ГОСТ Р ИСО 15614-13; ГОСТ Р 56019-2014 |
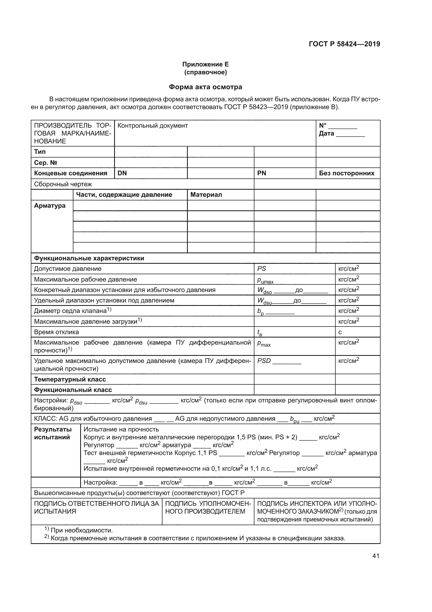
| Область применения: | Настоящий стандарт устанавливает требования к конструкции, функциональному исполнению, методам испытаний, маркировке, типовым размерам, классификации и документации предохранительных устройств (далее ЗПУ), используемых на пунктах, станциях и установках регулирования давления газа по ГОСТ Р 56019 и ГОСТ 34011 с параметрами: - давление газа на входе до 10 МПа; - номинальные диаметры до DN 400; - диапазон рабочих температур от минус 50°C до плюс 85°C; предназначенные для работы с горючими газами по ГОСТ 5542 в сетях передачи, распределения, а также в коммерческих и промышленных установках. Для стандартных ЗПУ при использовании в станциях и установках регулирования давления газа по ГОСТ Р 56019 и ГОСТ 34011, в настоящем стандарте учтены все применимые основные требования, за исключением требований к внешней коррозионной стойкости |
| Расположен в: | |





















































