| Обозначение: |  ГОСТ Р 58387-2024 |
| Статус: | действующий |
| Название рус.: | Анкеры клеевые для крепления в бетон. Методы испытаний |
| Название англ.: | Bonded anchors for use in concrete. Test methods |
| Дата актуализации текста: | 01.06.2025 |
| Дата актуализации описания: | 01.06.2025 |
| Дата издания: | 30.01.2025 |
| Дата введения: | 01.03.2025 |
| Взамен: | ГОСТ Р 58387-2019 |
| Нормативные ссылки: | ГОСТ 12.1.004; ГОСТ 12.2.003; ГОСТ 3057; ГОСТ 8267; ГОСТ 10180; ГОСТ 12004; ГОСТ 17624; ГОСТ 22690; ГОСТ 18793; ГОСТ 26633; ГОСТ 28570; ГОСТ 28836; ГОСТ 31108; ГОСТ 33530; ГОСТ 34028; ГОСТ Р 57787; ГОСТ Р 50779.12;ГОСТ ISO 898-1;ГОСТ ISO 3506-1;СП 513.1325800.2022 |
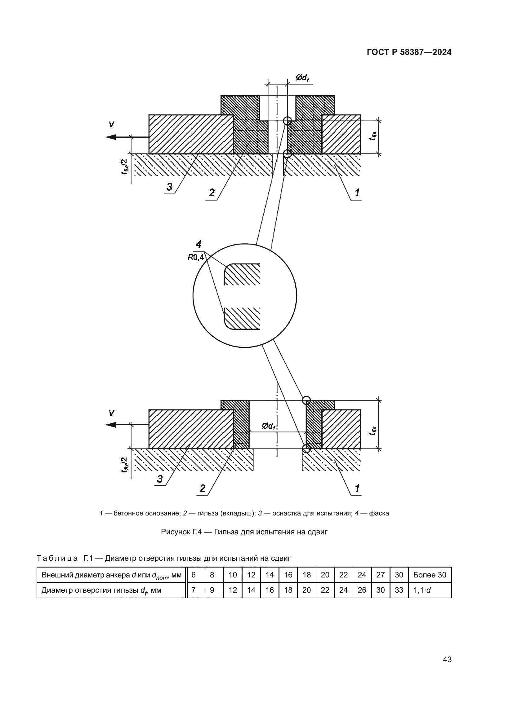
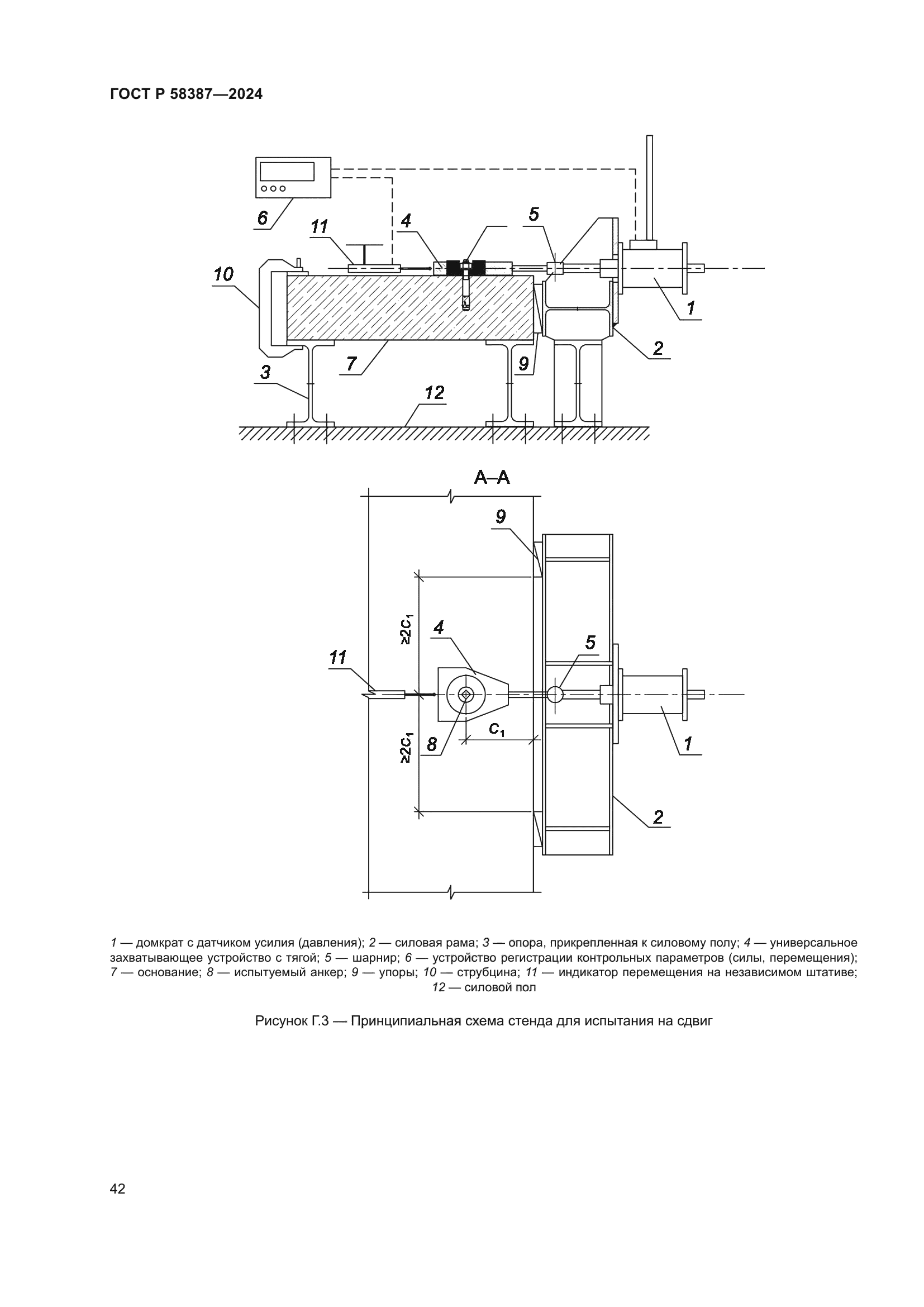
| Область применения: | Настоящий стандарт устанавливает методы испытания клеевых анкеров, установленных в готовое основание из тяжелого или мелкозернистого бетона класса прочности В15-В60, и определяет требования к оценке их прочностных и деформационных характеристик. Настоящий стандарт не распространяется на клеевые анкеры, компоненты которых дозируются вручную перед применением на строительном объекте без соответствующего инструмента, механические, пластиковые и распорно-клеевые анкеры и не содержит требований к оценке их несущей способности. Стандарт содержит требования к методам испытаний и оценке результатов испытаний анкеров только при действии статических (квазистатических) нагрузок |
|
| Расположен в: |
|