| ||||||||||||||||||||||||||||
Скачать ГОСТ Р 71659-2024 Диафрагмы жесткости железобетонные безопалубочного формования. Технические условияДата актуализации: 01.06.2025
| ||||||||||||||||||||||||||||
| Обозначение: | ![]() ГОСТ Р 71659-2024 |
| Статус: | действующий |
| Название рус.: | Диафрагмы жесткости железобетонные безопалубочного формования. Технические условия |
| Название англ.: | Stiffening diaphragms reinforced concrete of formless molding. Technical specifications |
| Дата актуализации текста: | 01.12.2024 |
| Дата актуализации описания: | 01.12.2024 |
| Дата издания: | 22.10.2024 |
| Дата введения: | 01.11.2024 |
| Нормативные ссылки: | ГОСТ 166; ГОСТ 427; ГОСТ 3749; ГОСТ 7348; ГОСТ 7502; ГОСТ 8026; ГОСТ 8829; ГОСТ 10060; ГОСТ 10180; ГОСТ 12730.0; ГОСТ 12730.1; ГОСТ 12730.3; ГОСТ 12730.5; ГОСТ 13015-2012; ГОСТ 14098; ГОСТ 15467; ГОСТ 16504; ГОСТ 17623; ГОСТ 17624; ГОСТ 17625; ГОСТ 18105; ГОСТ 22690; ГОСТ 22904; ГОСТ 23009; ГОСТ 23732; ГОСТ 24297; ГОСТ 26134; ГОСТ 26633; ГОСТ 27751; ГОСТ 31108; ГОСТ Р 57997; ГОСТ Р 58939; ГОСТ Р 58941; ГОСТ Р ИСО 9000;СП 28.13330;СП 63.13330;СП 468.1325800 |
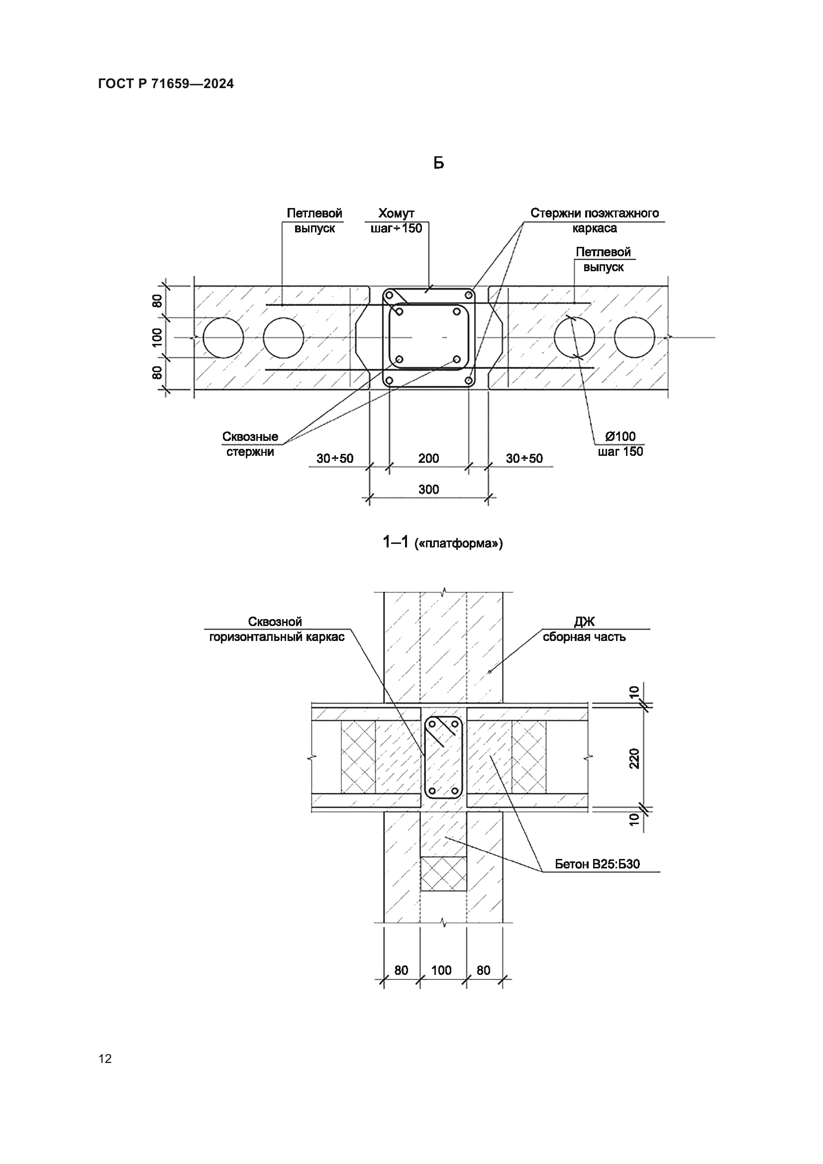
| Область применения: | Настоящий стандарт распространяется на железобетонные детали диафрагм жесткости, изготовляемые методом непрерывного формования на длинных стендах из тяжелого бетона (далее – детали диафрагм жесткости), предназначенные для использования в сборно-монолитных каркасах жилых и общественных зданий, а также производственных, административных и бытовых зданий промышленных предприятий нормального уровня ответственности по ГОСТ 27751 |
| Расположен в: | |



















