| Обозначение: |  ГОСТ Р 71658-2024 |
| Статус: | действующий |
| Название рус.: | Система проектной документации для строительства. Правила оформления проектной документации линейных объектов. Тепловые сети |
| Название англ.: | System of design documents for construction. Rules for the design documentation of linear objects. Thermal networks |
| Дата актуализации текста: | 01.12.2024 |
| Дата актуализации описания: | 01.12.2024 |
| Дата издания: | 18.10.2024 |
| Дата введения: | 01.11.2024 |
| Нормативные ссылки: | ГОСТ 2.302; ГОСТ 2.303; ГОСТ 21.201; ГОСТ 21.204-2020; ГОСТ 21.206; ГОСТ Р 21.001; ГОСТ Р 21.101; ГОСТ Р 21.302; ГОСТ 30732;СП 22.13330;СП 124.13330.2012 |
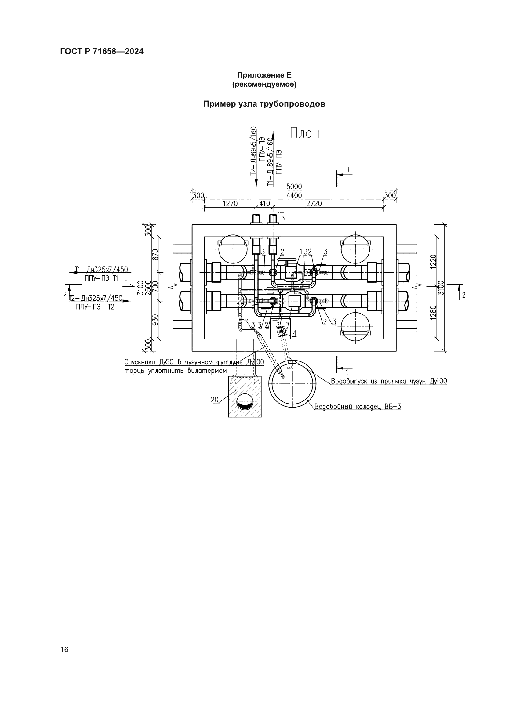
| Область применения: | Настоящий стандарт устанавливает правила выполнения и оформления разделов проектной документации для строительства и реконструкции линейных объектов тепловых сетей. Настоящий стандарт может использоваться при подготовке документации для капитального ремонта тепловых сетей |
|
| Расположен в: |
|