| Обозначение: |  ГОСТ Р 50571.5.54-2024 |
| Статус: | действующий |
| Название рус.: | Электроустановки низковольтные. Часть 5-54. Выбор и монтаж электрического оборудования. Заземляющие устройства и защитные проводники |
| Название англ.: | Low-voltage electrical installations. Part 5-54. Selection and erection of electrical equipment. Earthing arrangements and protective conductors |
| Дата актуализации текста: | 01.12.2024 |
| Дата актуализации описания: | 01.12.2024 |
| Дата издания: | 16.07.2024 |
| Дата введения: | 01.08.2024 |
| Взамен: | ГОСТ Р 50571.5.54-2013 |
| Содержит требования: | IEC 60364-5-54(2021) |
| Нормативные ссылки: | ГОСТ 30331.1; ГОСТ 31610.0; ГОСТ 33542;ГОСТ IEC 60079-14;ГОСТ IEC 60702-1;ГОСТ IEC 61439-1;ГОСТ IEC 61439-2;ГОСТ IEC 61439-6; ГОСТ Р 50571.4.41-2022; ГОСТ Р 50571.4.43-2012; ГОСТ Р 50571.4.44-2019; ГОСТ Р 50571.5.51-2013; ГОСТ Р 50571.5.52; ГОСТ Р 50571.7.701-2013; ГОСТ Р 50571.16; ГОСТ Р 58698-2019; ГОСТ Р 59789-2021; ГОСТ Р МЭК 60050-826; ГОСТ Р МЭК 60724; ГОСТ Р МЭК 60949; ГОСТ Р МЭК 61534.1; ГОСТ Р МЭК 62305-1 |
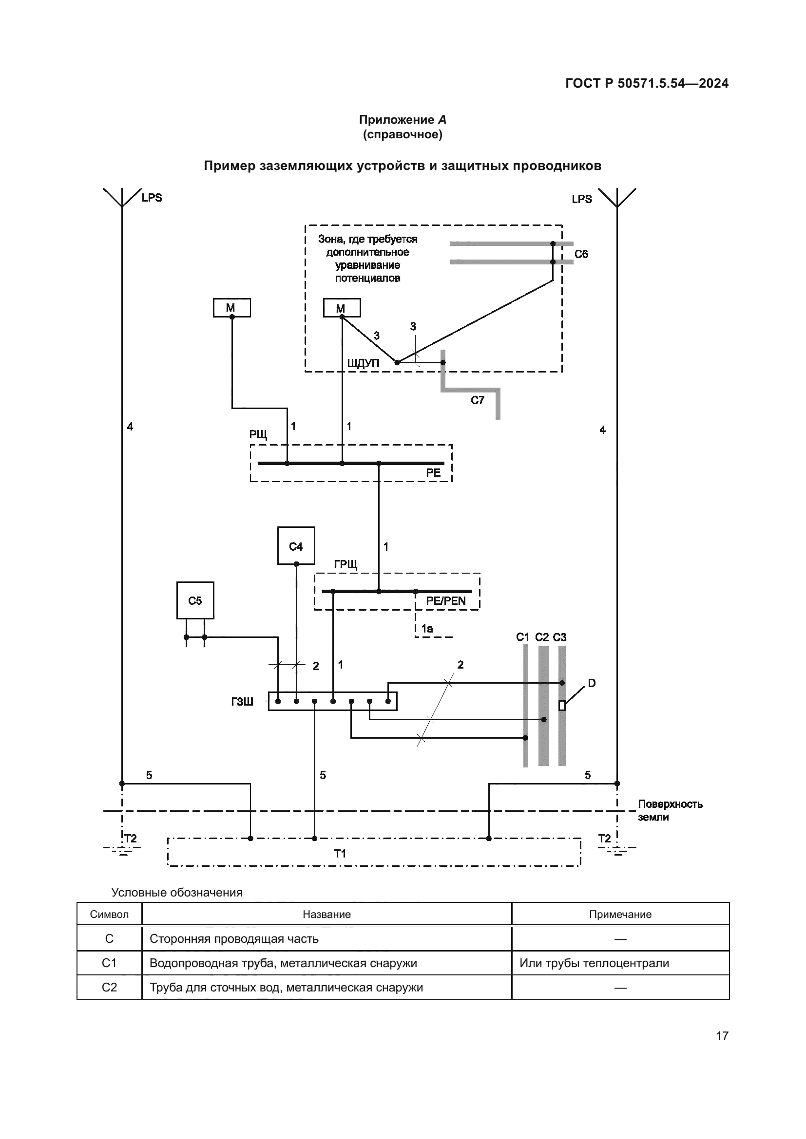
| Область применения: | Настоящий стандарт устанавливает требования к заземляющим устройствам, защитным проводникам, включая защитные проводники уравнивания потенциалов, применяемым для обеспечения электрической безопасности в электрических установках. Настоящий стандарт также устанавливает требования к заземлению и выравниванию потенциалов для ИКТ с целью: - снижения риска электрических опасностей для надлежащей эксплуатации этих устройств и электропроводок информационно-коммуникационных технологий; - обеспечения телекоммуникационных систем стабильным опорным потенциалом, необходимым для устойчивости рабочего сигнала при электромагнитных помехах (ЭМП) (см. [1]) |
|
| Расположен в: |
|