| Обозначение: |  ГОСТ ISO 14119-2023 |
| Статус: | принят |
| Название рус.: | Безопасность машин. Блокировочные устройства для защитных ограждений. Принципы конструирования и выбора |
| Название англ.: | Safety of machinery. Interlocking devices associated with guards. Principles for design and selection |
| Дата актуализации текста: | 01.12.2024 |
| Дата актуализации описания: | 01.12.2024 |
| Дата регистрации: | 25.09.2023 |
| Дата издания: | 09.07.2024 |
| Дата введения: | 01.12.2025 |
| Взамен: | ГОСТ ЕН 1088-2002 |
| Аутентичен стандартам: | ISO 14119:2013 |
| Нормативные ссылки: | ISO 12100:2010;ISO 13849-1:2006;ISO 13849-2:2012;IEC 60204-1(2009);IEC 60947-5-3;IEC 62061(2012) |
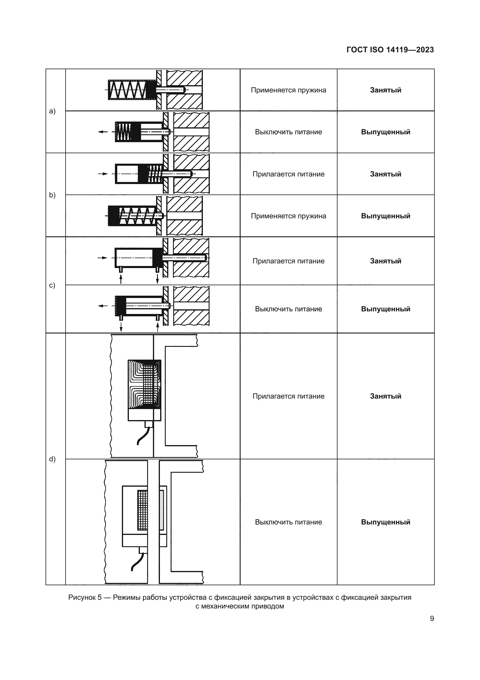
| Область применения: | Настоящий стандарт устанавливает принципы конструирования и выбора - независимо от характера источника энергии - блокировочных устройств, связанных с ограждениями. Настоящий стандарт распространяется на части ограждений, которые приводят в действие блокировочного устройства. Настоящий стандарт не применяется к системам (защитным ограждениям) с блокировкой ключами. Настоящий стандарт содержит меры по снижению риска получения травм от блокировочных устройств |
|
| Расположен в: |
|