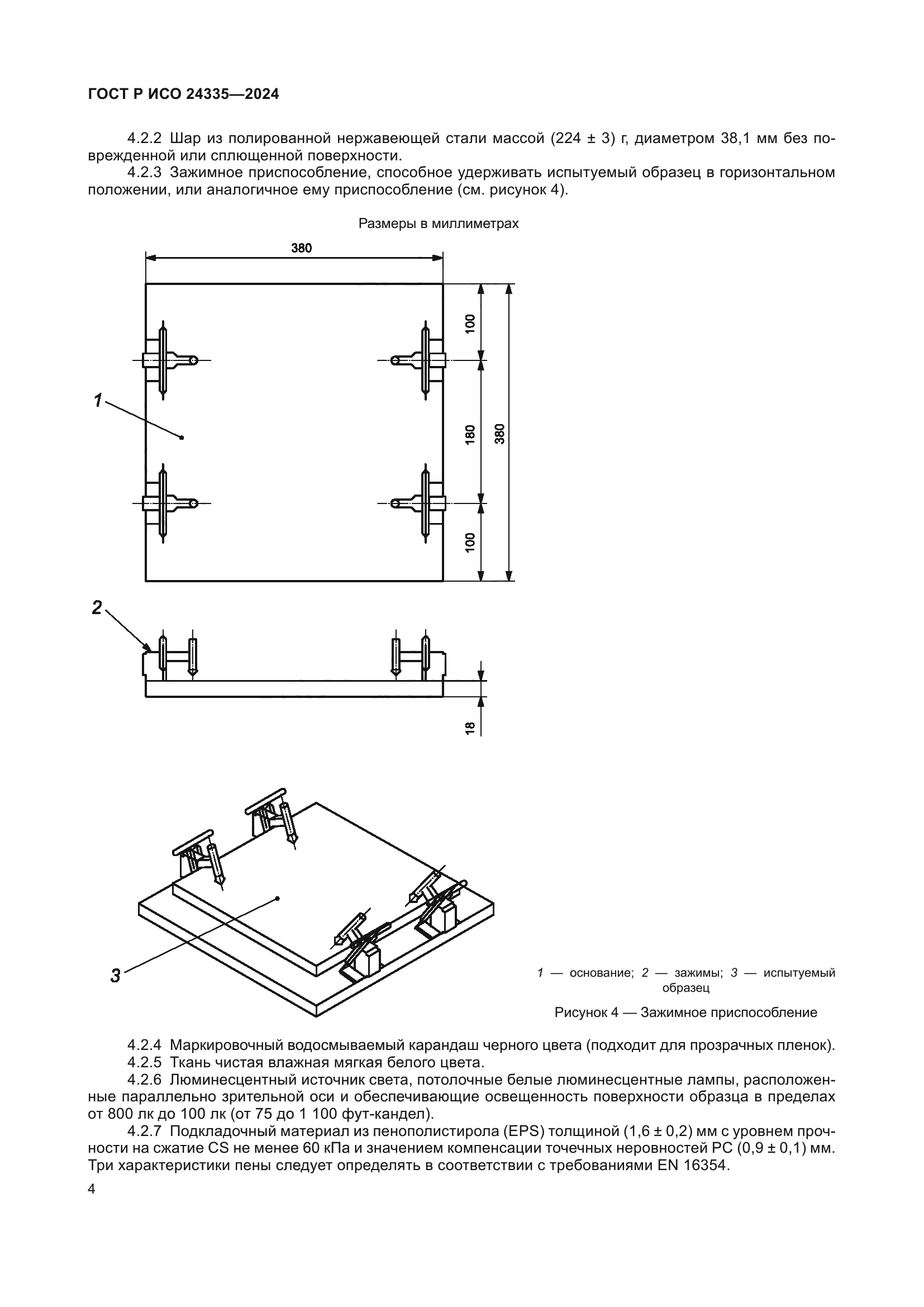
| Обозначение: |  ГОСТ Р ИСО 24335-2024 |
| Статус: | действующий |
| Название рус.: | Покрытия напольные ламинированные. Метод определения устойчивости к ударным воздействиям |
| Название англ.: | Laminate floor coverings. Method for determining impact resistance |
| Дата актуализации текста: | 01.12.2024 |
| Дата актуализации описания: | 01.12.2024 |
| Дата издания: | 27.05.2024 |
| Дата введения: | 01.12.2024 |
| Аутентичен стандартам: | ISO 24335:2022 |
| Нормативные ссылки: | EN 16354 |
| Область применения: | Настоящий стандарт устанавливает метод определения устойчивости к ударным воздействиям на ламинированное напольное покрытие. Описываемый метод позволяет определить способность поверхностного слоя покрытия выдерживать удары брошенных на него как мелких, так и крупных предметов. Испытание носит деструктивный характер за счет воздействия на поверхностный слой покрытия одного маленького и одного более крупного стальных шаров, моделирующих разные сценарии испытаний. Способность покрытия выдерживать ударные воздействия определяют при помощи высоты падения на него стальных шаров малого и большого диаметров. Испытания с использованием стальных шаров малого и большого диаметров проводят на частях ламинированных напольных панелей подходящих размеров. Точность метода испытаний при использовании стального шара большого диаметра неизвестна. Когда будут известны результаты межлабораторных исследований, тогда в последующих версиях настоящего стандарта будет описана данная точность. Точность метода при использовании шара малого диаметра приведена в разделе 8 |
|
| Расположен в: |
|