| Обозначение: |    ГОСТ 12595.1-2024 | 
| Статус: | действующий | 
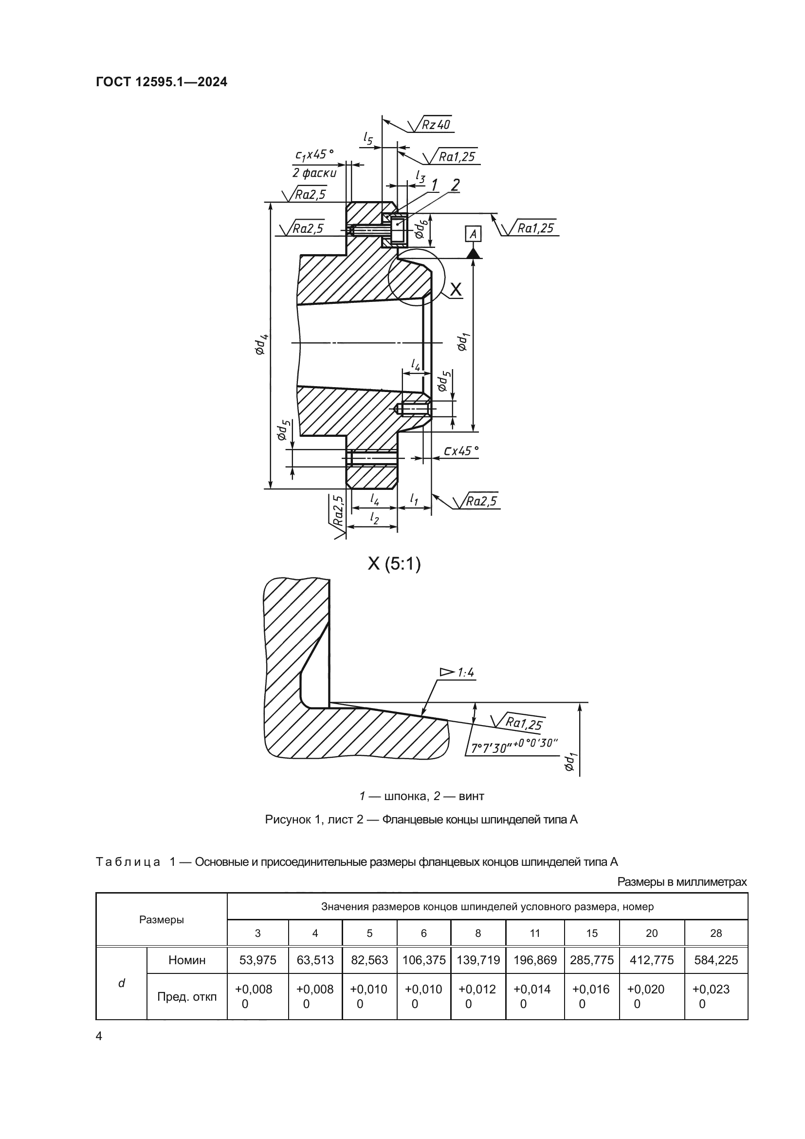
| Название рус.: | Станки металлорежущие. Концы шпинделей фланцевые типа А и фланцы зажимных устройств. Основные и присоединительные размеры | 
| Название англ.: | Metal-cutting machine tools. Flanged spindle noses of A type and flanges of fixtures. Basic and coupling dimensions | 
| Дата актуализации текста: | 01.12.2024 | 
| Дата актуализации описания: | 01.12.2024 | 
| Дата регистрации: | 31.01.2024 | 
| Дата издания: | 30.10.2024 | 
| Дата введения: | 01.06.2024 | 
| Взамен: |  ГОСТ 12595-2003 | 
| Содержит требования: | ISO 702-1:2009 | 
| Нормативные ссылки: |  ГОСТ 9.306; ГОСТ 1050; ГОСТ 2789; ГОСТ 2848; ГОСТ 10549; ГОСТ 11738; ГОСТ 16093; ГОСТ 24705; ГОСТ 25557 | 
| Область применения: | Настоящий стандарт распространяется на фланцевые концы шпинделей с коротким конусом типа А для токарных и шлифовальных станков, а также на фланцы зажимных устройств, устанавливаемых на концы шпинделей. Стандарт не распространяется на станки, техническое задание на разработку которых утверждено до введения в действие настоящего стандарта | 
| Приложение №1: | Поправка к ГОСТ 12595.1-2024 | 
| Приложение №2: | Поправка к ГОСТ 12595.1-2024 | 
 | 
| Расположен в: | 
  |