| Обозначение: |  ГОСТ Р 71127-2023 |
| Статус: | действующий |
| Название рус.: | Нефтяная и газовая промышленность. Средства защиты строительных конструкций от воздействия криогенных сред. Общие требования. Методы испытаний |
| Название англ.: | Oil and gas industry. Means of protection of building structures from the impact of cryogenic environments. General requirements. Test methods |
| Дата актуализации текста: | 01.01.2024 |
| Дата актуализации описания: | 01.06.2024 |
| Дата издания: | 25.12.2023 |
| Дата введения: | 01.04.2024 |
| Нормативные ссылки: | ГОСТ 380 ; ГОСТ 3262; ГОСТ 5264; ГОСТ 6616; ГОСТ 9293; ГОСТ 14771; ГОСТ 30245; ГОСТ 32678;ГОСТ EN 823; ГОСТ Р 53295; ГОСТ Р 58915; ГОСТ Р 58966 |
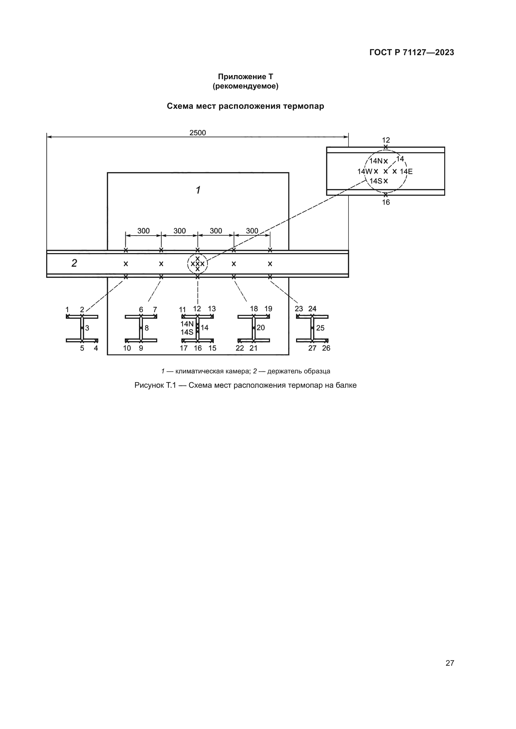
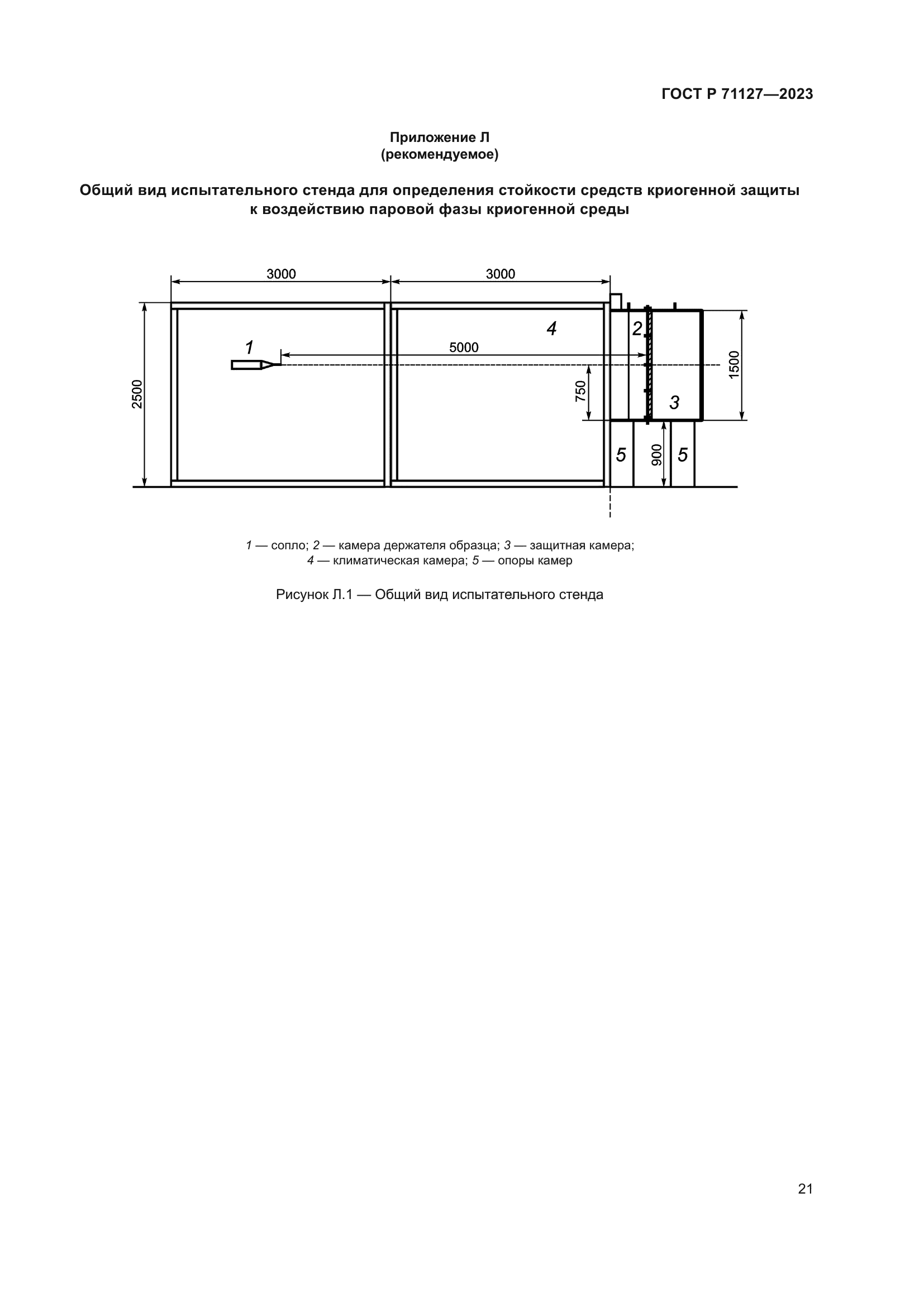
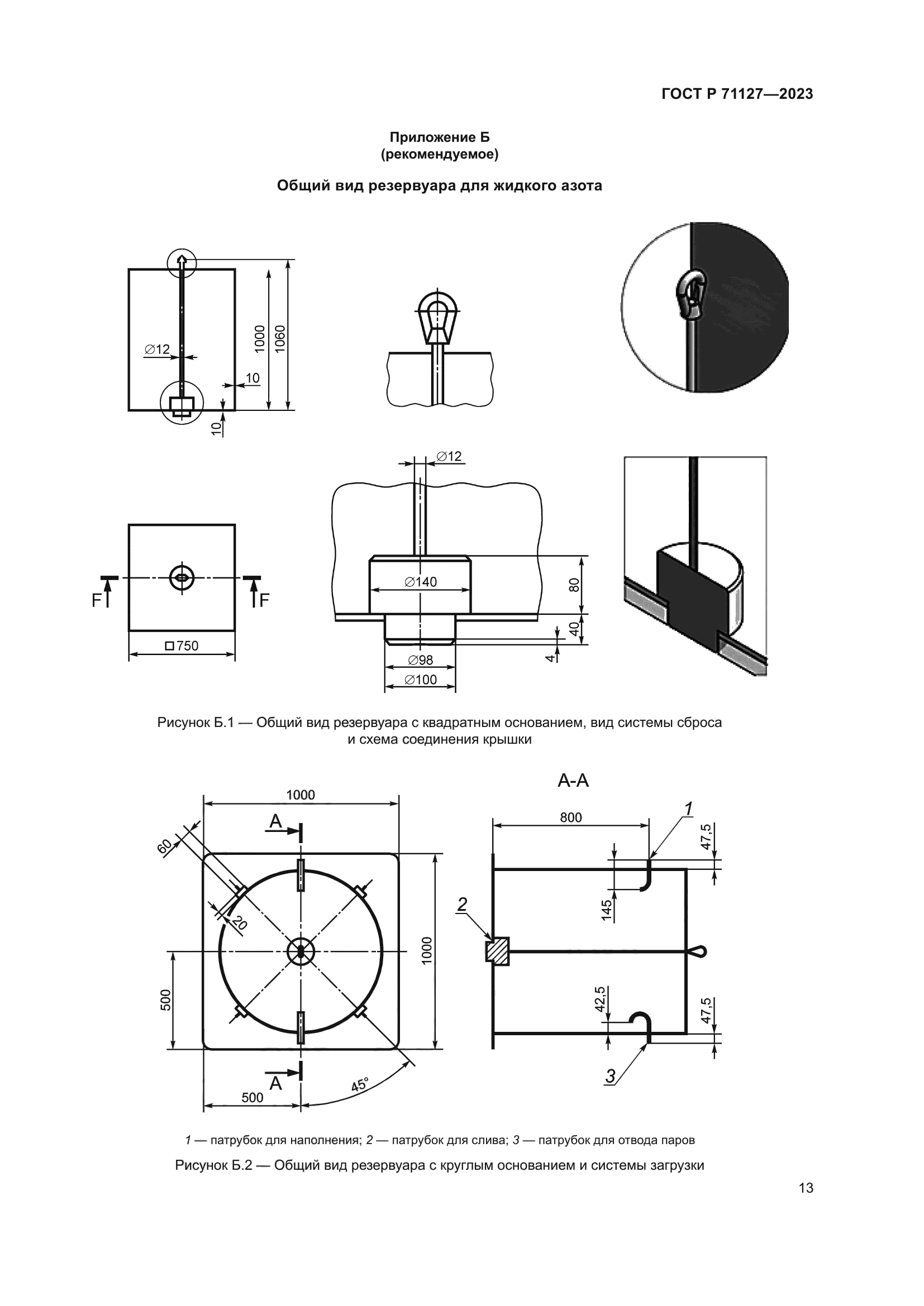
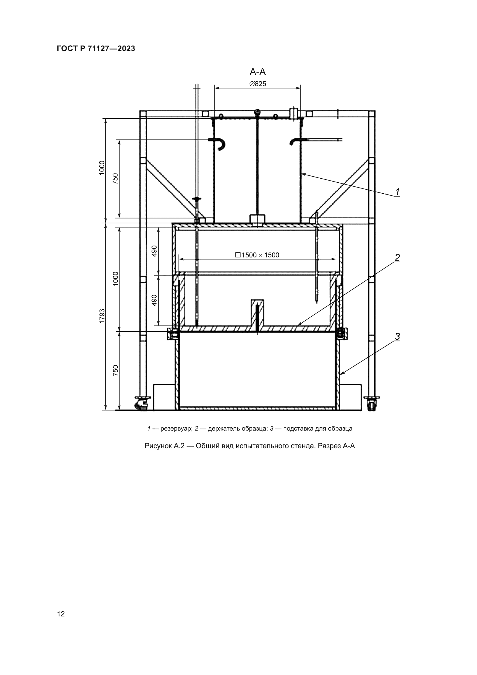
| Область применения: | Настоящий стандарт устанавливает общие требования к средствам защиты строительных конструкций от пролива криогенных сред, а также методы испытаний на определение их стойкости к воздействию жидкой, паровой фазы и струи выбранной криогенной среды |
|
| Расположен в: |
|