| Обозначение: |  ГОСТ Р 60.5.3.4-2023 |
| Статус: | действующий |
| Название рус.: | Роботы и робототехнические устройства. Методы испытаний экзоскелетов. Оценка рабочих характеристик и безопасности экзоскелета при перемещении в ограниченном пространстве |
| Название англ.: | Robots and robotic devices. Test methods for exoskeletons. Evaluation of the performance and safety of the exoskeleton when moving in a confined space |
| Дата актуализации текста: | 01.01.2024 |
| Дата актуализации описания: | 01.01.2024 |
| Дата издания: | 13.12.2023 |
| Дата введения: | 01.01.2024 |
| Нормативные ссылки: | ГОСТ 8486; ГОСТ 8509; ГОСТ 32274; ГОСТ Р 60.0.0.4-2023; ГОСТ Р 60.5.0.1; ГОСТ Р 60.2.2.1; ГОСТ Р 60.2.2.4-2023; ГОСТ Р 60.6.3.26; ГОСТ Р 56927 |
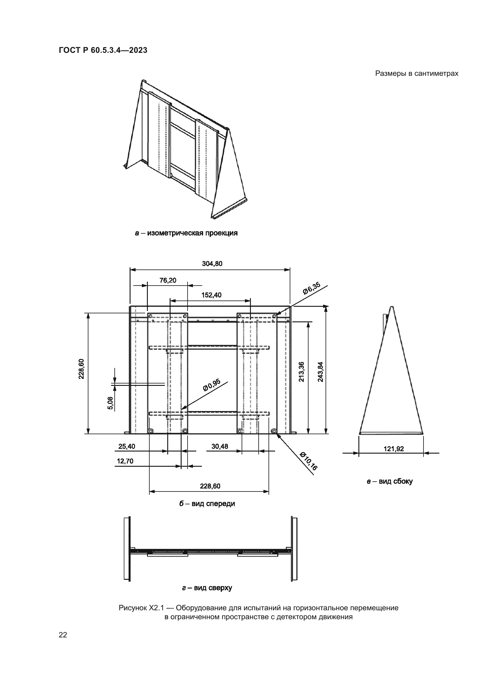
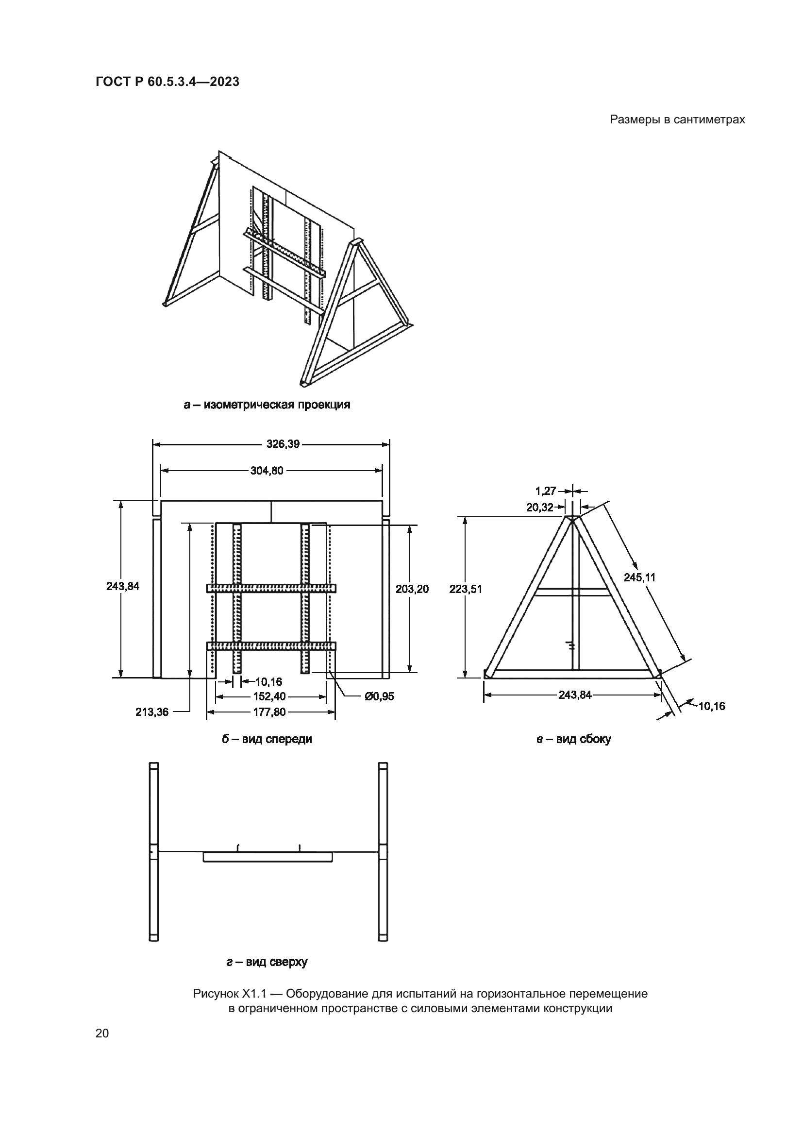
| Область применения: | Метод испытаний, установленный в настоящем стандарте, является частью комплекса методов испытаний экзоскелетов и предназначен для получения количественной оценки рабочих характеристик экзоскелетов и/или безопасности использования экзоскелетов при горизонтальном перемещении пользователя в ограниченных пространствах. Экзоскелеты должны обладать определенным набором возможностей по обеспечению допустимых перемещений пользователя, включая приспособляемость к движениям пользователя для выполнения работы в таких областях как промышленная, военная, аварийно-спасательная, медицинская и др. Внешняя среда в данных областях применения часто накладывает разные ограничения на движения пользователя экзоскелета. Важным качеством экзоскелета при выполнении разнообразных заданий должна быть способность проходить через и/или маневрировать в ограниченном пространстве. В данном методе испытаний определено испытательное оборудование, позволяющее стандартизировать выполнение заданий при испытаниях способности пользователя экзоскелета осуществлять движения в ограниченном пространстве в горизонтальном направлении |
|
| Расположен в: |
|