| Обозначение: |  ГОСТ Р 60.6.3.26-2023 |
| Статус: | действующий |
| Название рус.: | Роботы и робототехнические устройства. Методы испытаний сервисных мобильных роботов для работы в экстремальных условиях. Логистика. Конфигурация робототехнического комплекса |
| Название англ.: | Robots and robotic devices. Test methods for service mobile robots for work in extreme conditions. Logistics. Robotic system configuration |
| Дата актуализации текста: | 01.01.2024 |
| Дата актуализации описания: | 01.01.2024 |
| Дата издания: | 28.09.2023 |
| Дата введения: | 01.01.2024 |
| Содержит требования: | АСТМ Е3132/Е3132М-17 |
| Нормативные ссылки: | ГОСТ Р 60.6.3.25 |
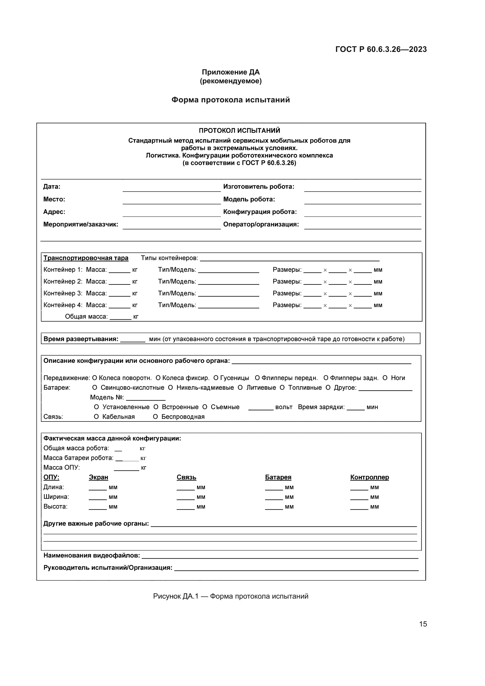
| Область применения: | Настоящий стандарт устанавливает метод идентификации и документирования конфигурации проходящих испытания робототехнических комплексов для работы в экстремальных условиях. Конфигурация робототехнического комплекса содержит основные массогабаритные параметры, перечень комплектующих изделий комплекса, а также время, необходимое для приведения комплекса в работоспособное состояние и его технического обслуживания |
|
| Расположен в: |
|