| Обозначение: |  ГОСТ Р 51190-98 |
| Статус: | действующий |
| Название рус.: | Трубопроводы тормозного пневматического привода автотранспортных средств с применением полиамидных труб. Общие технические требования |
| Название англ.: | Tubings for air brake systems of road vehicles with the use of polyamide tubes. General technical requirements |
| Дата актуализации текста: | 06.04.2015 |
| Дата актуализации описания: | 01.07.2023 |
| Дата издания: | 01.11.2003 |
| Дата введения: | 01.01.1999 |
| Код ОКП: | 450000 |
| Нормативные ссылки: | ГОСТ 12.3.030-83 ; ГОСТ 4364-81; ГОСТ 6507-90; ГОСТ 15150-69 |
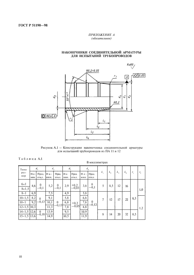
| Область применения: | Настоящий стандарт распространяется на трубопроводы пневматических тормозных приводов автотранспортных средств, изготовленные с применением пластмассовых труб на основе пластифицированного или модифицированного полиамидов 11 или 12 (цифры 11 и 12 означают тип полимера и указывают количество атомов углерода в основной цепи макромолекулы вещества). Стандарт устанавливает общие технические требования к эксплуатационным свойствам трубопроводов, а также методы их испытаний |
|
| Расположен в: |
|