| ||||||||||||||||||||||||||||||||||||||||||
Скачать ГОСТ Р 51720-2001 Мешки из полимерных пленок. Общие технические условияДата актуализации: 01.06.2025
| ||||||||||||||||||||||||||||||||||||||||||
| Обозначение: | ![]() ГОСТ Р 51720-2001 |
| Статус: | отменён |
| Название рус.: | Мешки из полимерных пленок. Общие технические условия |
| Название англ.: | Polymeric sacks. General specifications |
| Дата актуализации текста: | 06.04.2015 |
| Дата актуализации описания: | 01.07.2023 |
| Дата издания: | 01.12.2003 |
| Дата введения: | 01.01.2002 |
| Дата окончания срока действия: | 01.07.2014 |
| Код ОКП: | 229719 |
| На территории РФ пользоваться: | ГОСТ 32521-2013 |
| Нормативные ссылки: | ГОСТ 12.1.004-91; ГОСТ 12.1.010-76; ГОСТ 12.2.003-91; ГОСТ 12.2.061-81; ГОСТ 12.3.030-83; ГОСТ 12.4.011-89; ГОСТ 427-75; ГОСТ 10178-85; ГОСТ 10354-82; ГОСТ 14192-96; ГОСТ 14236-81; ГОСТ 15140-78; ГОСТ 16337-77; ГОСТ 17035-86; ГОСТ 17308-88; ГОСТ 17811-78; ГОСТ 18106-72; ГОСТ 18425-73; ГОСТ 19433-88; ГОСТ 20477-86; ГОСТ 21798-76; ГОСТ 26319-84; ГОСТ 26663-85; ГОСТ Р 50460-92 |
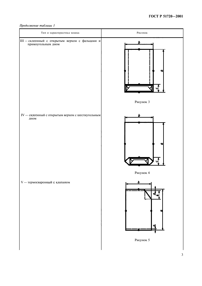
| Область применения: | Настоящий стандарт распространяется на мешки из полимерных пленок, предназначенные для упаковывания, транспортирования и хранения сыпучей продукции массой до (50 плюс минус 1) кг, температурой от минус 40 до плюс 60 град. С. Допускается применять мешки для упаковывания другой продукции при условии обеспечения качества и сохранности продукции при ее транспортировании и хранении |
| Список изменений: | №0 от 30.06.2014 (рег. 22.11.2013) «Текстовое изменение; Изменено заглавие» №1 от 01.03.2009 (рег. 13.11.2008) «Текстовое изменение; Изменены ссылочные НД» |
| Приложение №1: | Изменение №1 к ГОСТ Р 51720-2001 |
| Расположен в: | |


















| Обозначение: | Изменение №1 к ГОСТ Р 51720-2001 |
| Дата введения: | 01.03.2009 |


