| ||||||||||||||||||||||||||||||||||
Скачать ГОСТ 11265-73 Кнехты. Технические условияДата актуализации: 01.06.2025
| ||||||||||||||||||||||||||||||||||
| Обозначение: | ![]() ГОСТ 11265-73 |
| Статус: | действующий |
| Название рус.: | Кнехты. Технические условия |
| Название англ.: | Bitts. Specifications |
| Дата актуализации текста: | 06.04.2015 |
| Дата актуализации описания: | 01.07.2023 |
| Дата издания: | 01.12.2003 |
| Дата введения: | 01.01.1974 |
| Код ОКП: | 641210 |
| Взамен: | ГОСТ 11265-65 |
| Нормативные ссылки: | ГОСТ 2.601-95; ГОСТ 9.032-74; ГОСТ 9.104-79; ГОСТ 380-94; ГОСТ 1050-88; ГОСТ 1412-85; ГОСТ 2789-73; ГОСТ 3083-80; ГОСТ 5264-80; ГОСТ 8732-78; ГОСТ 8734-75; ГОСТ 9467-75; ГОСТ 9570-84; ГОСТ 14771-76; ГОСТ 15150-69; ГОСТ 18477-79; ГОСТ 19848-74; ГОСТ 26645-85; ГОСТ 30055-93;СТ СЭВ 1318-78;СТ СЭВ 1319-78 |
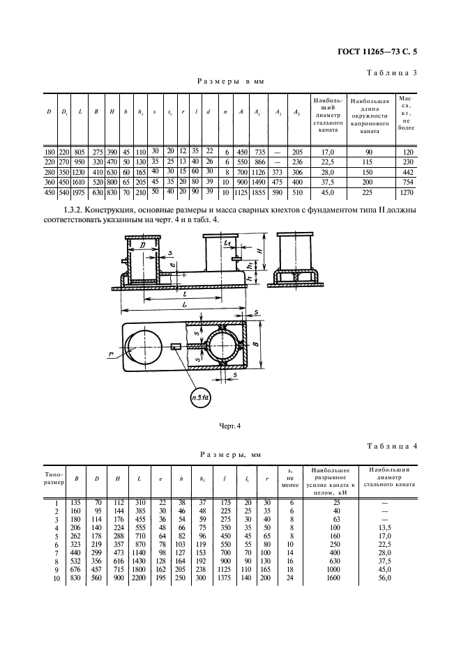
| Область применения: | Настоящий стандарт распространяется на кнехты швартовных и буксирных устройств, предназначенных для надводных кораблей, судов и плавсредств всех классов, типов и назначений. Стандарт не распространяется на литые кнехты из легких сплавов |
| Список изменений: | №1 от 01.01.1980 (рег. 14.12.1979) «Срок действия продлен» №2 от 01.01.1985 (рег. 22.05.1984) «Срок действия продлен» №3 от 01.01.1989 (рег. 25.04.1988) «Срок действия продлен» |
| Расположен в: | |














