| Обозначение: |  ГОСТ Р 70456-2022 |
| Статус: | действующий |
| Название рус.: | Дороги автомобильные общего пользования. Грунты. Определение оптимальной влажности и максимальной плотности методом Проктора |
| Название англ.: | Automobile roads of general use. Soils. Determination of optimum moisture and maximum density by Proctor method |
| Дата актуализации текста: | 01.01.2023 |
| Дата актуализации описания: | 01.07.2023 |
| Дата издания: | 07.12.2022 |
| Дата введения: | 01.01.2023 |
| Нормативные ссылки: | ГОСТ 12.4.131; ГОСТ 12.4.132; ГОСТ 12.4.252; ГОСТ 5180; ГОСТ 12701; ГОСТ 22733; ГОСТ 33028; ГОСТ 33057; ГОСТ Р 51568; ГОСТ Р 58407.2 |
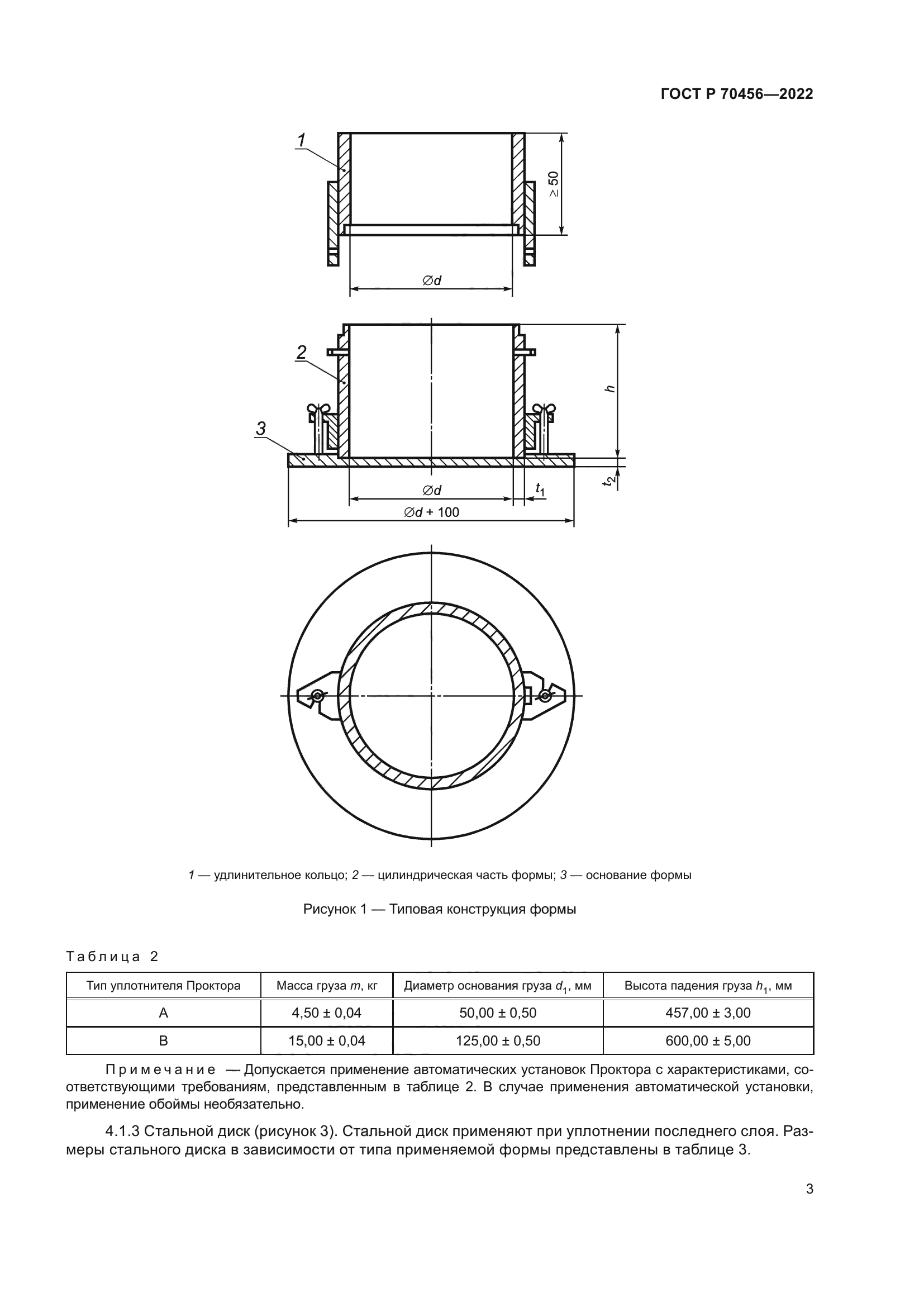
| Область применения: | Настоящий стандарт распространяется на грунты и щебеночно-гравийно-песчаные смеси, необработанные и обработанные вяжущими материалами, применяемые на автомобильных дорогах общего пользования, и устанавливает метод определения оптимальной влажности и максимальной плотности с применением модифицированного уплотнителя Проктора (далее – уплотнитель Проктора). Настоящий стандарт не распространяется на грунты и щебеночно-гравийно-песчаные смеси, содержащие более 25 % частиц крупнее 63 мм |
|
| Расположен в: |
|