| Обозначение: |  ГОСТ Р 70064.3-2022 |
| Статус: | действующий |
| Название рус.: | Фильтры очистки воздуха общего назначения. Часть 3. Определение зависимости пылезадерживающей способности и перепада давления от массы уловленной контрольной пыли |
| Название англ.: | Air filters for general ventilation. Part 3. Determination of the gravimetric efficiency and the air flow resistance versus the mass of test dust captured |
| Дата актуализации текста: | 01.01.2023 |
| Дата актуализации описания: | 01.01.2025 |
| Дата издания: | 23.09.2022 |
| Дата введения: | 01.01.2023 |
| Дата окончания срока действия: | 01.01.2026 |
| Заменяющий: | ГОСТ Р 71490-2024 |
| Содержит требования: | ISO 16890-3:2016 |
| Нормативные ссылки: | ГОСТ Р 70064.1; ГОСТ Р 70064.22022; ГОСТ Р 70064.4; ГОСТ Р ЕН 1822-1; ГОСТ Р ЕН 1822-2; ГОСТ Р ЕН 1822-3; ГОСТ Р ЕН 1822-4; ГОСТ Р ЕН 1822-5; ГОСТ Р ЕН 14799 |
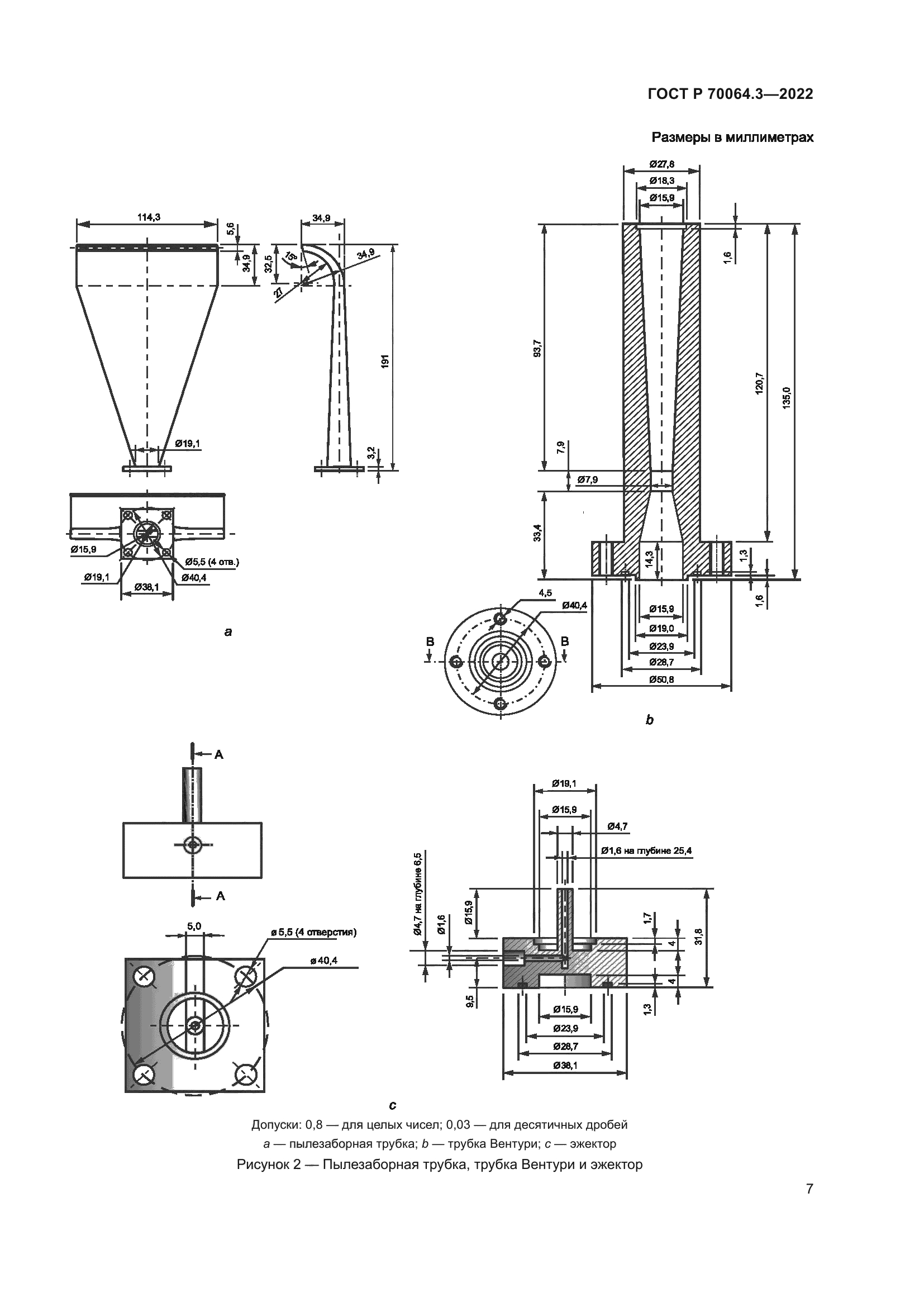
| Область применения: | Настоящий стандарт устанавливает испытательное оборудование и методики испытаний для определения пылезадерживающей способности и перепада давления фильтров очистки воздуха общего назначения. Настоящий стандарт предназначен для применения вместе с ГОСТ Р 70064.1, ГОСТ Р 70064.2 и ГОСТ Р 70064.4. Метод испытаний, установленный в настоящем стандарте, применим при расходе воздуха в испытательном стенде с номинальной площадью поперечного сечения 610 Ч 610 мм в диапазоне от 0,25 до 1,5 м3/с. Все стандарты серии ГОСТ Р 70064 применяют для фильтров очистки воздуха общего назначения, имеющих эффективность ePM1 не более 99 % и ePM10 более 20 % при проведении испытаний в соответствии с процедурами, установленными в стандартах серии ГОСТ Р 70064 |
|
| Расположен в: |
|