| Обозначение: |  ГОСТ Р 59978.1-2022 |
| Статус: | действующий |
| Название рус.: | Конструкции для удаления дымовых газов. Теплотехнический и аэродинамический расчет. Часть 1. Конструкции для удаления дымовых газов от одного источника тепла |
| Название англ.: | Chimneys. Thermal and fluid dynamic calculations. Part 1. Chimneys serving one heating appliance |
| Дата актуализации текста: | 01.01.2023 |
| Дата актуализации описания: | 01.07.2023 |
| Дата издания: | 03.08.2022 |
| Дата введения: | 01.01.2023 |
| Содержит требования: | DIN EN 13384-1:2015+А1:2019 |
| Нормативные ссылки: | ГОСТ Р 59375.1; ГОСТ Р 59376; ГОСТ Р 59412 |
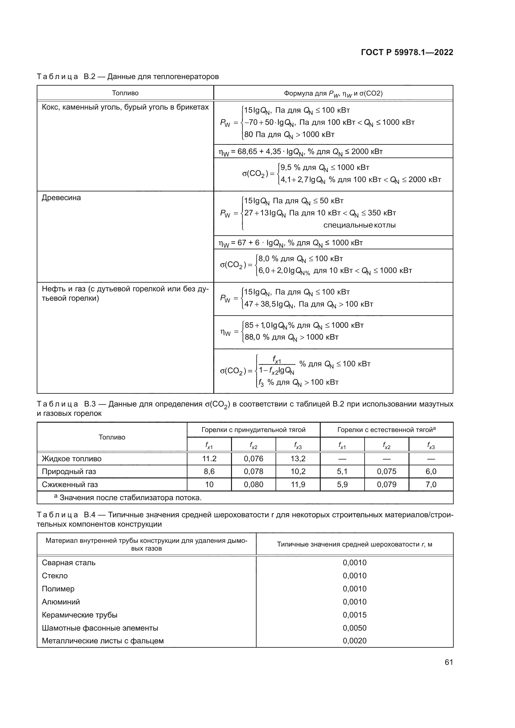
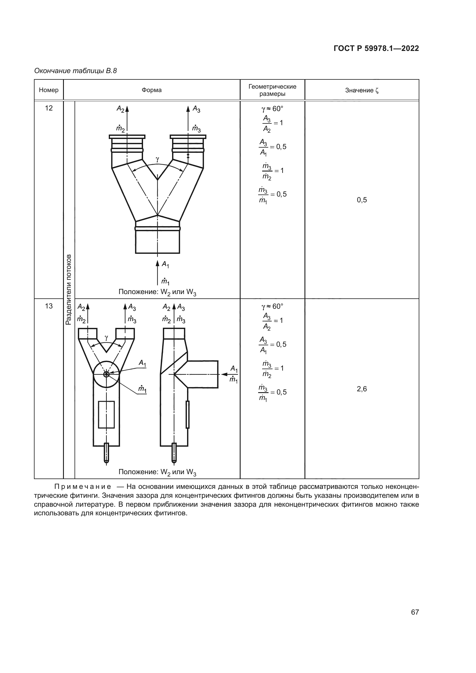
| Область применения: | Настоящий стандарт устанавливает методики вычисления теплотехнических и аэродинамических характеристик конструкций для удаления дымовых газов, с присоединенным одним источником тепла. Методики в настоящем стандарте применимы к конструкциям для удаления дымовых газов, работающих под разрежением или с избыточным давлением для сухих или влажных условий эксплуатации. Стандарт применим к конструкциям для удаления дымовых газов с присоединенными источниками тепла при условии, что для топлива известны характеристики дымовых газов, используемые в вычислениях |
|
| Расположен в: |
|