| Обозначение: |  ГОСТ Р 70107-2022 |
| Статус: | действующий |
| Название рус.: | Системы газораспределительные. Сети газораспределения. Общие требования к графическому отображению объектов сетей газораспределения |
| Название англ.: | Gas distribution systems. Gas distribution networks. General requirements for graphic display of gas distribution networks objects |
| Дата актуализации текста: | 01.01.2024 |
| Дата актуализации описания: | 01.07.2023 |
| Дата издания: | 03.06.2022 |
| Дата введения: | 01.11.2022 |
| Нормативные ссылки: | ГОСТ 2.303; ГОСТ 2.304; ГОСТ 2.701; ГОСТ 2.721; ГОСТ 21.208; ГОСТ 5542; ГОСТ 20448; ГОСТ Р 52087; ГОСТ Р 53865; ГОСТ Р 54983 |
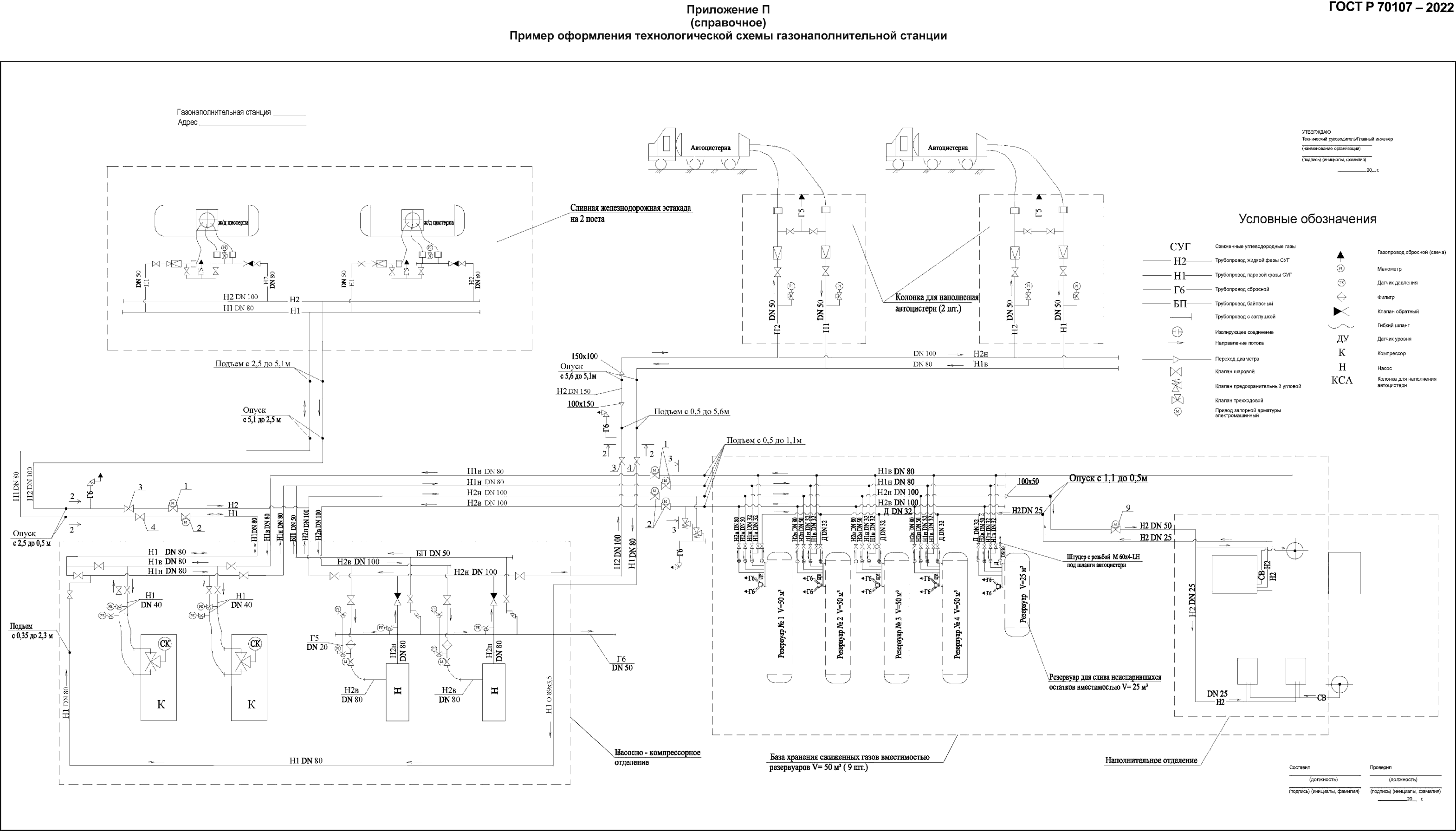
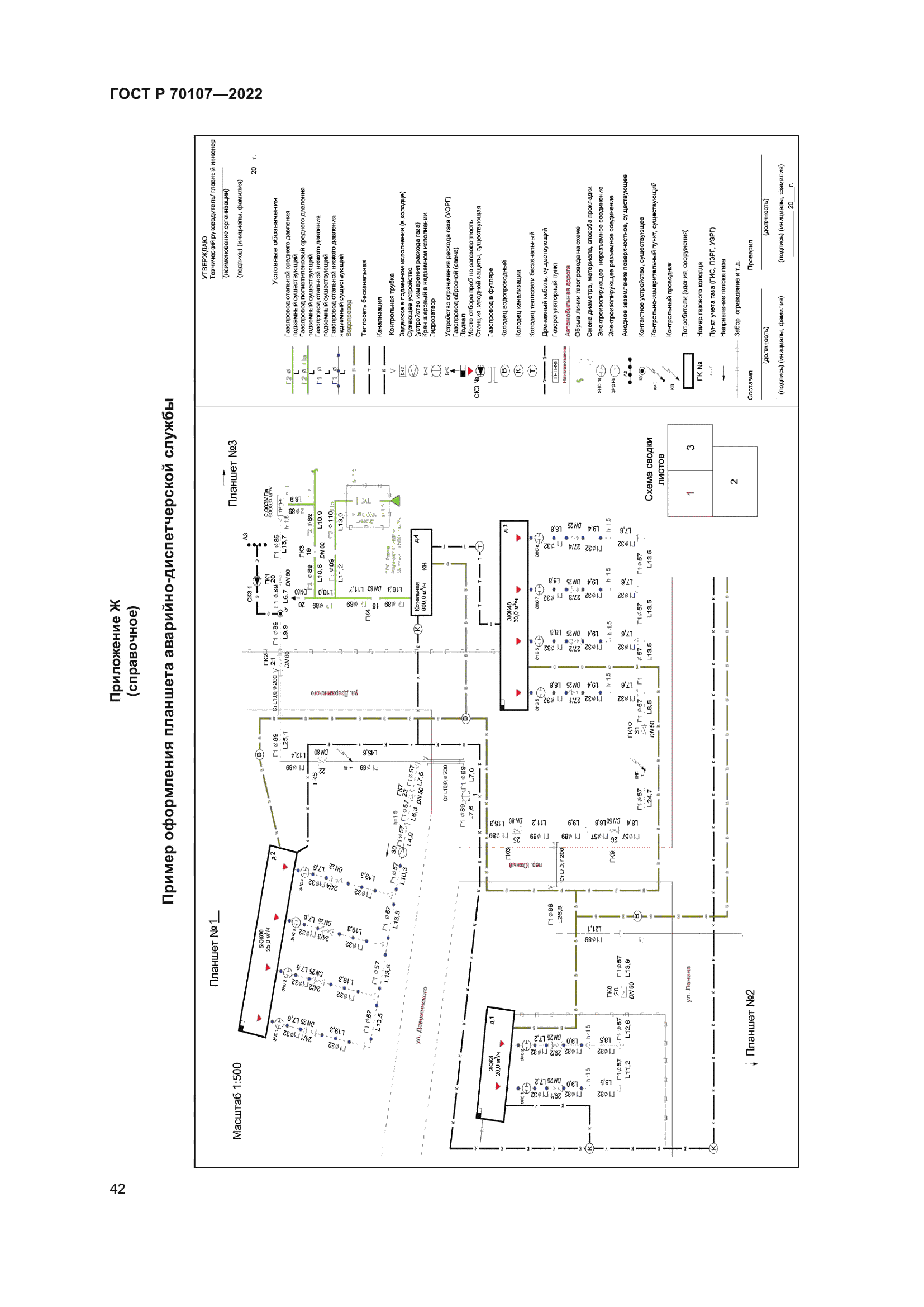
| Область применения: | Настоящий стандарт устанавливает правила графического отображения сетей газораспределения (или их частей), транспортирующих природный газ по ГОСТ 5542 и сжиженные углеводородные газы (СУГ) по ГОСТ Р 52087, ГОСТ 20448, и смежных коммуникаций на схемах, входящих в состав эксплуатационной документации (в т. ч. для использования в составе информационных систем). Положения настоящего стандарта распространяются на: - технологические схемы сетей газораспределения (в т. ч. схемы точек контроля давления газа в сети газораспределения, схемы точек размещения пунктов контроля интенсивности запаха газа); - планшеты аварийно-диспетчерской службы; - маршрутные карты; - схемы средств электрохимической защиты; - технологические схемы оборудования пункта редуцирования газа и пункта учета газа; - схемы размещения средств автоматизированной системы управления технологическим процессом; - технологические схемы газонаполнительной станции, газонаполнительного пункта, автомобильной газозаправочной станции и автомобильной газонаполнительной компрессорной станции |
| Приложение №1: | Поправка к ГОСТ Р 70107-2022 |
|
| Расположен в: |
|