Информационная система
«Ёшкин Кот»

Скачать базу одним архивом
Скачать обновления
История создания базы
Карта сайта

Скачать ГОСТ 34819-2021 Приборы осветительные. Светотехнические требования и методы испытаний

Дата актуализации: 01.06.2025

ГОСТ 34819-2021

Приборы осветительные. Светотехнические требования и методы испытаний

Обозначение: ГОСТ 34819-2021
Статус:действующий
Название рус.:Приборы осветительные. Светотехнические требования и методы испытаний
Название англ.:Light devices. Light requirements and test methods
Дата актуализации текста:01.06.2022
Дата актуализации описания:01.07.2023
Дата регистрации:24.12.2021
Дата издания:08.02.2022
Дата введения:01.07.2022
Нормативные ссылки:ГОСТ 8.023;ГОСТ 8.332;ГОСТ 15150;ГОСТ 16962.1;ГОСТ IEC 60598-2-22
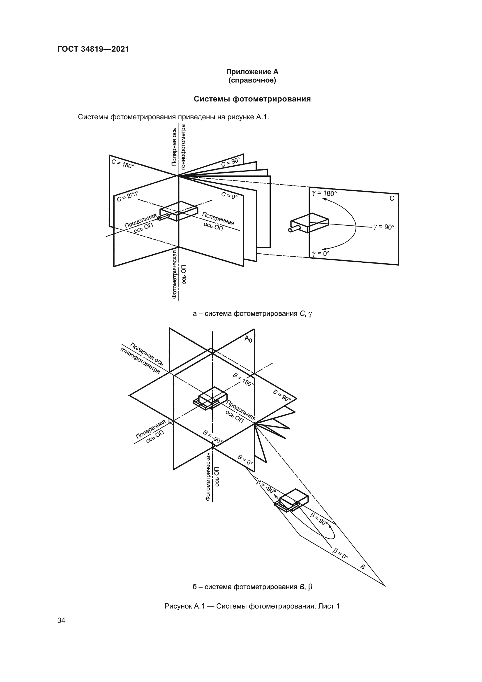
Область применения:Настоящий стандарт распространяется на осветительные приборы с электрическими источниками света (светильники и/или прожекторы) внутреннего и наружного освещения, питаемые напряжением до 1000 В. Стандарт устанавливает классификацию, светотехнические требования и методы испытаний осветительных приборов. Стандарт не распространяется на осветительные приборы: - для транспортных средств (автомобильных, железнодорожных, авиационных, морских); - устанавливаемые на строительных и дорожных машинах; - для рудников и шахт; - с индивидуальными источниками питания; - специальные медицинские, театральные, для фото-, кино- и телесъемок; - декоративные для внутреннего освещения общественных и жилых помещений; - декоративные со светодиодами не белого цвета; - цветодинамические и для иллюминации. Светотехнические требования к светильникам аварийного освещения – по ГОСТ IEC 60598-2-22
Расположен в:Государственные стандарты Общероссийский классификатор стандартов Электротехника Светотехнические изделия Светильники
ГОСТ 34819-2021ГОСТ 34819-2021ГОСТ 34819-2021ГОСТ 34819-2021ГОСТ 34819-2021ГОСТ 34819-2021ГОСТ 34819-2021ГОСТ 34819-2021ГОСТ 34819-2021ГОСТ 34819-2021ГОСТ 34819-2021ГОСТ 34819-2021ГОСТ 34819-2021ГОСТ 34819-2021ГОСТ 34819-2021ГОСТ 34819-2021ГОСТ 34819-2021ГОСТ 34819-2021ГОСТ 34819-2021ГОСТ 34819-2021ГОСТ 34819-2021ГОСТ 34819-2021ГОСТ 34819-2021ГОСТ 34819-2021ГОСТ 34819-2021ГОСТ 34819-2021ГОСТ 34819-2021ГОСТ 34819-2021ГОСТ 34819-2021ГОСТ 34819-2021ГОСТ 34819-2021ГОСТ 34819-2021ГОСТ 34819-2021ГОСТ 34819-2021ГОСТ 34819-2021ГОСТ 34819-2021ГОСТ 34819-2021ГОСТ 34819-2021ГОСТ 34819-2021ГОСТ 34819-2021ГОСТ 34819-2021ГОСТ 34819-2021ГОСТ 34819-2021ГОСТ 34819-2021ГОСТ 34819-2021ГОСТ 34819-2021ГОСТ 34819-2021ГОСТ 34819-2021ГОСТ 34819-2021ГОСТ 34819-2021ГОСТ 34819-2021ГОСТ 34819-2021ГОСТ 34819-2021ГОСТ 34819-2021ГОСТ 34819-2021ГОСТ 34819-2021ГОСТ 34819-2021ГОСТ 34819-2021

© 2013 Ёшкин Кот :-) Карта сайта