| Обозначение: |  ГОСТ 34766-2021 |
| Статус: | действующий |
| Название рус.: | Устройства пломбировочные механические для грузовых контейнеров. Общие технические требования |
| Название англ.: | Mechanical seals for freight containers. General technical requirements |
| Дата актуализации текста: | 01.06.2022 |
| Дата актуализации описания: | 01.07.2023 |
| Дата регистрации: | 26.08.2021 |
| Дата издания: | 14.10.2021 |
| Дата введения: | 01.01.2022 |
| Содержит требования: | ISO 17712:2013 |
| Нормативные ссылки: | ГОСТ 12.1.005; ГОСТ 15.309; ГОСТ 15150; ГОСТ 16504; ГОСТ 18321; ГОСТ 30630.0.0; ГОСТ 30630.1.2; ГОСТ 30631; ГОСТ 31281; ГОСТ 31282; ГОСТ 31283; ГОСТ 31315 |
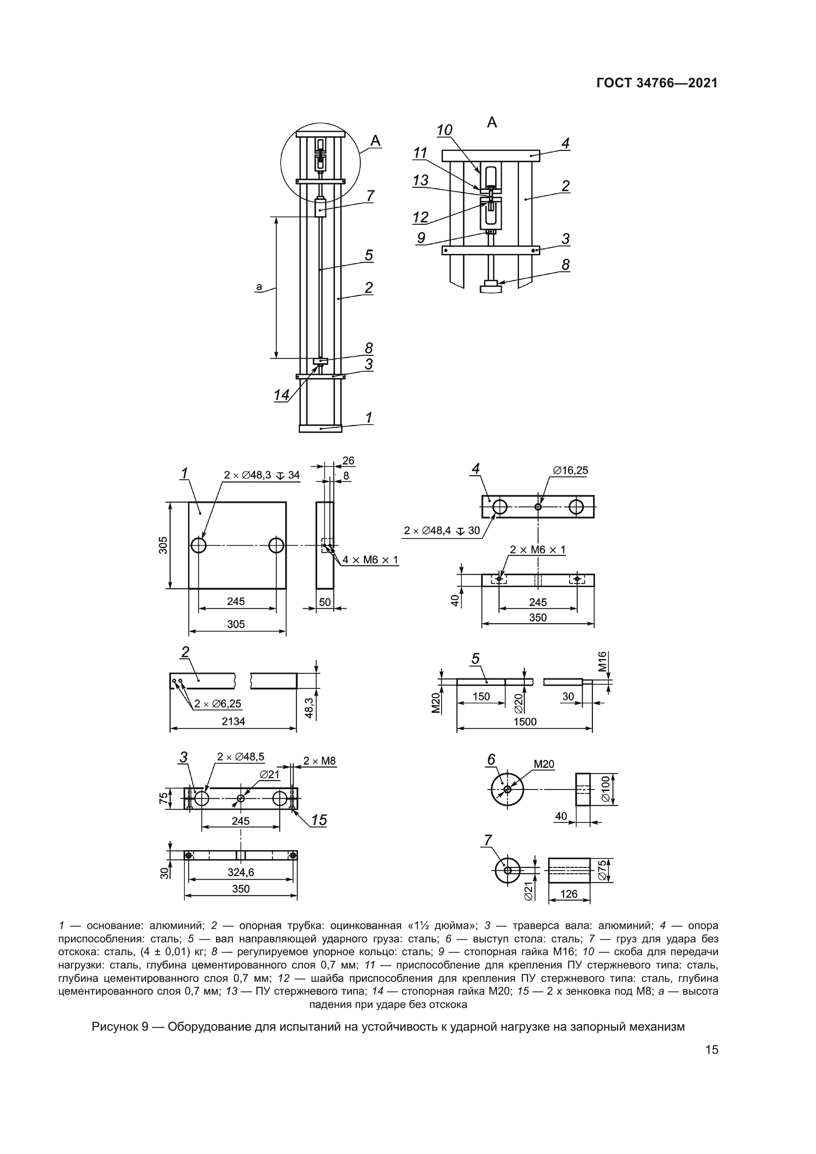
| Область применения: | Настоящий стандарт устанавливает классификацию, общие технические требования и методы испытаний механических пломбировочных устройств (ПУ), используемых для пломбирования грузовых контейнеров. Настоящий стандарт может применяться предприятиями и организациями, разрабатывающими, изготовляющими и поставляющими механические пломбы, потребителями и пользователями пломбировочных устройств, органами по сертификации, испытательными лабораториями независимо от административной подчиненности и форм собственности |
| Приложение №1: | Поправка к ГОСТ 34766-2021 |
|
| Расположен в: |
|