| Обозначение: |    ГОСТ 34756-2021 | 
| Статус: | действующий | 
| Название рус.: | Лифты. Основные параметры и размеры. Часть 1. Лифты для транспортирования людей или людей и грузов | 
| Название англ.: | Lifts. Main parameters and dimensions. Part 1. Lifts for the transport of persons оr persons and good | 
| Дата актуализации текста: | 01.01.2024 | 
| Дата актуализации описания: | 01.01.2024 | 
| Дата регистрации: | 14.07.2021 | 
| Дата издания: | 14.09.2021 | 
| Дата введения: | 01.01.2022 | 
| Нормативные ссылки: |  ГОСТ 8032; ГОСТ 30471; ГОСТ 33605; ГОСТ 33652; ГОСТ 33984.1-2016 | 
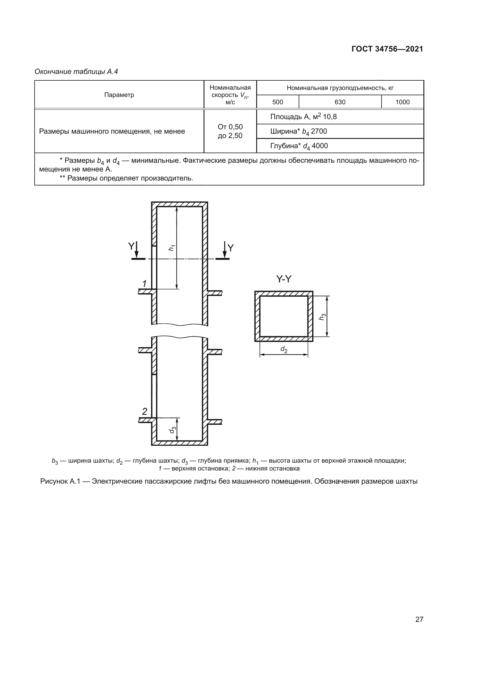
| Область применения: | Настоящий стандарт распространяется на основные параметры и размеры новых лифтов для транспортирования людей или людей и грузов в зданиях и сооружениях различного назначения. Лифты, включенные в настоящий стандарт, предназначены для установки в новые здания (сооружения). Настоящий стандарт может быть использован в качестве нормативной базы при установке новых лифтов в существующие здания (сооружения) | 
| Приложение №1: | Поправка к ГОСТ 34756-2021 | 
 | 
| Расположен в: | 
  |