| Обозначение: |  ГОСТ Р 59132-2020 |
| Статус: | действующий |
| Название рус.: | Автомобильные транспортные средства. Изделия крепежные. Поднутрения. Формы и размеры |
| Название англ.: | Motor vehigles. Fasteners. Undercuts. Forms and sizes |
| Дата актуализации текста: | 01.01.2022 |
| Дата актуализации описания: | 01.07.2023 |
| Дата издания: | 17.12.2020 |
| Дата введения: | 01.06.2021 |
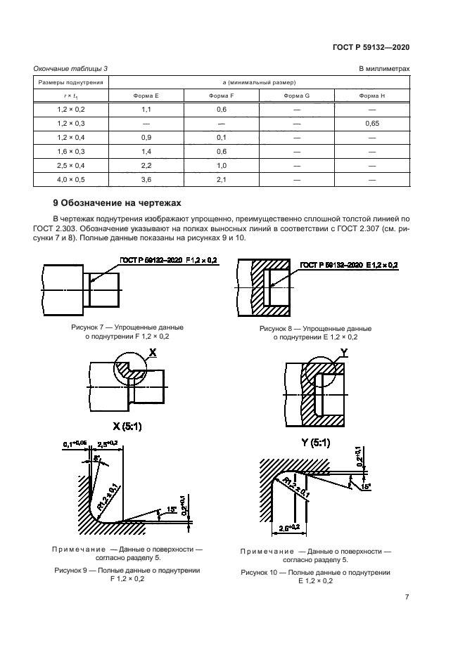
| Нормативные ссылки: | ГОСТ 2.303; ГОСТ 2.307; ГОСТ 2789 |
| Область применения: | Настоящий стандарт распространяется на поднутрения обтачиваемых крепежных изделий с наружной резьбой и отверстиями и устанавливает их формы и размеры. Применение настоящего стандарта позволяет уменьшить количество необходимых инструментов |
|
| Расположен в: |
|