| Обозначение: |  ГОСТ Р 59461-2021 |
| Статус: | действующий |
| Название рус.: | Производство нанотехнологическое. Контроль основных характеристик. Часть 4-2. Наноматериалы катодные для устройств накопления электрической энергии. Определение плотности |
| Название англ.: | Nanomanufacturing. Key control characteristics. Part 4-2. Cathode nanomaterials for electrical energy storage. Determination of density |
| Дата актуализации текста: | 01.06.2021 |
| Дата актуализации описания: | 01.06.2022 |
| Дата издания: | 19.05.2021 |
| Дата введения: | 01.03.2022 |
| Аутентичен стандартам: | IEC TS 62607-4-2(2016) |
| Нормативные ссылки: | ISO/TS 80004-1 |
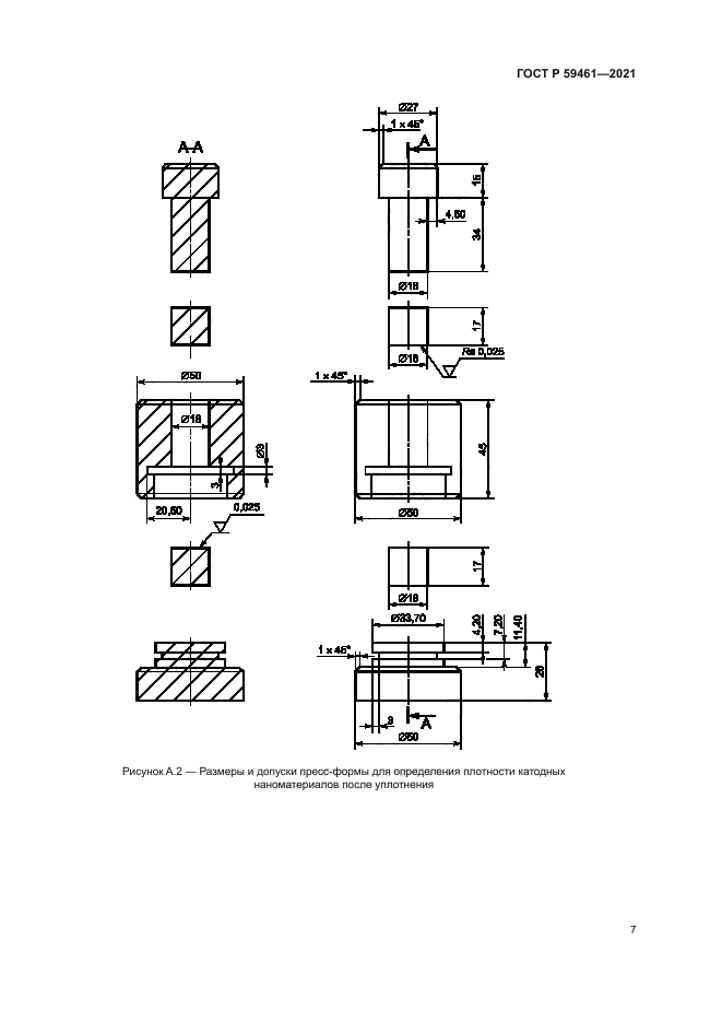
| Область применения: | Настоящий стандарт является частью серии стандартов МЭК 62607, распространяется на катодные наноматериалы в виде порошка, применяемые для изготовления электродов устройств накопления электрической энергии, и устанавливает методы определения плотности в состоянии после уплотнения и после прокатки. На основе результатов, полученных с применением методов, установленных в настоящем стандарте, потребитель сможет принять решение о пригодности катодного наноматериала для применения. В настоящем стандарте также установлены требования к изготовлению образцов и обработке результатов |
|
| Расположен в: |
|