Информационная система
«Ёшкин Кот»

Скачать базу одним архивом
Скачать обновления
История создания базы
Карта сайта

Скачать ГОСТ Р 22.7.01-2021 Безопасность в чрезвычайных ситуациях. Единая дежурно-диспетчерская служба. Основные положения

Дата актуализации: 01.06.2025

ГОСТ Р 22.7.01-2021

Безопасность в чрезвычайных ситуациях. Единая дежурно-диспетчерская служба. Основные положения

Обозначение: ГОСТ Р 22.7.01-2021
Статус:действующий
Название рус.:Безопасность в чрезвычайных ситуациях. Единая дежурно-диспетчерская служба. Основные положения
Название англ.:Safety in emergencies. Incorporated duty and dispatch service. General provisions
Дата актуализации текста:01.06.2021
Дата актуализации описания:01.01.2022
Дата издания:04.02.2021
Дата введения:01.06.2021
Взамен:ГОСТ Р 22.7.01-2016
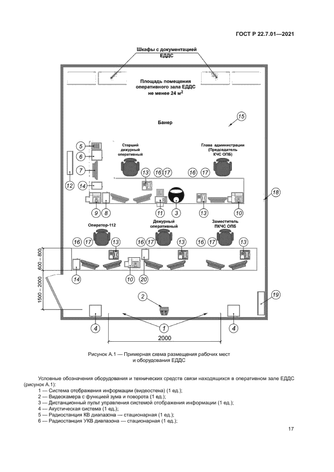
Область применения:Настоящий стандарт устанавливает состав решаемых задач, структуру, порядок создания и функционирования единой дежурно-диспетчерской службы муниципального образования (ЕДДС) в режимах повседневной деятельности, повышенной готовности и чрезвычайной ситуации (ЧС), определяет требования к персоналу ЕДДС, залу оперативной дежурной смены ЕДДС, перечню оборудования и программно-технических средств ЕДДС. Настоящий стандарт разработан с учетом построения (внедрения), развития и эксплуатации на территории муниципального образования аппаратно-программного комплекса «Безопасный город», системы обеспечения вызова экстренных оперативных служб по единому номеру «112» (система -112) в субъектах Российской Федерации
Расположен в:Государственные стандарты Общероссийский классификатор стандартов Охрана окружающей среды, защита человека от воздействия окружающей среды. Безопасность Борьба с несчастными случаями и катастрофами
ГОСТ Р 22.7.01-2021ГОСТ Р 22.7.01-2021ГОСТ Р 22.7.01-2021ГОСТ Р 22.7.01-2021ГОСТ Р 22.7.01-2021ГОСТ Р 22.7.01-2021ГОСТ Р 22.7.01-2021ГОСТ Р 22.7.01-2021ГОСТ Р 22.7.01-2021ГОСТ Р 22.7.01-2021ГОСТ Р 22.7.01-2021ГОСТ Р 22.7.01-2021ГОСТ Р 22.7.01-2021ГОСТ Р 22.7.01-2021ГОСТ Р 22.7.01-2021ГОСТ Р 22.7.01-2021ГОСТ Р 22.7.01-2021ГОСТ Р 22.7.01-2021ГОСТ Р 22.7.01-2021ГОСТ Р 22.7.01-2021ГОСТ Р 22.7.01-2021ГОСТ Р 22.7.01-2021ГОСТ Р 22.7.01-2021ГОСТ Р 22.7.01-2021ГОСТ Р 22.7.01-2021ГОСТ Р 22.7.01-2021ГОСТ Р 22.7.01-2021

© 2013 Ёшкин Кот :-) Карта сайта