| ||||||||||||||||||||||||||||
Скачать ГОСТ Р 58685-2019 Двери судовые проницаемые. Методы и виды испытанийДата актуализации: 01.06.2025
| ||||||||||||||||||||||||||||
| Обозначение: | ![]() ГОСТ Р 58685-2019 |
| Статус: | действующий |
| Название рус.: | Двери судовые проницаемые. Методы и виды испытаний |
| Название англ.: | Ship doors permeable. Methods and kinds of testing |
| Дата актуализации текста: | 01.06.2022 |
| Дата актуализации описания: | 01.07.2023 |
| Дата издания: | 25.12.2019 |
| Дата введения: | 01.04.2020 |
| Нормативные ссылки: | ГОСТ 20.39.108; ГОСТ 166; ГОСТ 427; ГОСТ 5378; ГОСТ 8026; ГОСТ 13837; ГОСТ 15151-69; ГОСТ 16504; ГОСТ 17168; ГОСТ 17187; ГОСТ 19445; ГОСТ 27296-2012; ГОСТ Р 15.301-2016; ГОСТ Р ИСО 16827; ГОСТ Р 50249; ГОСТ Р 53228; ГОСТ Р 55725; ГОСТ Р 55809;РСТ РСФСР 391 |
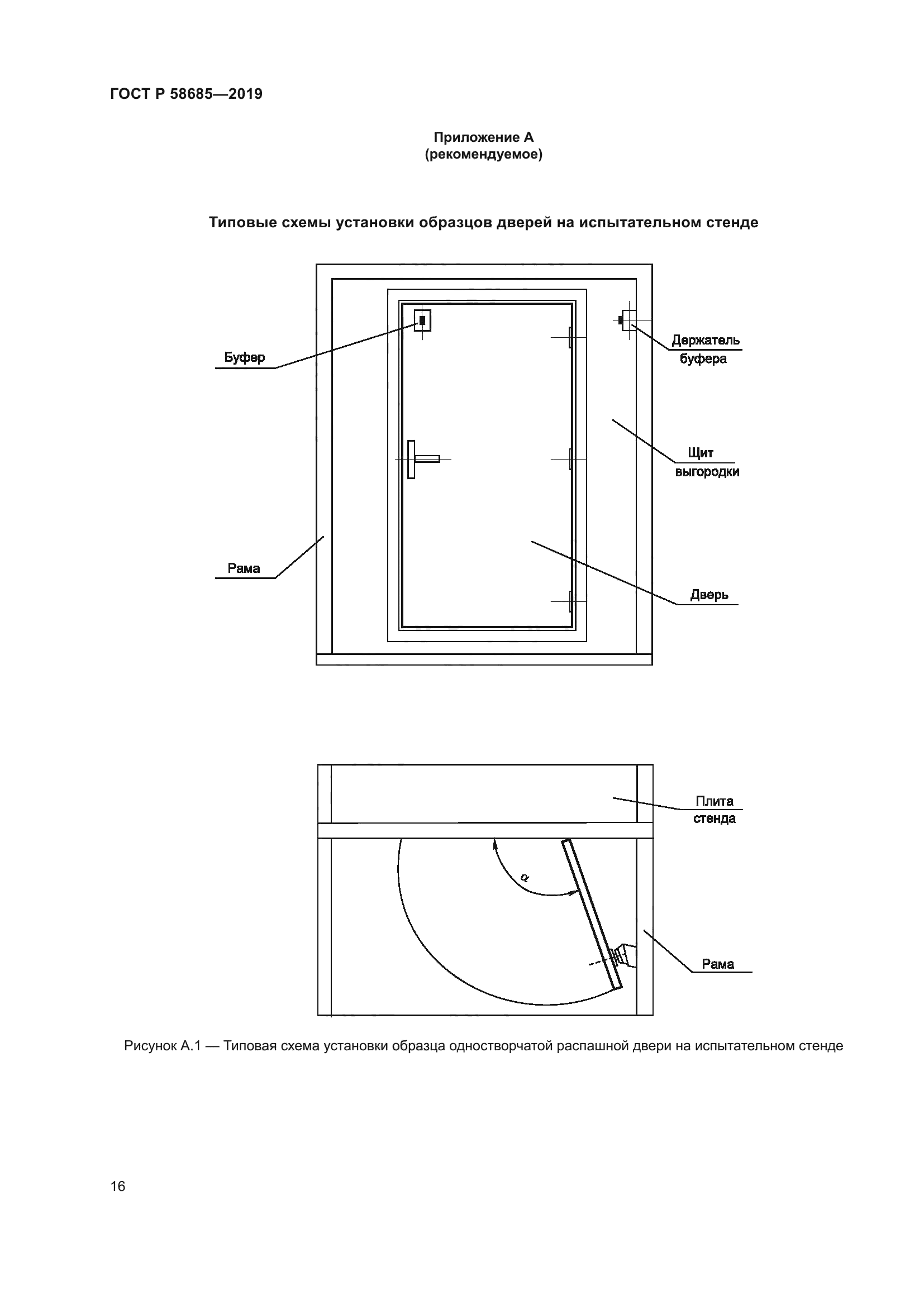
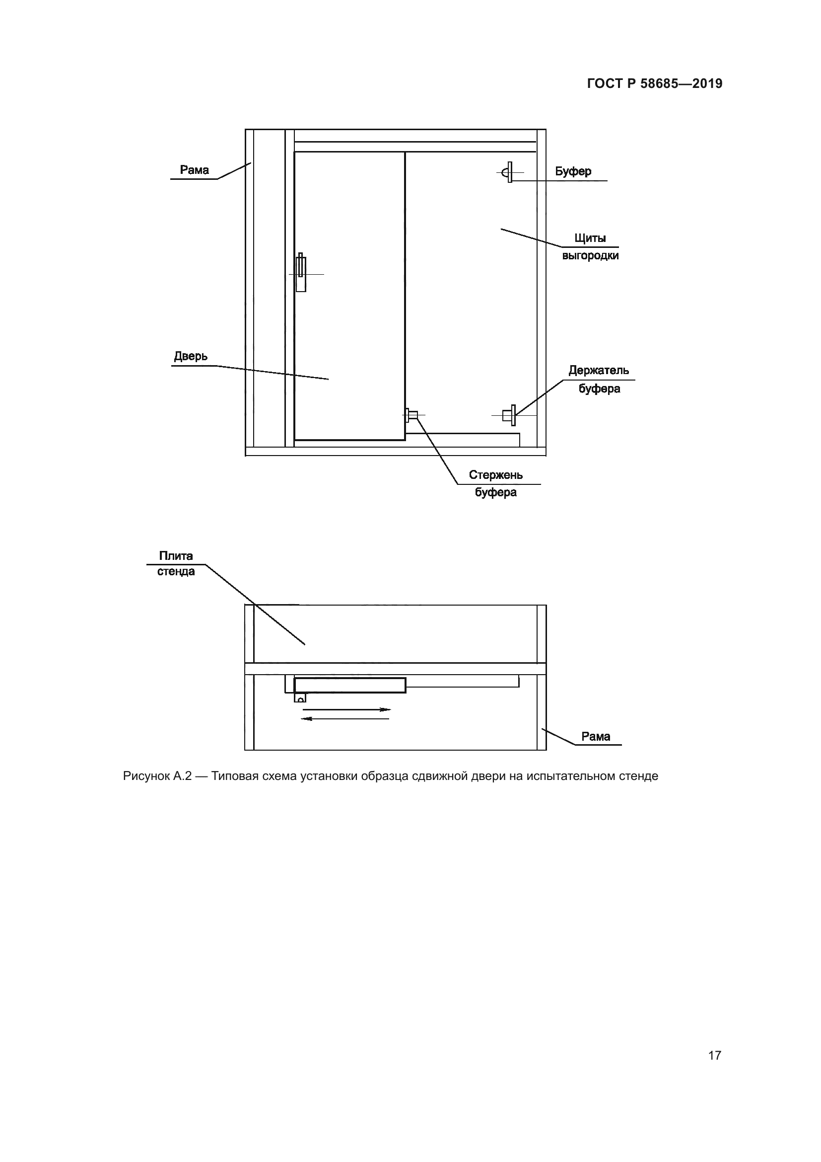
| Область применения: | Настоящий стандарт распространяется на судовые проницаемые двери, предназначенные для оборудования помещений судов и плавсредств (далее - суда). Настоящий стандарт устанавливает порядок проведения и оформления результатов испытаний судовых проницаемых дверей на стадиях производства и эксплуатации |
| Расположен в: | |



























