| Обозначение: |    ГОСТ 34614.4-2019 | 
| Статус: | действующий | 
| Название рус.: | Оборудование и покрытия игровых площадок. Часть 4. Дополнительные требования безопасности и методы испытаний канатных дорог | 
| Название англ.: | Playground equipment and surfacing. Part 4. Additional specific safety requirements and test methods for cableways | 
| Дата актуализации текста: | 01.06.2024 | 
| Дата актуализации описания: | 01.07.2023 | 
| Дата регистрации: | 29.11.2019 | 
| Дата издания: | 19.12.2019 | 
| Дата введения: | 01.08.2020 | 
| Содержит требования: | EN 1176-4:2017 | 
| Нормативные ссылки: |  ГОСТ 34614.1-2019; ГОСТ 34614.2-2019; ГОСТ 34614.6-2019 | 
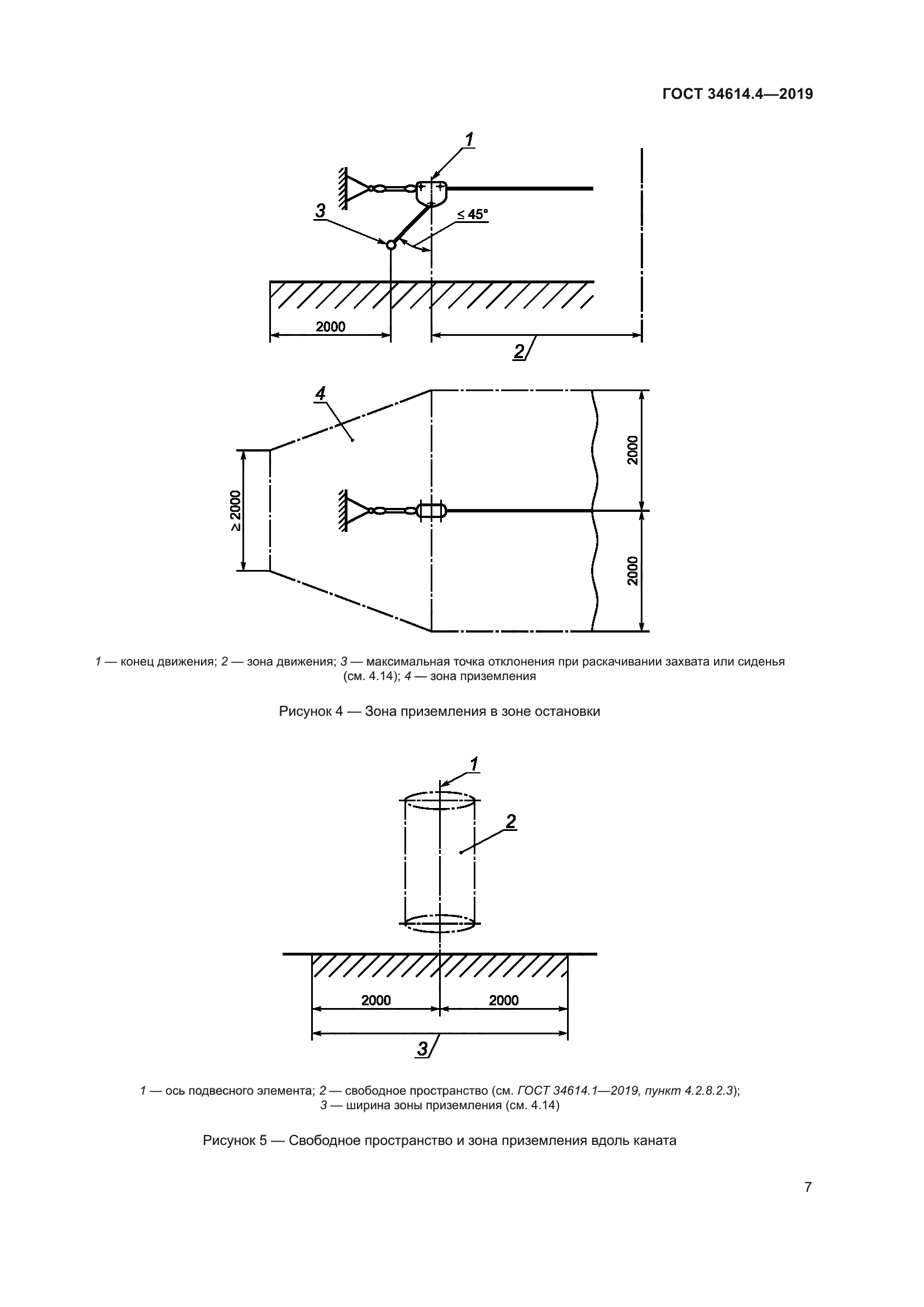
| Область применения: | Настоящий стандарт распространяется на канатные дороги, по которым или вдоль которых перемещаются дети под действием собственной массы. Настоящий стандарт устанавливает дополнительные требования безопасности к стационарно устанавливаемым детским канатным дорогам | 
| Приложение №1: | Поправка к ГОСТ 34614.4-2019 | 
| Приложение №2: | Поправка к ГОСТ 34614.4-2019 | 
 | 
| Расположен в: | 
  |