| ||||||||||||||||||||||||||||
Скачать ГОСТ Р 58618-2019 Магистральный трубопроводный транспорт нефти и нефтепродуктов. Оборудование резервуарное. Клапаны дыхательные и предохранительные. Общие технические условияДата актуализации: 01.06.2025
| ||||||||||||||||||||||||||||
| Обозначение: | ![]() ГОСТ Р 58618-2019 |
| Статус: | действующий |
| Название рус.: | Магистральный трубопроводный транспорт нефти и нефтепродуктов. Оборудование резервуарное. Клапаны дыхательные и предохранительные. Общие технические условия |
| Название англ.: | Trunk pipeline transport of oil and oil products. Storage tank equipment. Breather and emergency valves. General specifications |
| Дата актуализации текста: | 01.06.2022 |
| Дата актуализации описания: | 01.07.2023 |
| Дата издания: | 29.11.2019 |
| Дата введения: | 01.08.2020 |
| Нормативные ссылки: | ГОСТ 2.503; ГОСТ 8.051; ГОСТ 8.549; ГОСТ 9.005; ГОСТ 9.014; ГОСТ 9.032; ГОСТ 9.301; ГОСТ 9.401; ГОСТ 12.1.004; ГОСТ 12.1.010; ГОСТ 12.2.003; ГОСТ 12.2.049; ГОСТ 12.3.002; ГОСТ 12.3.009; ГОСТ 12.3.020; ГОСТ 15.309; ГОСТ 27.003; ГОСТ 305; ГОСТ 481; ГОСТ 1012; ГОСТ 1583; ГОСТ 2991; ГОСТ 4784; ГОСТ 5197-85; ГОСТ 10007; ГОСТ 10198; ГОСТ 10227; ГОСТ 12082; ГОСТ 12969; ГОСТ 12971; ГОСТ 14192; ГОСТ 15150; ГОСТ 15180; ГОСТ 16093; ГОСТ 18123; ГОСТ 18321; ГОСТ 18617; ГОСТ 19281; ГОСТ 20700; ГОСТ 21140; ГОСТ 23170; ГОСТ 24297; ГОСТ 24705; ГОСТ 28338; ГОСТ 30546.1; ГОСТ 30546.2; ГОСТ 30852.5; ГОСТ 30852.9; ГОСТ 30852.11; ГОСТ 31385; ГОСТ 32511; ГОСТ 32513; ГОСТ 33259;ГОСТ ISO 898-1;ГОСТ ISO 898-2; ГОСТ Р 8.568; ГОСТ Р 9.316; ГОСТ Р 15.301; ГОСТ Р 51105; ГОСТ Р 51672; ГОСТ Р 51858; ГОСТ Р 51866; ГОСТ Р 52050; ГОСТ Р 52368; ГОСТ Р 53323; ГОСТ Р 53464 |
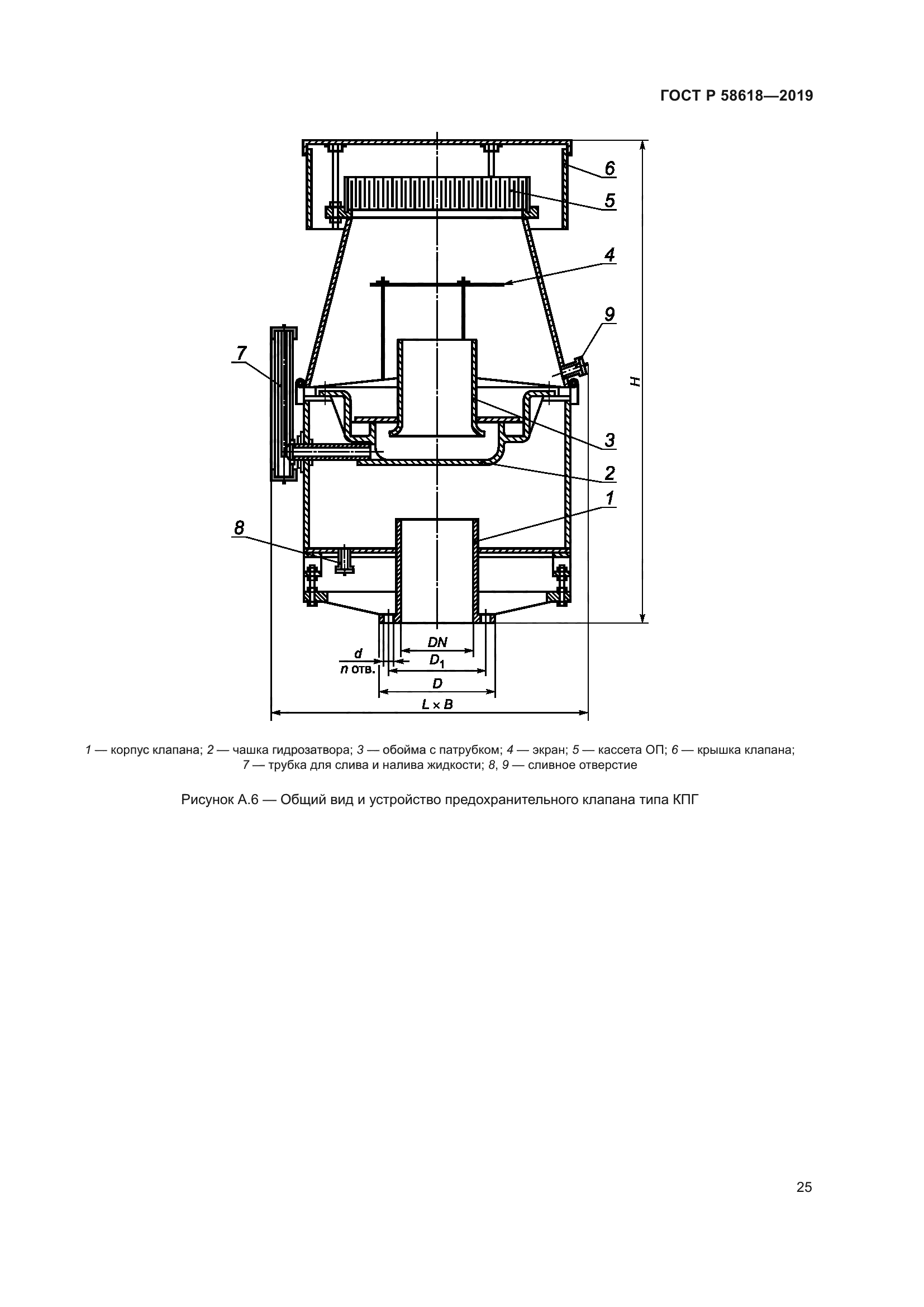
| Область применения: | Настоящий стандарт распространяется на дыхательные и предохранительные, в том числе аварийные, клапаны, предназначенные для вертикальных цилиндрических стальных резервуаров без понтона или плавающей крыши, железобетонных резервуаров со стационарной крышей без понтона и применяемые на объектах магистрального трубопровода для транспортировки нефти и нефтепродуктов |
| Расположен в: | |































