| Обозначение: |  ГОСТ 8824-2018 |
| Статус: | действующий |
| Название рус.: | Лифты грузовые малые. Основные параметры и размеры |
| Название англ.: | Small cargo lifts. Basic parameters and dimensions |
| Дата актуализации текста: | 01.06.2022 |
| Дата актуализации описания: | 01.07.2023 |
| Дата регистрации: | 29.11.2018 |
| Дата издания: | 11.11.2019 |
| Дата введения: | 01.06.2020 |
| Взамен: | ГОСТ 8824-84 |
| Нормативные ссылки: | ГОСТ 8032-84; ГОСТ 33605-2015 |
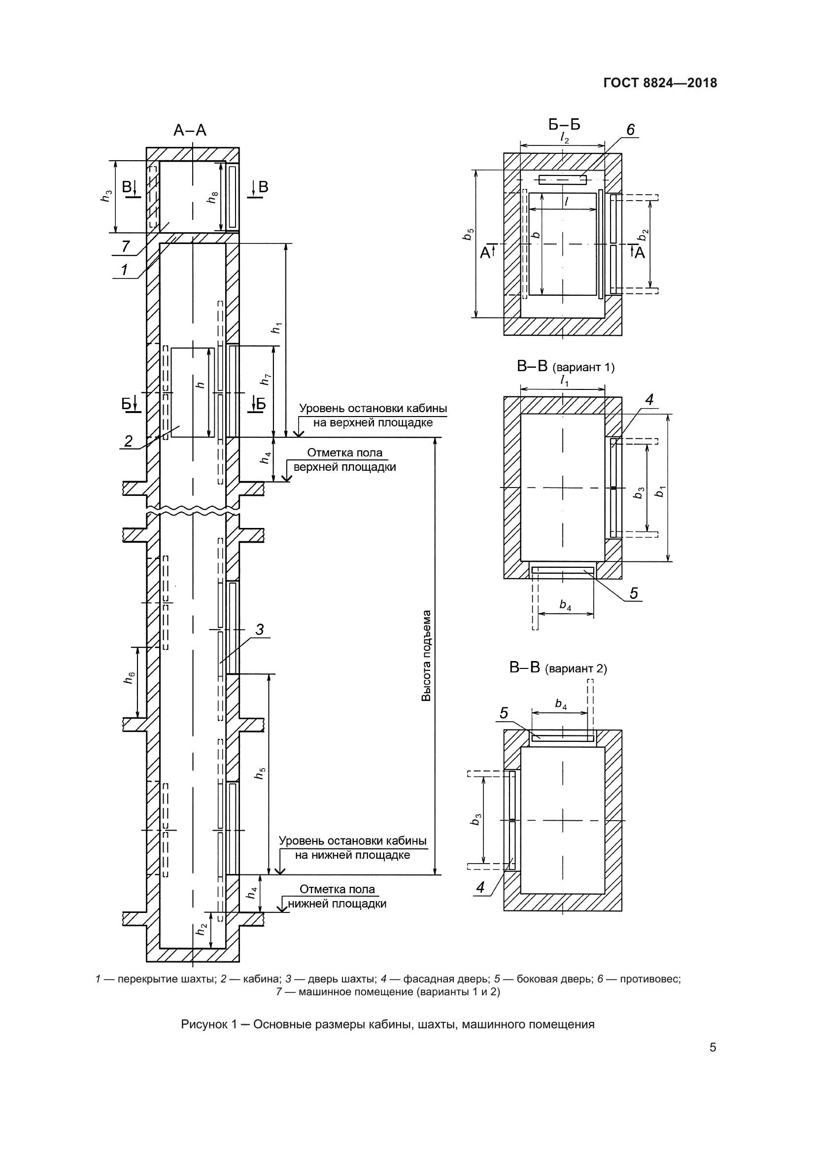
| Область применения: | Настоящий стандарт распространяется на малые грузовые лифты для зданий (сооружений) различного назначения. Малые грузовые лифты, включенные в настоящий стандарт, предназначены для установки в новые здания (сооружения) |
|
| Расположен в: |
|