| Обозначение: |  ГОСТ IEC 60335-2-79-2019 |
| Статус: | действующий |
| Название рус.: | Бытовые и аналогичные электрические приборы. Безопасность. Часть 2-79. Частные требования к приборам очистки с использованием высокого давления и пара |
| Название англ.: | Household and similar electrical appliances. Safety. Part 2-79. Particular requirements for high pressure cleaners and steam cleaners |
| Дата актуализации текста: | 01.01.2021 |
| Дата актуализации описания: | 01.07.2023 |
| Дата регистрации: | 30.09.2019 |
| Дата издания: | 22.10.2019 |
| Дата введения: | 01.06.2020 |
| Взамен: | ГОСТ IEC 60335-2-79-2014 |
| Аутентичен стандартам: | IEC 60335-2-79(2016) |
| Нормативные ссылки: | IEC 60364-1;IEC 61558-2-3;IEC 61770(2008) |
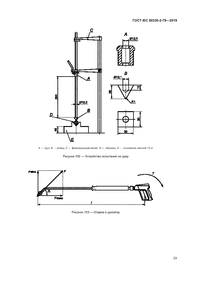
| Область применения: | Настоящий стандарт устанавливает требования к безопасности очистителей высокого давления без тягового привода, предназначенных для бытового и коммерческого использования внутри помещения и на открытом воздухе, с номинальным давлением от 2,5 до 35 МПа включительно. Настоящий стандарт также устанавливает требования к пароочистителям и к тем частям очистителей высокого давления горячей водой, имеющим фазу парообразования, вместимость которых не более 100 л, номинальное давление не выше 2,5 МПа и произведение номинального давления и вместимости не более 5 МПа•л |
| Приложение №1: | Поправка к ГОСТ IEC 60335-2-79-2019 |
|
| Расположен в: |
|