| Обозначение: |  ГОСТ Р 52524-2019 |
| Статус: | действующий |
| Название рус.: | Контейнеры грузовые. Кодирование, идентификация и маркировка |
| Название англ.: | Freight containers. Coding, identification and marking |
| Дата актуализации текста: | 01.01.2021 |
| Дата актуализации описания: | 01.07.2023 |
| Дата издания: | 02.10.2019 |
| Дата введения: | 01.01.2020 |
| Взамен: | ГОСТ Р 52524-2005 |
| Содержит требования: | ISO 6346:1995+Amd.3:2012 |
| Нормативные ссылки: | ГОСТ 31314.3; ГОСТ Р 50697; ГОСТ Р 51876; ГОСТ Р 53350; ГОСТ Р 53520; ГОСТ Р ИСО 1496-5 |
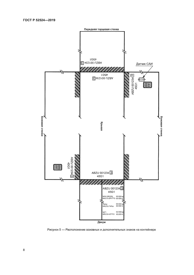
| Область применения: | Настоящий стандарт распространяется на систему идентификации и обеспечения информации о грузовых контейнерах с помощью кодов и маркировки. Система идентификации предназначена для общего использования, например для работы с документацией, осуществления контроля (в т. ч. в автоматизированных системах обработки данных) и непосредственно маркировки контейнеров. Стандарт содержит методы представления данных системы идентификации и других данных (включая эксплуатационные) на контейнерах при помощи установленных знаков маркировки |
|
| Расположен в: |
|