| Обозначение: |  ГОСТ ISO 15025-2019 |
| Статус: | действующий |
| Название рус.: | Система стандартов безопасности труда. Одежда специальная для защиты от пламени. Метод испытания на ограниченное распространение пламени |
| Название англ.: | Occupational safety standards system. Protective clothing against flame. Method of test for limited flame spread |
| Дата актуализации текста: | 01.01.2024 |
| Дата актуализации описания: | 01.01.2021 |
| Дата регистрации: | 30.07.2019 |
| Дата издания: | 09.09.2019 |
| Дата введения: | 01.09.2020 |
| Взамен: | ГОСТ ISO 15025-2012 |
| Аутентичен стандартам: | ISO 15025:2016 |
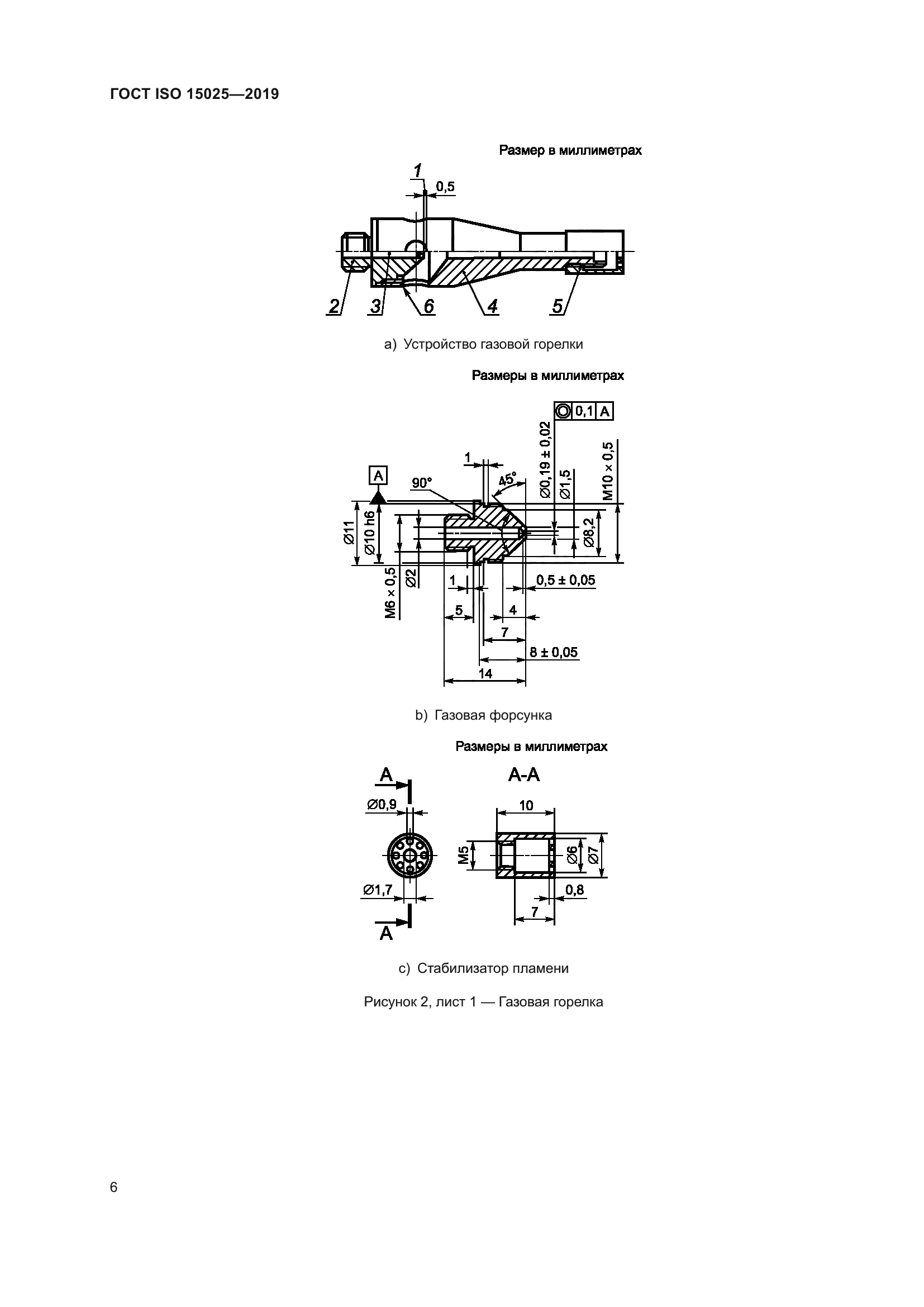
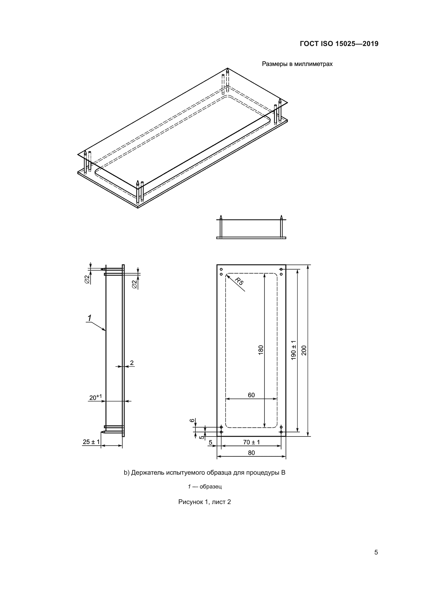
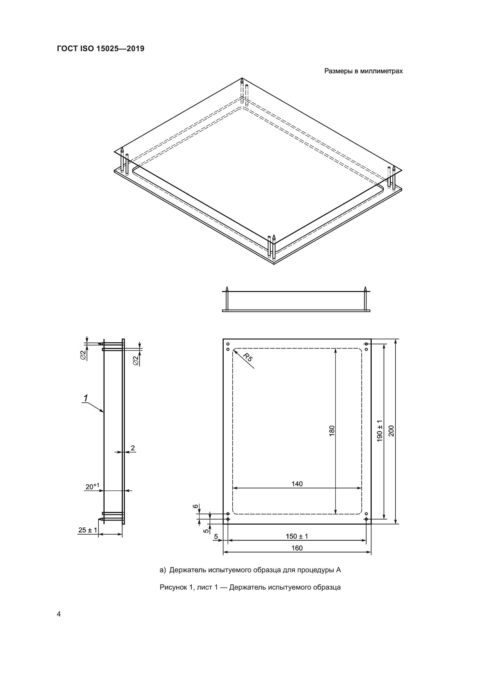
| Область применения: | Настоящий стандарт устанавливает две процедуры (воспламенение поверхности и воспламенение нижней кромки) определения характеристик распространения пламени на вертикально ориентированных гибких одно- или многокомпонентных материалах (с покрытием, стеганых, многослойных, конструкций типа «сэндвич» и аналогичных), когда они подвергаются воздействию небольшого заданного пламени. Данный метод испытаний не применяется в условиях ограниченной подачи воздуха или воздействии тепла большой интенсивности, для которых более подходящими являются другие методы испытаний |
| Приложение №1: | Поправка к ГОСТ ISO 15025-2019 |
| Приложение №2: | Поправка к ГОСТ ISO 15025-2019 |
|
| Расположен в: |
|