| Обозначение: |  ГОСТ Р 58401.9-2019 |
| Статус: | действующий |
| Название рус.: | Дороги автомобильные общего пользования. Смеси асфальтобетонные дорожные и асфальтобетон. Метод сокращения проб |
| Название англ.: | Automobile roads of general use. Asphalt mixtures and asphalt concrete for road pavement. Methods of reducing samples |
| Дата актуализации текста: | 01.01.2021 |
| Дата актуализации описания: | 01.07.2023 |
| Дата издания: | 10.06.2019 |
| Дата введения: | 01.06.2019 |
| Нормативные ссылки: | ГОСТ 12.1.019; ГОСТ 12.4.131; ГОСТ 12.4.132; ГОСТ 12.4.252; ГОСТ Р 58407.4 |
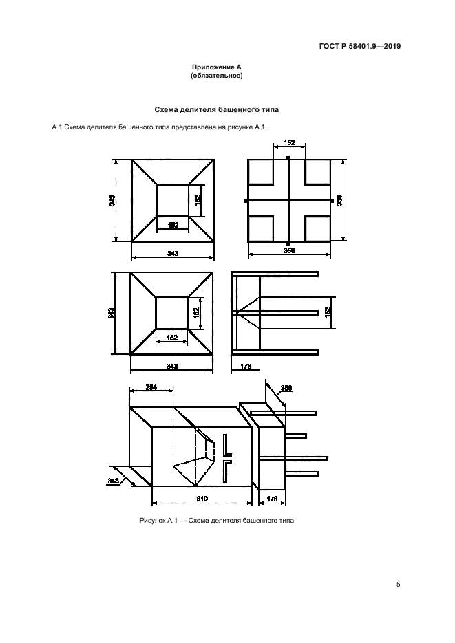
| Область применения: | Настоящий стандарт распространяется на асфальтобетонные дорожные смеси и асфальтобетон, и устанавливает методы сокращения объединенной пробы асфальтобетонной смеси до количества, необходимого для проведения испытаний |
|
| Расположен в: |
|