| Обозначение: |    ГОСТ Р 50.05.08-2018 | 
| Статус: | действующий | 
| Название рус.: | Система оценки соответствия в области использования атомной энергии. Оценка соответствия в форме контроля. Унифицированные методики. Визуальный и измерительный контроль | 
| Название англ.: | Conformity assessment system for the use of nuclear energy. Conformity assessment in the form of control. Unified methods. Visual and measuring control | 
| Дата актуализации текста: | 01.01.2021 | 
| Дата актуализации описания: | 01.06.2025 | 
| Дата издания: | 11.03.2025 | 
| Дата введения: | 01.03.2019 | 
| Нормативные ссылки: |  ГОСТ 12.1.003; ГОСТ 12.1.005; ГОСТ 12.1.007; ГОСТ 12.4.011; ГОСТ 12.4.016; ГОСТ 12.4.021; ГОСТ 427; ГОСТ 577; ГОСТ 2789; ГОСТ 25706; ГОСТ Р 50.04.07; ГОСТ Р 50.05.11; ГОСТ Р 50.05.16; ГОСТ Р ИСО 17637 | 
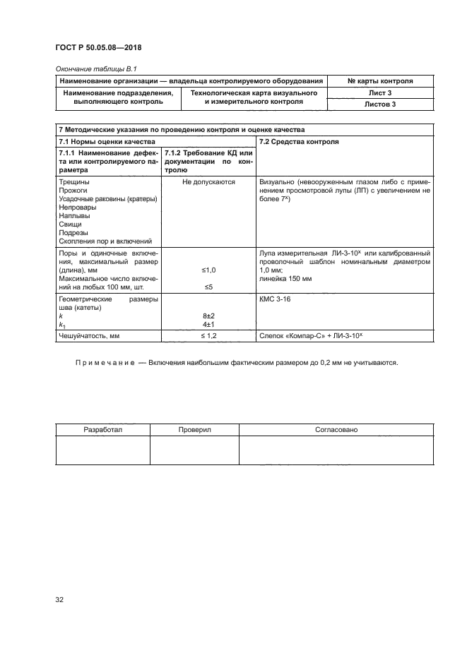
| Область применения: | Настоящий стандарт распространяется на визуальный и измерительный контроль сварных соединений и наплавленных поверхностей оборудования и трубопроводов атомных энергетических установок (АЭУ). Стандарт устанавливает требования к порядку проведения контроля, средствам контроля, персоналу, обработке и оформлению результатов контроля, а также требования безопасности на всех стадиях жизненного цикла АЭУ | 
| Приложение №1: | Поправка к ГОСТ Р 50.05.08-2018 | 
 | 
| Расположен в: | 
  |