| ||||||||||||||||||||||||||||||||||||||
Скачать ГОСТ 10629-88 Шпалы железобетонные предварительно напряженные для железных дорог колеи 1520 мм. Технические условияДата актуализации: 01.06.2025
| ||||||||||||||||||||||||||||||||||||||
| Обозначение: | ![]() ГОСТ 10629-88 |
| Статус: | не действует в РФ |
| Название рус.: | Шпалы железобетонные предварительно напряженные для железных дорог колеи 1520 мм. Технические условия |
| Название англ.: | Prestressed reinforced concrete sleepers for 1520 mm gauge railways. Specifications |
| Дата актуализации текста: | 06.04.2015 |
| Дата актуализации описания: | 01.07.2023 |
| Дата издания: | 01.07.2004 |
| Дата введения: | 01.01.1990 |
| Дата окончания срока действия: | 01.07.2012 |
| Код ОКП: | 586411 |
| Взамен: | ГОСТ 10629-78 |
| На территории РФ пользоваться: | ГОСТ 33320-2015 |
| Нормативные ссылки: | ГОСТ 8.326-89; ГОСТ 7348-81; ГОСТ 7392-2002; ГОСТ 10060.0-95; ГОСТ 10060.1-95; ГОСТ 10060.2-95; ГОСТ 10060.3-95; ГОСТ 10060.4-95; ГОСТ 10180-90; ГОСТ 10268-80; ГОСТ 13015-2003; ГОСТ 16017-79; ГОСТ 18105-86; ГОСТ 22362-77; ГОСТ 23009-78; ГОСТ 23616-79; ГОСТ 25706-83; ГОСТ 26633-91;ТУ 14-4-1471-87 |
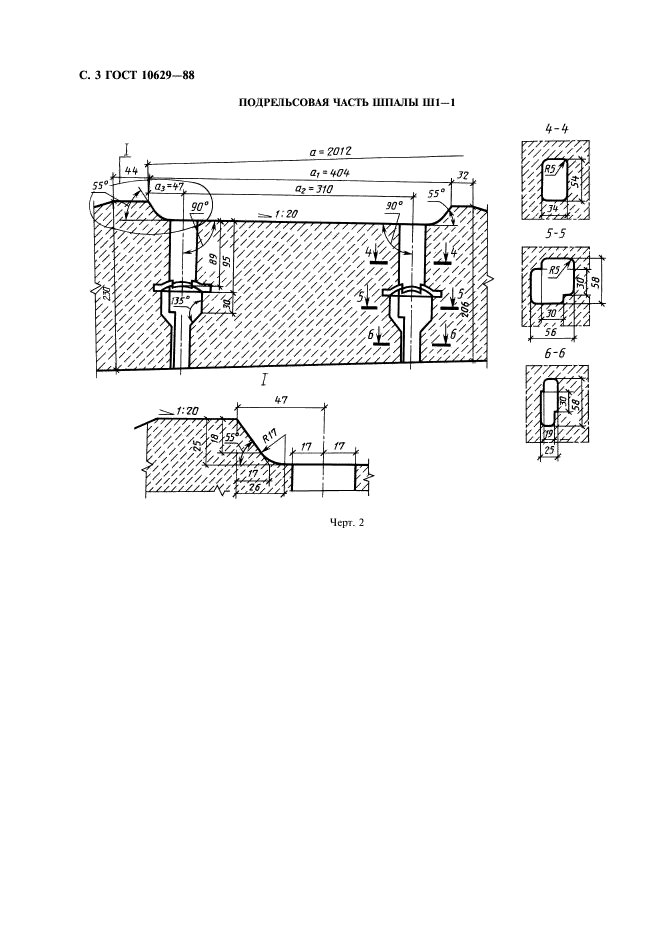
| Область применения: | Настоящий стандарт распространяется на железобетонные предварительно напряженные шпалы для железнодорожных путей с рельсовой колеей шириной 1520 мм и рельсами типов Р75, Р65 и Р50, по которым обращается типовой подвижной состав общей сети железных дорог СССР |
| Список изменений: | №0 от 01.05.1990 (рег. 01.05.1990) «Дата введения перенесена» №0 от 30.06.2012 (рег. 13.12.2011) «Поправка к изменению» |
| Расположен в: | |















