| Обозначение: |  ГОСТ Р МЭК 62552-1-2018 |
| Статус: | действующий |
| Название рус.: | Приборы холодильные бытовые. Характеристики и методы испытаний. Часть 1. Общие требования |
| Название англ.: | Household refrigerating appliances. Characteristics and test methods. Part 1. General requirements |
| Дата актуализации текста: | 17.09.2018 |
| Дата актуализации описания: | 01.07.2023 |
| Дата издания: | 29.05.2018 |
| Дата введения: | 01.03.2019 |
| Аутентичен стандартам: | IEC 62552-1(2015) |
| Нормативные ссылки: | IEC 62552-2(2015);IEC 62552-3(2015) |
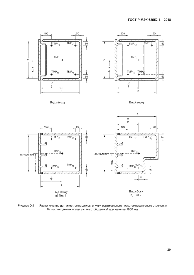
| Область применения: | Настоящий стандарт устанавливает основные характеристики бытовых холодильных приборов, охлаждение в которых осуществляется методом внутренней естественной конвекции или методом принудительной циркуляции воздуха, и определяет методы испытаний для проверки характеристик. Для целей декларации определенные в настоящем стандарте испытания рассматривают как типовые испытания для оценки основных параметров конструкции и работы холодильных приборов. Настоящий стандарт не определяет требования по выборочному контролю продукции, оценке соответствия или сертификации. Настоящий стандарт не устанавливает требования к контрольным испытаниям, так как требования к ним зависят от региона и страны. Когда проверка характеристик холодильных приборов данного типа на соответствие данному стандарту необходима, то предпочтительно, когда это практически возможно, чтобы все указанные испытания проводились на одном приборе. Эти испытания могут также быть проведены отдельно для исследования конкретных характеристик |
|
| Расположен в: |
|