| Обозначение: |  ГОСТ Р 57994-2017 |
| Статус: | действующий |
| Название рус.: | Композиты полимерные. Методы определения вязкости разрушения и скорости высвобождения энергии |
| Название англ.: | Polymer composites. Test methods for fracture toughness definition and energy release speeds |
| Дата актуализации текста: | 01.01.2021 |
| Дата актуализации описания: | 01.07.2023 |
| Дата издания: | 10.01.2018 |
| Дата введения: | 01.06.2018 |
| Содержит требования: | ASTM D 5045-14 |
| Нормативные ссылки: | ГОСТ 166-89; ГОСТ 6507; ГОСТ 12423-2013; ГОСТ 28840; ГОСТ Р 56800 |
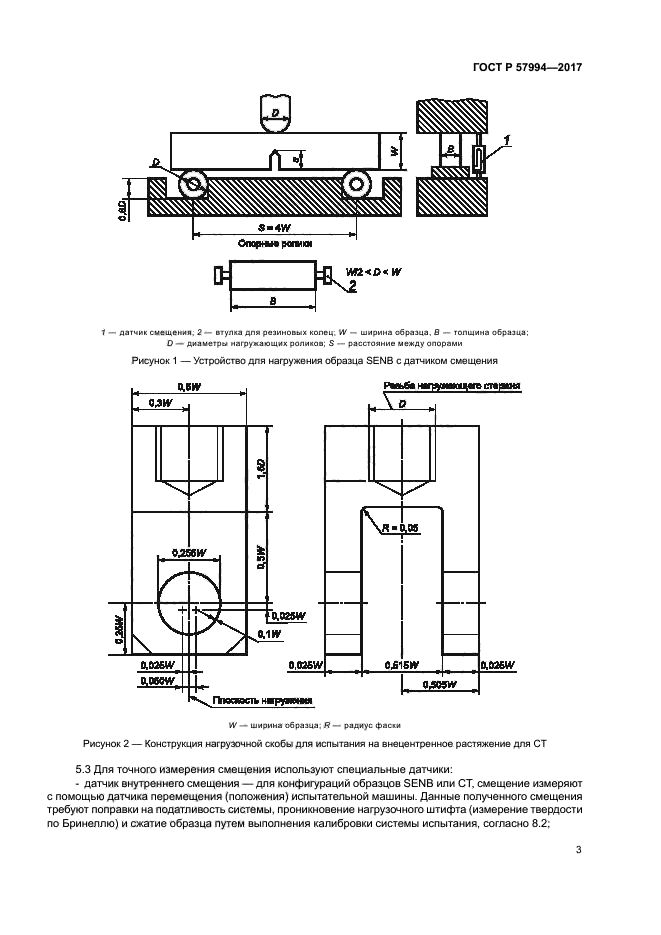
| Область применения: | Настоящий стандарт распространяется на полимерные композиты (ПК) и полимерные материалы (ПМ) без армирования, и устанавливает методы испытаний, предназначенные для описания их вязкости разрушения через определение критического коэффициента интенсивности напряжений, KIС, и энергии на единицу площади поверхности трещины или критической скорости высвобождения энергии деформации, GIС, в момент формирования трещины. Стандарт устанавливает методы определения характеристик при испытании образцов двух геометрических конфигураций: изгиб при одностороннем надрезе (SENB) и внецентренное растяжение (CT) |
|
| Расположен в: |
|