Информационная система
«Ёшкин Кот»

Скачать базу одним архивом
Скачать обновления
История создания базы
Карта сайта

Скачать ГОСТ Р ИСО 22475-1-2017 Геотехнические исследования и испытания. Методы отбора проб и измерения подземных вод. Часть 1. Технические принципы для выполнения

Дата актуализации: 01.06.2025

ГОСТ Р ИСО 22475-1-2017

Геотехнические исследования и испытания. Методы отбора проб и измерения подземных вод. Часть 1. Технические принципы для выполнения

Обозначение: ГОСТ Р ИСО 22475-1-2017
Статус:действующий
Название рус.:Геотехнические исследования и испытания. Методы отбора проб и измерения подземных вод. Часть 1. Технические принципы для выполнения
Название англ.:Geotechnical investigation and testing. Sampling methods and groundwater measurements. Part 1. Technical principles for execution
Дата актуализации текста:01.01.2018
Дата актуализации описания:01.07.2023
Дата издания:21.12.2017
Дата введения:01.01.2022
Аутентичен стандартам:ISO 22475-1:2006
Нормативные ссылки:ISO 22476-3;ISO 14688-1;ISO 14689-1;ISO 3551-1;ISO 3552-1;ISO 10097-1;EN 791;EN 996;EN 16228-1:2014;EN 16228-7:2014;EN 1997-1;EN 1997-2
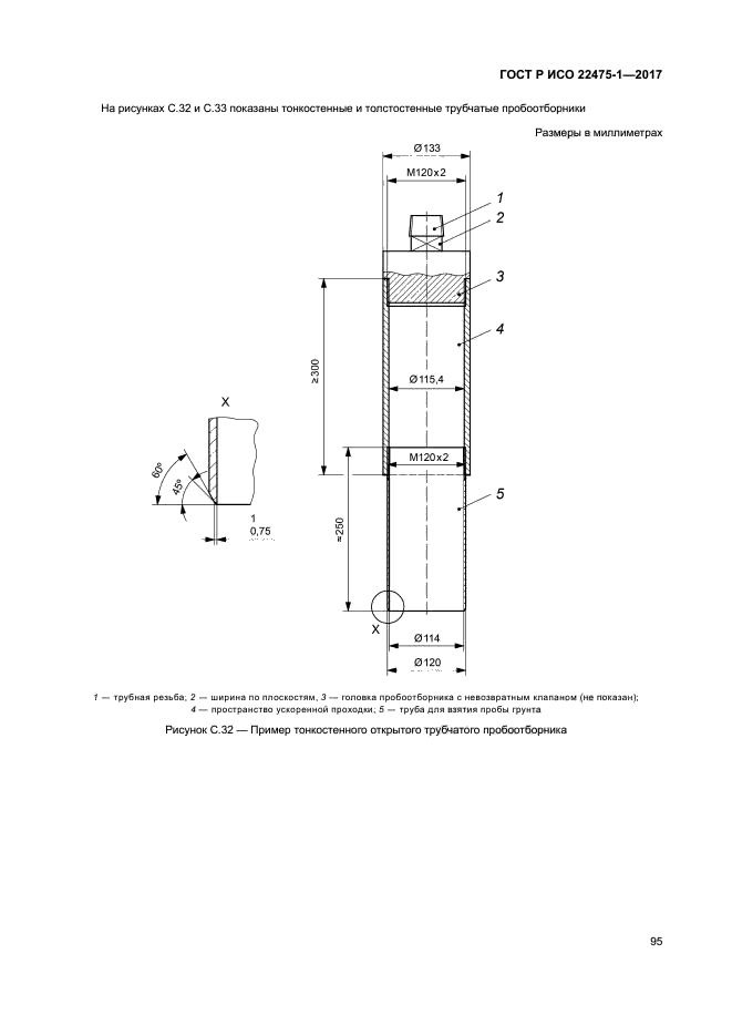
Область применения:Настоящий стандарт устанавливает технические принципы отбора проб грунта, скальной породы и подземной воды, а также измерений подземных вод в контексте геотехнического исследования и испытания, согласно EН 1997-1 и EН 1997-2. Выделяют следующие цели таких инженерно-геологических изысканий: a) отбор проб грунтов и скальных пород качества, достаточного для того, чтобы оценивать общее состояние рабочей площадки для геотехнических инженерных целей и устанавливать необходимые характеристики грунтов и скальных пород в лаборатории; b) получения информации о последовательности, мощности и ориентации пластов, а также о системе трещин и разломов; c) определение типа, состава и состояния пластов; d) получения информации о режиме подземных вод и отбор проб воды для оценки взаимодействия подземных вод, грунта, скальной породы и строительного материала. На качество пробы влияют геологические и гидрологические условия, отбор и выполнение бурения и/или метод взятия проб, обращение с пробами, их транспортирование и хранение. Настоящий стандарт не устанавливает требования к отбору проб для целей сельскохозяйственного и экологического исследования почвы
Расположен в:Государственные стандарты Общероссийский классификатор стандартов Гражданское строительство Земляные работы. Выемка грунта. Сооружение фундаментов. Подземные работы Классификатор государственных стандартов Строительство и стройматериалы Строительные конструкции и детали Методы испытаний. Упаковка. Маркировка
ГОСТ Р ИСО 22475-1-2017ГОСТ Р ИСО 22475-1-2017ГОСТ Р ИСО 22475-1-2017ГОСТ Р ИСО 22475-1-2017ГОСТ Р ИСО 22475-1-2017ГОСТ Р ИСО 22475-1-2017ГОСТ Р ИСО 22475-1-2017ГОСТ Р ИСО 22475-1-2017ГОСТ Р ИСО 22475-1-2017ГОСТ Р ИСО 22475-1-2017ГОСТ Р ИСО 22475-1-2017ГОСТ Р ИСО 22475-1-2017ГОСТ Р ИСО 22475-1-2017ГОСТ Р ИСО 22475-1-2017ГОСТ Р ИСО 22475-1-2017ГОСТ Р ИСО 22475-1-2017ГОСТ Р ИСО 22475-1-2017ГОСТ Р ИСО 22475-1-2017ГОСТ Р ИСО 22475-1-2017ГОСТ Р ИСО 22475-1-2017ГОСТ Р ИСО 22475-1-2017ГОСТ Р ИСО 22475-1-2017ГОСТ Р ИСО 22475-1-2017ГОСТ Р ИСО 22475-1-2017ГОСТ Р ИСО 22475-1-2017ГОСТ Р ИСО 22475-1-2017ГОСТ Р ИСО 22475-1-2017ГОСТ Р ИСО 22475-1-2017ГОСТ Р ИСО 22475-1-2017ГОСТ Р ИСО 22475-1-2017ГОСТ Р ИСО 22475-1-2017ГОСТ Р ИСО 22475-1-2017ГОСТ Р ИСО 22475-1-2017ГОСТ Р ИСО 22475-1-2017ГОСТ Р ИСО 22475-1-2017ГОСТ Р ИСО 22475-1-2017ГОСТ Р ИСО 22475-1-2017ГОСТ Р ИСО 22475-1-2017ГОСТ Р ИСО 22475-1-2017ГОСТ Р ИСО 22475-1-2017ГОСТ Р ИСО 22475-1-2017ГОСТ Р ИСО 22475-1-2017ГОСТ Р ИСО 22475-1-2017ГОСТ Р ИСО 22475-1-2017ГОСТ Р ИСО 22475-1-2017ГОСТ Р ИСО 22475-1-2017ГОСТ Р ИСО 22475-1-2017ГОСТ Р ИСО 22475-1-2017ГОСТ Р ИСО 22475-1-2017ГОСТ Р ИСО 22475-1-2017ГОСТ Р ИСО 22475-1-2017ГОСТ Р ИСО 22475-1-2017ГОСТ Р ИСО 22475-1-2017ГОСТ Р ИСО 22475-1-2017ГОСТ Р ИСО 22475-1-2017ГОСТ Р ИСО 22475-1-2017ГОСТ Р ИСО 22475-1-2017ГОСТ Р ИСО 22475-1-2017ГОСТ Р ИСО 22475-1-2017ГОСТ Р ИСО 22475-1-2017ГОСТ Р ИСО 22475-1-2017ГОСТ Р ИСО 22475-1-2017ГОСТ Р ИСО 22475-1-2017ГОСТ Р ИСО 22475-1-2017ГОСТ Р ИСО 22475-1-2017ГОСТ Р ИСО 22475-1-2017ГОСТ Р ИСО 22475-1-2017ГОСТ Р ИСО 22475-1-2017ГОСТ Р ИСО 22475-1-2017ГОСТ Р ИСО 22475-1-2017ГОСТ Р ИСО 22475-1-2017ГОСТ Р ИСО 22475-1-2017ГОСТ Р ИСО 22475-1-2017ГОСТ Р ИСО 22475-1-2017ГОСТ Р ИСО 22475-1-2017ГОСТ Р ИСО 22475-1-2017ГОСТ Р ИСО 22475-1-2017ГОСТ Р ИСО 22475-1-2017ГОСТ Р ИСО 22475-1-2017ГОСТ Р ИСО 22475-1-2017ГОСТ Р ИСО 22475-1-2017ГОСТ Р ИСО 22475-1-2017ГОСТ Р ИСО 22475-1-2017ГОСТ Р ИСО 22475-1-2017ГОСТ Р ИСО 22475-1-2017ГОСТ Р ИСО 22475-1-2017ГОСТ Р ИСО 22475-1-2017ГОСТ Р ИСО 22475-1-2017ГОСТ Р ИСО 22475-1-2017ГОСТ Р ИСО 22475-1-2017ГОСТ Р ИСО 22475-1-2017ГОСТ Р ИСО 22475-1-2017ГОСТ Р ИСО 22475-1-2017ГОСТ Р ИСО 22475-1-2017ГОСТ Р ИСО 22475-1-2017ГОСТ Р ИСО 22475-1-2017ГОСТ Р ИСО 22475-1-2017ГОСТ Р ИСО 22475-1-2017ГОСТ Р ИСО 22475-1-2017ГОСТ Р ИСО 22475-1-2017ГОСТ Р ИСО 22475-1-2017ГОСТ Р ИСО 22475-1-2017ГОСТ Р ИСО 22475-1-2017ГОСТ Р ИСО 22475-1-2017ГОСТ Р ИСО 22475-1-2017ГОСТ Р ИСО 22475-1-2017ГОСТ Р ИСО 22475-1-2017ГОСТ Р ИСО 22475-1-2017ГОСТ Р ИСО 22475-1-2017ГОСТ Р ИСО 22475-1-2017

© 2013 Ёшкин Кот :-) Карта сайта