| ||||||||||||||||||||||||||||||||||
Скачать ГОСТ Р 51261-2017 Устройства опорные стационарные реабилитационные. Типы и технические требованияДата актуализации: 01.06.2025
| ||||||||||||||||||||||||||||||||||
| Обозначение: | ![]() ГОСТ Р 51261-2017 |
| Статус: | заменён |
| Название рус.: | Устройства опорные стационарные реабилитационные. Типы и технические требования |
| Название англ.: | Support stationary devices for disabled persons. Types and technical requirements |
| Дата актуализации текста: | 01.01.2021 |
| Дата актуализации описания: | 01.07.2023 |
| Дата издания: | 13.12.2017 |
| Дата введения: | 01.01.2019 |
| Дата окончания срока действия: | 01.12.2022 |
| Взамен: | ГОСТ Р 51261-99 |
| Заменяющий: | ГОСТ Р 51261-2022 |
| Нормативные ссылки: | ГОСТ 9.032; ГОСТ 9.301; ГОСТ 9.303; ГОСТ 14193; ГОСТ 15150; ГОСТ 33652-2015; ГОСТ Р 15.111; ГОСТ Р ИСО 9999; ГОСТ Р 51090-97; ГОСТ Р 51764-2001; ГОСТ Р 55137-2012; ГОСТ Р 55555-2013; ГОСТ Р 55556 |
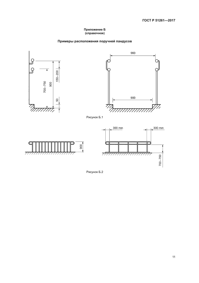
| Область применения: | Настоящий стандарт распространяется на стационарные опорные реабилитационные устройства, устанавливаемые в общественных зданиях, сооружениях и средствах общественного пассажирского транспорта и предназначенные для использования инвалидами, в том числе инвалидами, использующими для передвижения кресла-коляски, и другими маломобильными группами населения. Стандарт определяет типы опорных устройств и устанавливает технические требования к опорным устройствам. Стандарт не распространяется на опорные технические средства реабилитации инвалидов, предназначенные для индивидуального пользования (костыли, ходунки, трости и опорные устройства кресел-колясок) |
| Расположен в: | |






















