| Обозначение: |  ГОСТ Р 57795-2017 |
| Статус: | действующий |
| Название рус.: | Здания и сооружения. Методы расчета продолжительности инсоляции |
| Название англ.: | Buildings and structures. Calculation methods for duration of insolation |
| Дата актуализации текста: | 01.01.2023 |
| Дата актуализации описания: | 01.07.2023 |
| Дата издания: | 16.11.2017 |
| Дата введения: | 01.02.2018 |
| Нормативные ссылки: | СП 42.13330;СП 54.13330;СП 160.1325800 |
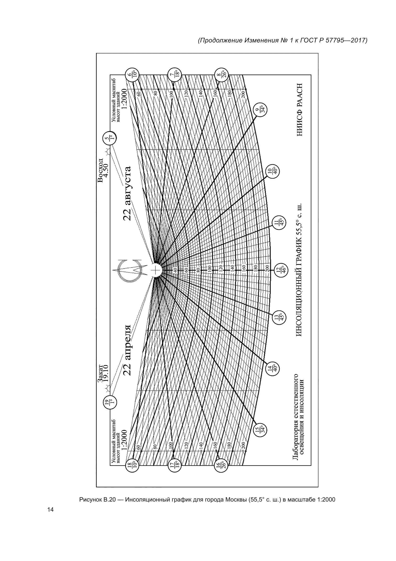
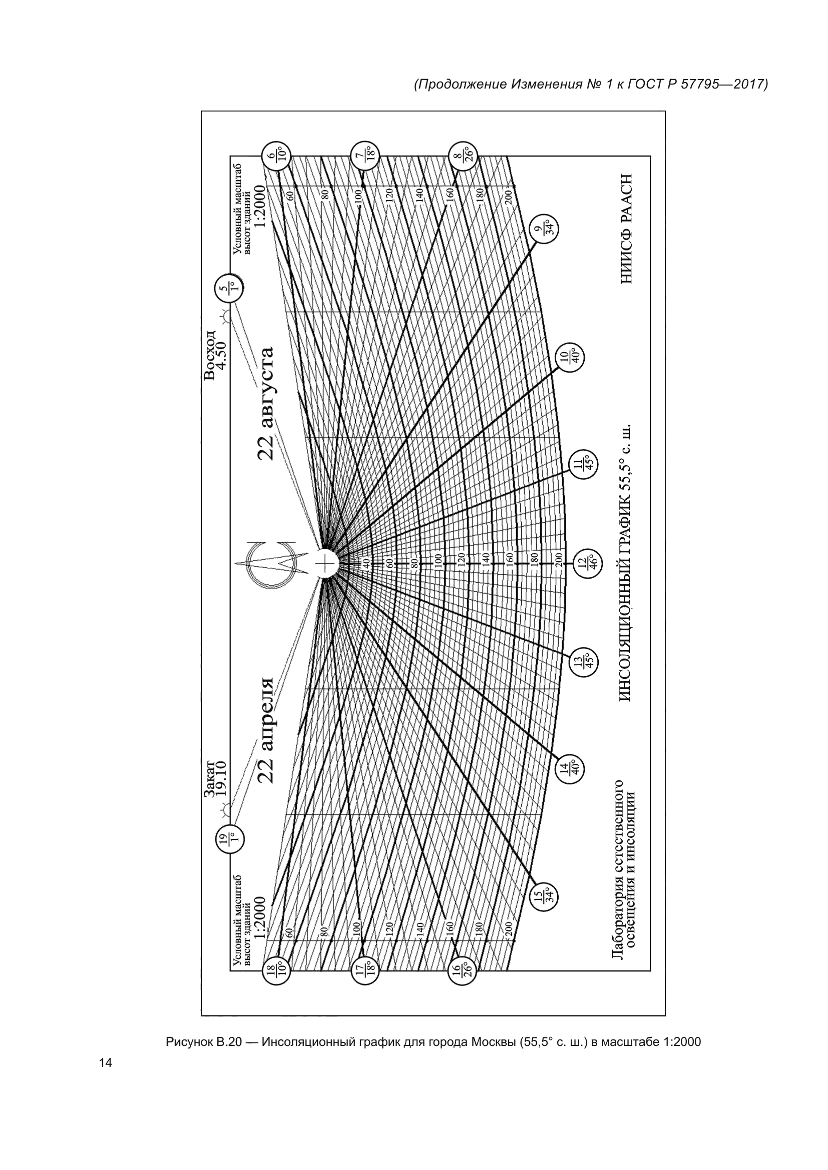
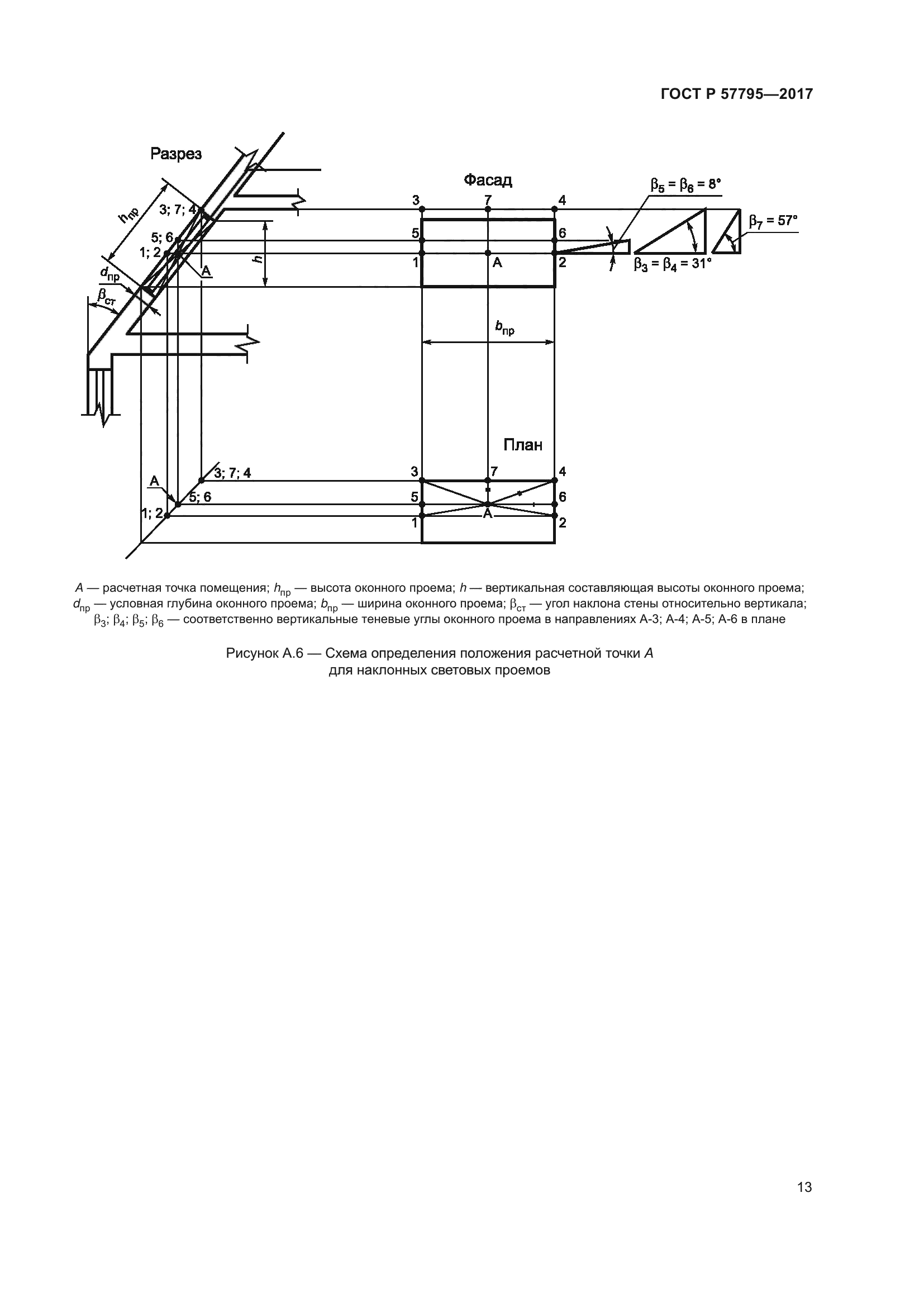
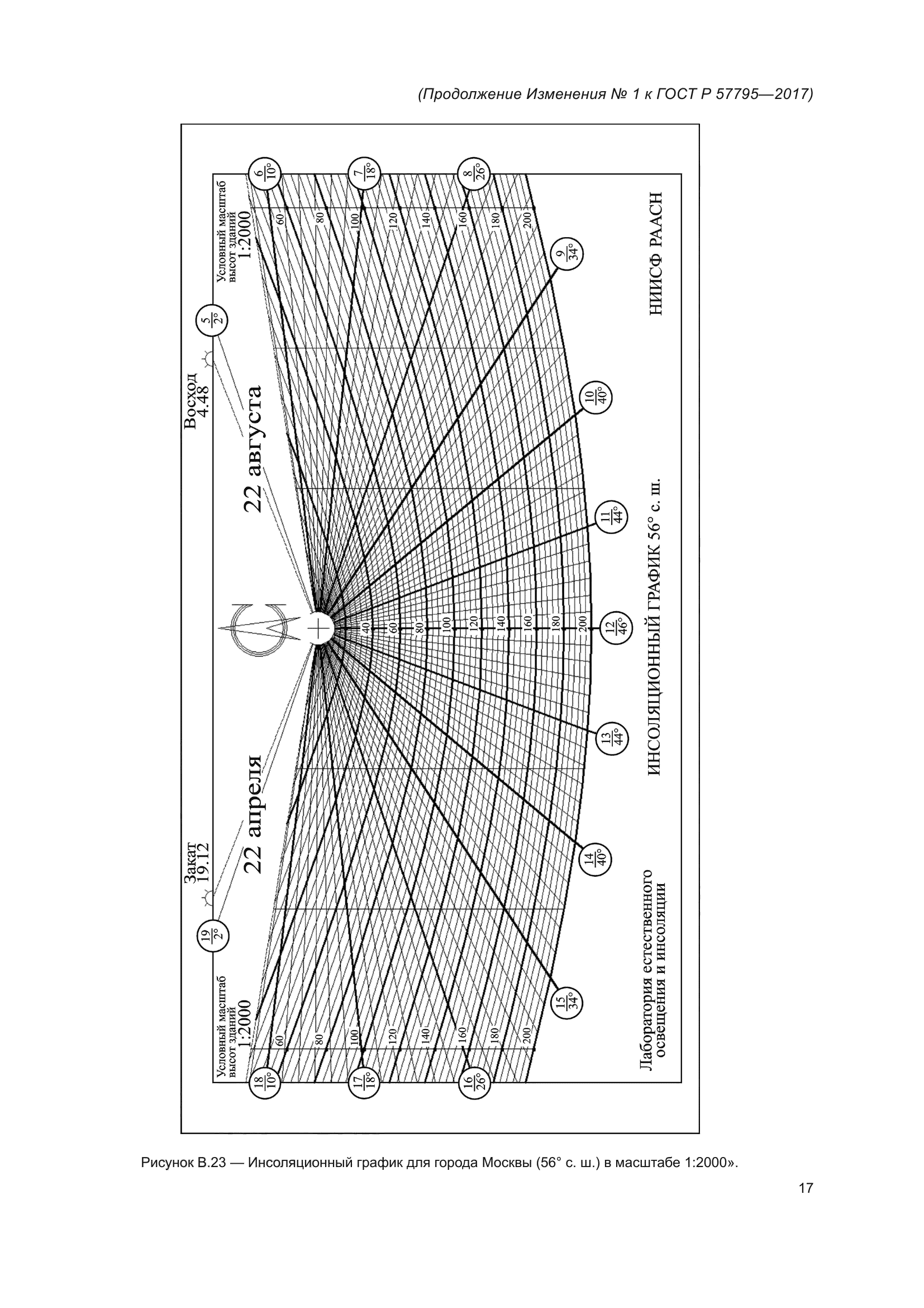
| Область применения: | Настоящий стандарт устанавливает правила расчета продолжительности инсоляции помещений жилых и общественных зданий и территорий. Стандарт применяется при выполнении проектов застройки, реконструкции и реновации существующих объектов гражданского назначения |
| Приложение №1: | Изменение №1 к ГОСТ Р 57795-2017 |
| Приложение №2: | Изменение №2 к ГОСТ Р 57795-2017 |
|
| Расположен в: |
|