| Обозначение: |    ГОСТ Р МЭК 62305-4-2016 | 
| Статус: | действующий | 
| Название рус.: | Защита от молнии. Часть 4. Защита электрических и электронных систем внутри зданий и сооружений | 
| Название англ.: | Protection against lightning. Part 4. Electrical and electronic systems within structures | 
| Дата актуализации текста: | 01.02.2017 | 
| Дата актуализации описания: | 01.07.2023 | 
| Дата издания: | 12.12.2016 | 
| Дата введения: | 01.01.2018 | 
| Аутентичен стандартам: | IEC 62305-4(2010) | 
| Нормативные ссылки: | IEC 60364-5-53(2001);IEC 60664-1(2007);IEC 61000-4-5(2005);IEC 61000-4-9(1993);IEC 61000-4-10(1993);IEC 61000-4-5(2014);IEC 61000-4-9(2016);IEC 61000-4-10(2016);IEC 61643-1(2005);IEC 61643-12(2008);IEC 61643-21;IEC 61643-22;IEC 62305-1(2010);IEC 62305-2(2010);IEC 62305-3(2010);IEC 61643-11(2011);IEC 61643-21(2009);IEC 61643-22(2015) | 
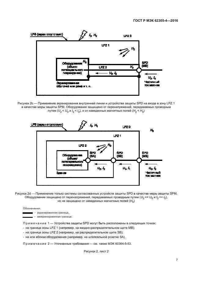
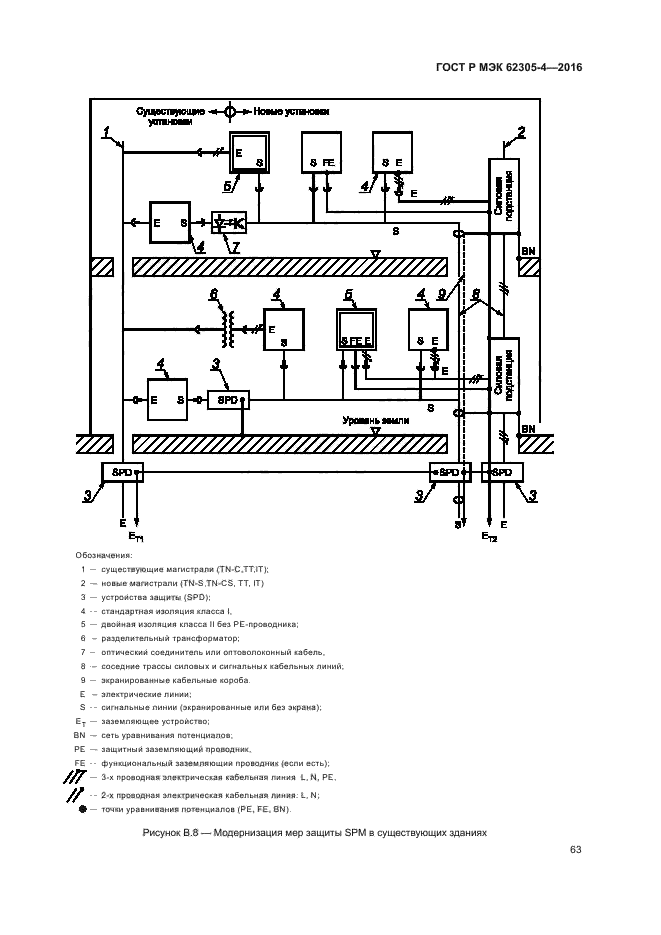
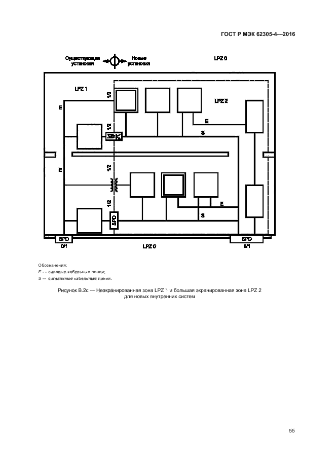
| Область применения: | Настоящий стандарт содержит информацию для проектирования, монтажа, осмотра, обслуживания и испытаний мер защиты от электромагнитных импульсных воздействий молнии (SPM), предназначенных для уменьшения риска повреждений электрических и электронных систем внутри здания электромагнитными воздействиями молнии (LEMP). Стандарт содержит также руководящие указания для совместной работы специалистов по проектированию электрической и электронной систем и по проектированию мер защиты от молнии в целях достижения оптимальной эффективности мер защиты от молнии | 
 | 
| Расположен в: | 
  |