| Обозначение: |  ГОСТ Р 57048-2016 |
| Статус: | действующий |
| Название рус.: | Система внешнего армирования из полимерных композитов. Метод определения прочности на отрыв от бетонного основания |
| Название англ.: | Polymer composites system for external reinforcement. Test method for determining pull-off strength from concrete substrate |
| Дата актуализации текста: | 01.01.2021 |
| Дата актуализации описания: | 01.07.2023 |
| Дата издания: | 14.09.2016 |
| Дата введения: | 01.03.2017 |
| Содержит требования: | ASTM D7522/D7522 M-09 |
| Нормативные ссылки: | ГОСТ 6456-82; ГОСТ Р 56762-2015 |
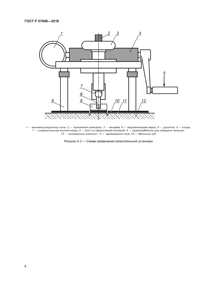
| Область применения: | Настоящий стандарт устанавливает метод определения прочности на отрыв от бетонного основания полимерных композитов, являющихся составной частью системы внешнего армирования, применяемой для усиления и восстановления различных строительных конструкций |
|
| Расположен в: |
|