| Обозначение: |  ГОСТ Р 57207-2016 |
| Статус: | действующий |
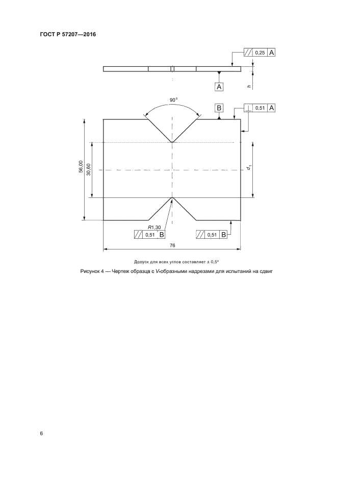
| Название рус.: | Композиты полимерные. Определение характеристик при сдвиге методом перекашивания образцов с V-образным вырезом |
| Дата актуализации текста: | 01.01.2021 |
| Дата актуализации описания: | 01.07.2023 |
| Дата издания: | 20.05.2019 |
| Дата введения: | 01.05.2017 |
| Содержит требования: | ASTM D7078/D7078 M-12 |
| Нормативные ссылки: | ГОСТ 2786-82; ГОСТ 5378-88; ГОСТ 6456-82; ГОСТ 6507-90; ГОСТ 8074-82; ГОСТ 12423-2013; ГОСТ 24888-81; ГОСТ 28840-90; ГОСТ 32794-2014; ГОСТ Р 8.585-2001; ГОСТ Р 56762-2015 |
| Область применения: | Настоящий стандарт распространяется на полимерные композиты (ПК), армированные непрерывными или дискретными волокнами, и устанавливает метод определения характеристик при сдвиге при испытании образцов с V-образным надрезом |
|
| Расположен в: |
|