| Обозначение: |  ГОСТ Р 56926-2016 |
| Статус: | действующий |
| Название рус.: | Конструкции оконные и балконные различного функционального назначения для жилых зданий. Общие технические условия |
| Название англ.: | Window and balcony constructions of different functional purpose for residential buildings. General specifications |
| Дата актуализации текста: | 01.01.2023 |
| Дата актуализации описания: | 01.07.2023 |
| Дата издания: | 20.06.2016 |
| Дата введения: | 01.11.2016 |
| Нормативные ссылки: | ГОСТ 21.501; ГОСТ 111-2014; ГОСТ 23166-99; ГОСТ 26602.1; ГОСТ 26602.2; ГОСТ 26602.4; ГОСТ 26602.5; ГОСТ 30244; ГОСТ 30494-2011; ГОСТ 30674; ГОСТ 30698-2014; ГОСТ 30777; ГОСТ 30826; ГОСТ 30971-2012; ГОСТ 31462; ГОСТ 26602.3; ГОСТ 33575-2015; ГОСТ Р 54858-2011;СП 4.13130;СП 20.13330.2011 СНиП 2.01.07-85;СП 50.13330 СНиП 23-02-2003;СП 51.13330 СНиП 23-03-2003;СП 52.13330.2011 СНиП 23-05-95;СП 54.13330.2011 СНиП 31-01-2003;СП 55.13330 СНиП 31-02-2001;СП 60.13330 СНиП 41-02-2003;СП 131.13330.2012 СНиП 23-01-99;СП 20.13330.2016;СП 48.13330.2019;СП 50.13330.2012;СП 51.13330.2011;СП 52.13330.2016;СП 54.13330.2016;СП 55.13330.2016 «СНиП 31-02-2001;СП 60.13330.201;СП 131.13330.2018;СП 267.1325800.2016 |
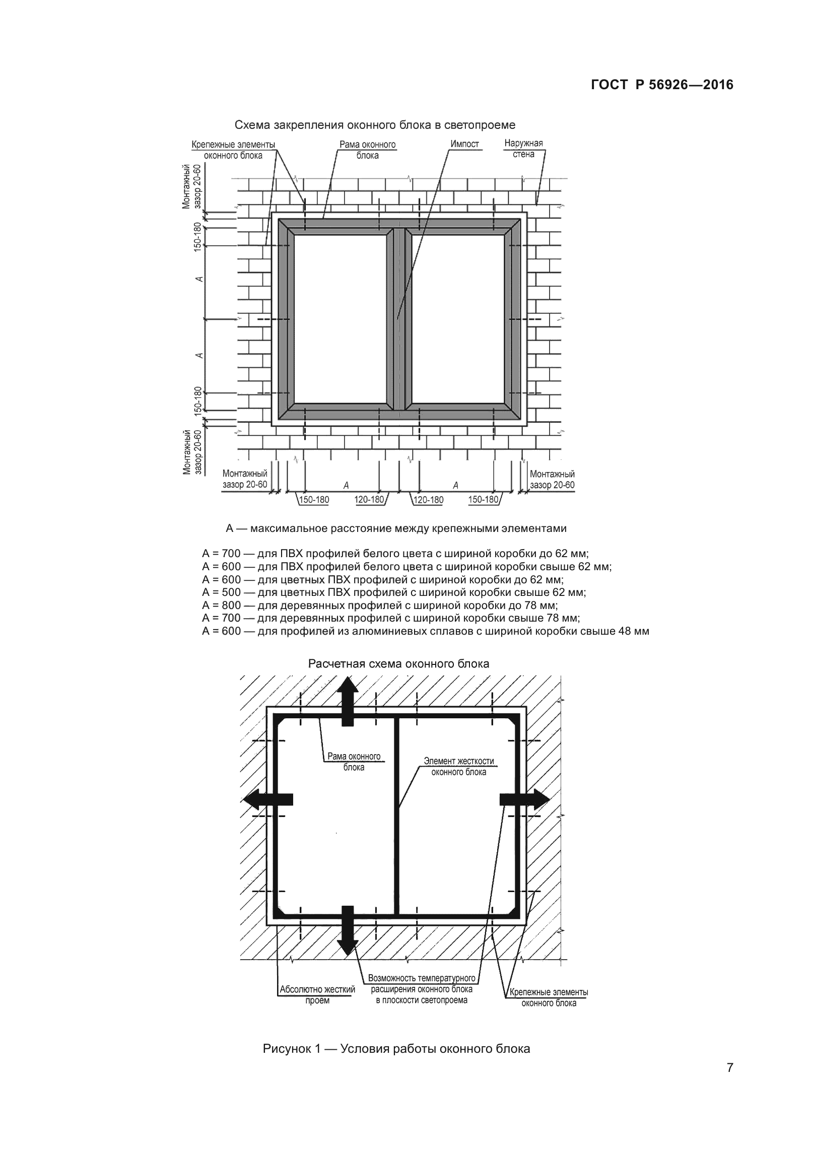
| Область применения: | Настоящий стандарт распространяется: - на оконные и балконные конструкции для жилых зданий высотой не более 75 м, возводимых по типовым и индивидуальным проектам в соответствии с СП 54.13330 во всех климатических районах Российской Федерации согласно территориальному климатическому районированию в соответствии с СП 131.13330; -элементы заполнения светопроемов помещений квартир, лестничных клеток, коридоров и лифтовых холлов, а также на конструкции наружного остекления балконов и лоджий, включая нижние балконные экраны, выполняемые из многослойного или закаленного стекла; -оконные и балконные блоки, закрепленные по контуру в проеме несущей или самонесущей наружной стены, а также наружных стен зданий с несущим железобетонным каркасом, опираемых на несущие междуэтажные перекрытия; -конструкции «холодного» остекления с заполнением одинарным листовым стеклом [включая флоат-стекло и многослойное стекло (триплекс)]; -вновь возводимые жилые здания |
| Приложение №1: | Изменение №1 к ГОСТ Р 56926-2016 |
| Приложение №2: | Поправка к ГОСТ Р 56926-2016 |
|
| Расположен в: |
|