| ||||||||||||||||||||||||||||
Скачать ГОСТ Р 56690-2015 Оборудование горно-шахтное. Пассивные средства локализации взрывов. Сланцевый заслон. Общие технические условияДата актуализации: 01.06.2025
| ||||||||||||||||||||||||||||
| Обозначение: | ![]() ГОСТ Р 56690-2015 |
| Статус: | действующий |
| Название рус.: | Оборудование горно-шахтное. Пассивные средства локализации взрывов. Сланцевый заслон. Общие технические условия |
| Дата актуализации текста: | 01.01.2021 |
| Дата актуализации описания: | 01.07.2023 |
| Дата издания: | 08.02.2016 |
| Дата введения: | 01.08.2016 |
| Код ОКП: | 314800 |
| Нормативные ссылки: | ГОСТ 2.601-2006; ГОСТ 12.1.005-88; ГОСТ 12.1.007-76; ГОСТ 12.1.044-89; ГОСТ 12.4.028-76; ГОСТ 13455-91; ГОСТ 15846-2002; ГОСТ Р 51063-97; ГОСТ Р 51569-2000; ГОСТ Р 52108-2003; ГОСТ Р 53292-2009 |
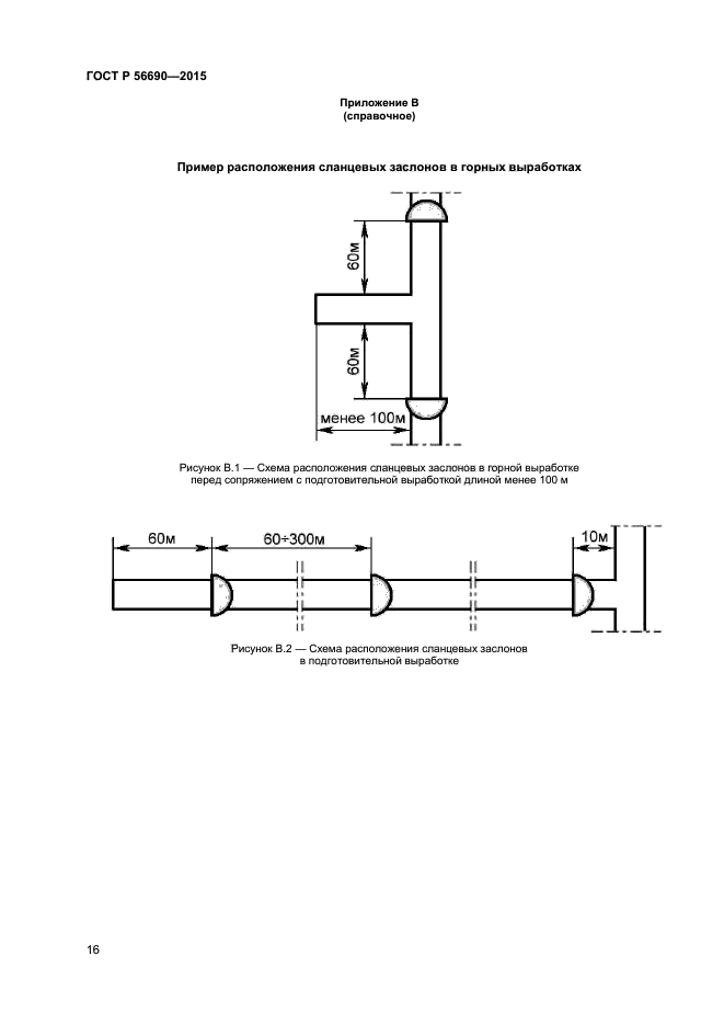
| Область применения: | Настоящий стандарт распространяется на пассивные сланцевые взрыволокализующие заслоны, предназначенные для локализации взрывов пылегазовоздушных смесей в горных выработках угольных шахт. Настоящий стандарт устанавливает технические требования по конструкции, размещению и расположению пассивных сланцевых взрыволокализующих заслонов, монтируемых в горных выработках угольных шахт, а также требования к инертной пыли, применяемой для их снаряжения, и контроля ее показателей |
| Расположен в: | |





















