| Обозначение: |  ГОСТ 21672-99 |
| Статус: | действующий |
| Название рус.: | Иллюминаторы судовые прямоугольные. Технические условия |
| Название англ.: | Ships rectangular windows. Specifications |
| Дата актуализации текста: | 06.04.2015 |
| Дата актуализации описания: | 01.07.2023 |
| Дата регистрации: | 28.05.1999 |
| Дата издания: | 22.01.2002 |
| Дата введения: | 01.01.2002 |
| Код ОКП: | 642100 |
| Взамен: | ГОСТ 21672-82 |
| Нормативные ссылки: | ГОСТ 9.014-78; ГОСТ 26.020-80; ГОСТ 263-75; ГОСТ 2712-75; ГОСТ 2991-85; ГОСТ 9424-79; ГОСТ 10198-91; ГОСТ 14192-96; ГОСТ 15150-69; ГОСТ 18477-79; ГОСТ 24597-81; ГОСТ 24634-81 |
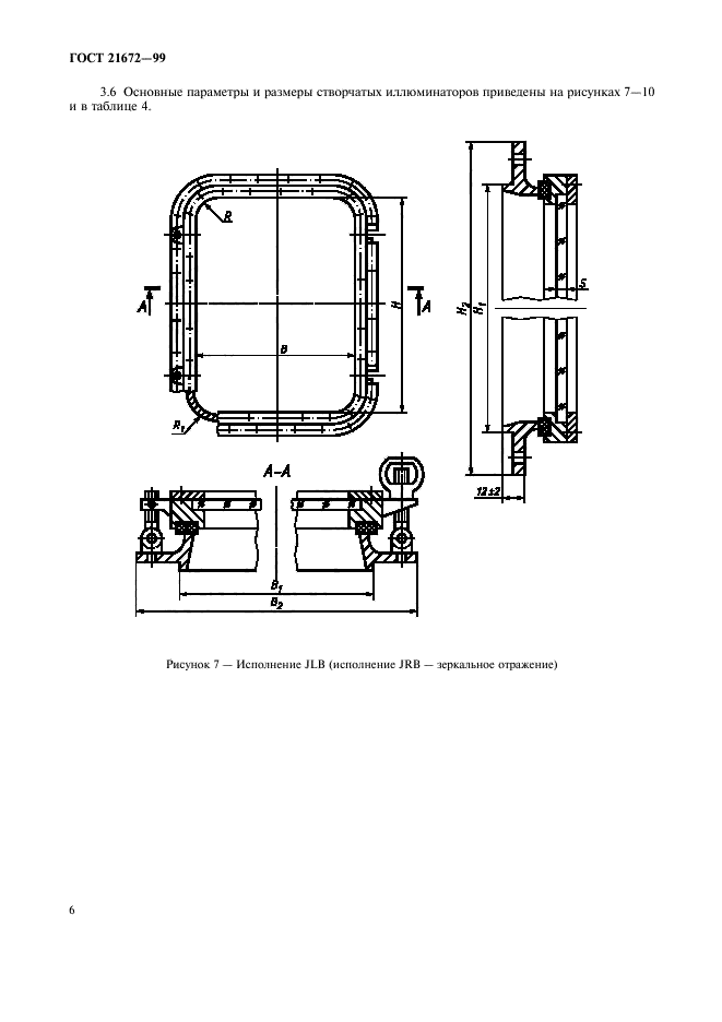
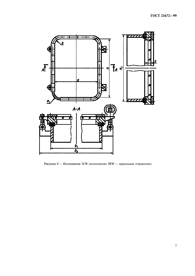
| Область применения: | Настоящий стандарт распространяется на судовые прямоугольные глухие, створчатые и универсальные иллюминаторы, применяемые на надводных судах и плавсредствах. Стандарт не распространяется на иллюминаторы судов с динамическими принципами поддержания и брызгонепроницаемые иллюминаторы, в том числе с центробежными стеклоочистителями |
|
| Расположен в: |
|