| Обозначение: |  ГОСТ Р 51325.2.3-2002 |
| Статус: | отменён |
| Название рус.: | Соединители электрические бытового и аналогичного назначения. Часть 2-3. Дополнительные требования к соединителям степени защиты свыше IPXO и методы испытаний |
| Название англ.: | Appliance couplers for household and similar general purposes. Part 2-3. Particular requirements for appliance couplers with a degree of protection higher than IPXO and methods of tests |
| Дата актуализации текста: | 06.04.2015 |
| Дата актуализации описания: | 01.07.2023 |
| Дата издания: | 18.03.2002 |
| Дата введения: | 01.01.2003 |
| Дата окончания срока действия: | 01.01.2014 |
| Код ОКП: | 346400 |
| Содержит требования: | IEC 60320-2-3(1998) |
| На территории РФ пользоваться: | ГОСТ 30851.2.3-2012 |
| Нормативные ссылки: | ГОСТ 14254-96; ГОСТ Р 51325.1-99 |
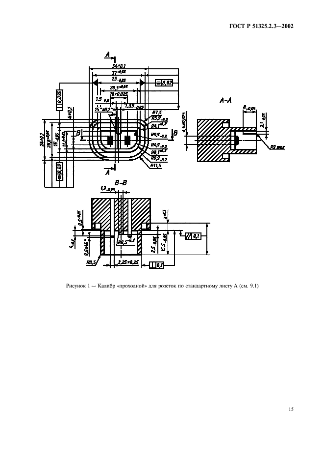
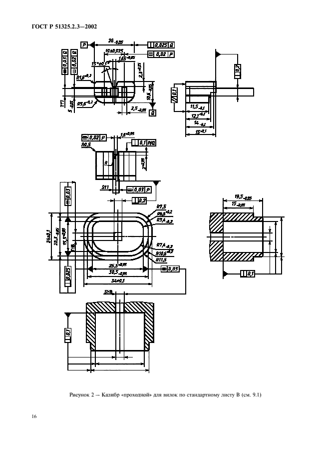
| Область применения: | Настоящий стандарт распространяется на двухполюсные соединители, эксплуатируемые в жестких условиях окружающей среды (например, повышенная влажность, низкая температура) и применяемые в электрических сетях с номинальным напряжением не выше 250 В и переменным током не более 10 А. Соединители предназначены для подключения гибкого кабеля или шнура к переносным электрическим приборам защиты II |
| Список изменений: | №0 от 01.01.2014 (рег. 15.11.2012) «Текстовое изменение; Изменено заглавие» |
|
| Расположен в: |
|