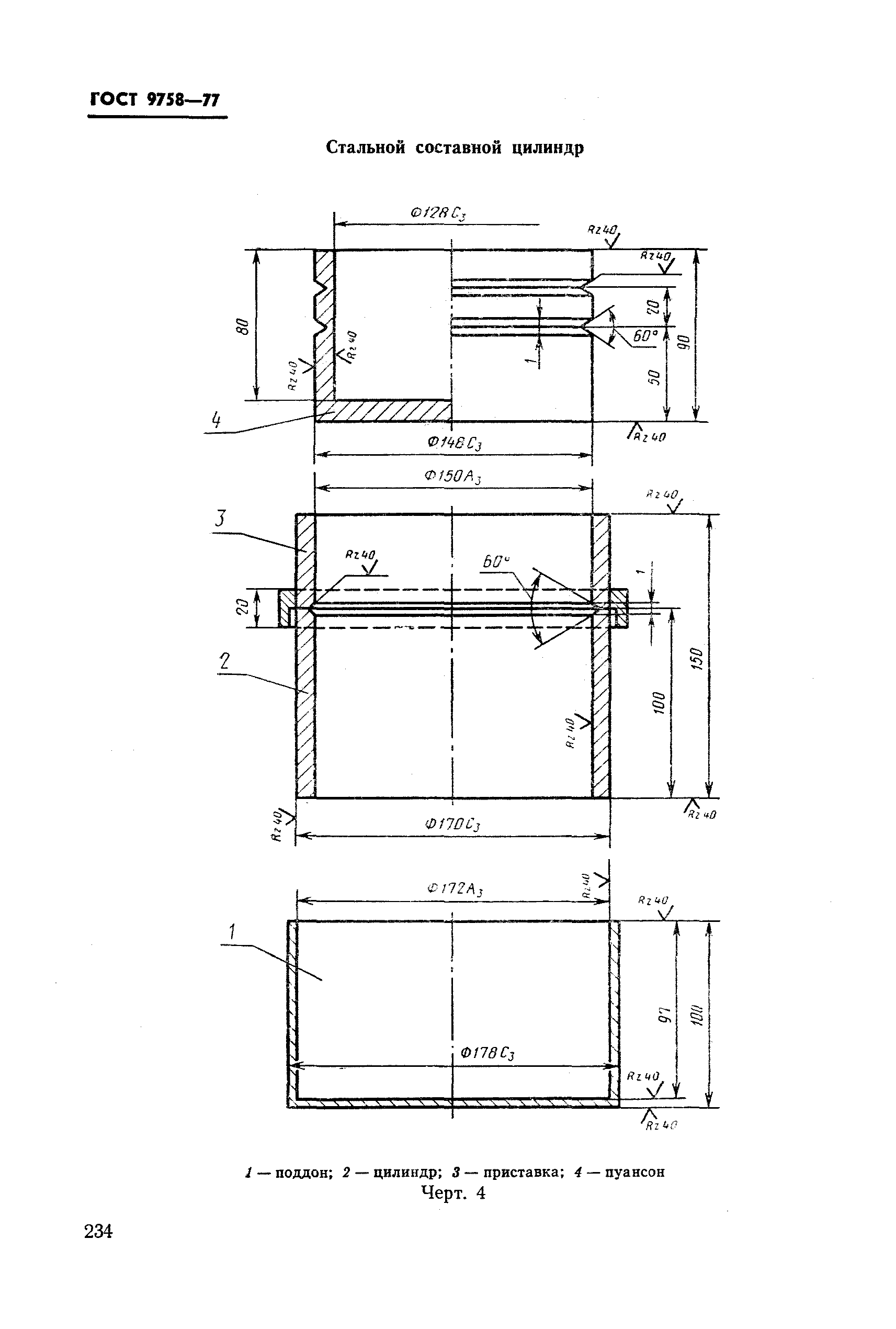
Скачать ГОСТ 9758-77 Заполнители пористые неорганические для бетона. Методы испытанийДата актуализации: 01.06.2025 ГОСТ 9758-77
Заполнители пористые неорганические для бетона. Методы испытаний
| Обозначение: |  ГОСТ 9758-77 |
| Статус: | не действует в РФ |
| Название рус.: | Заполнители пористые неорганические для бетона. Методы испытаний | | Дата актуализации текста: | 06.04.2015 | | Дата актуализации описания: | 01.06.2019 | | Дата введения: | 01.01.1979 | |
| Расположен в: |
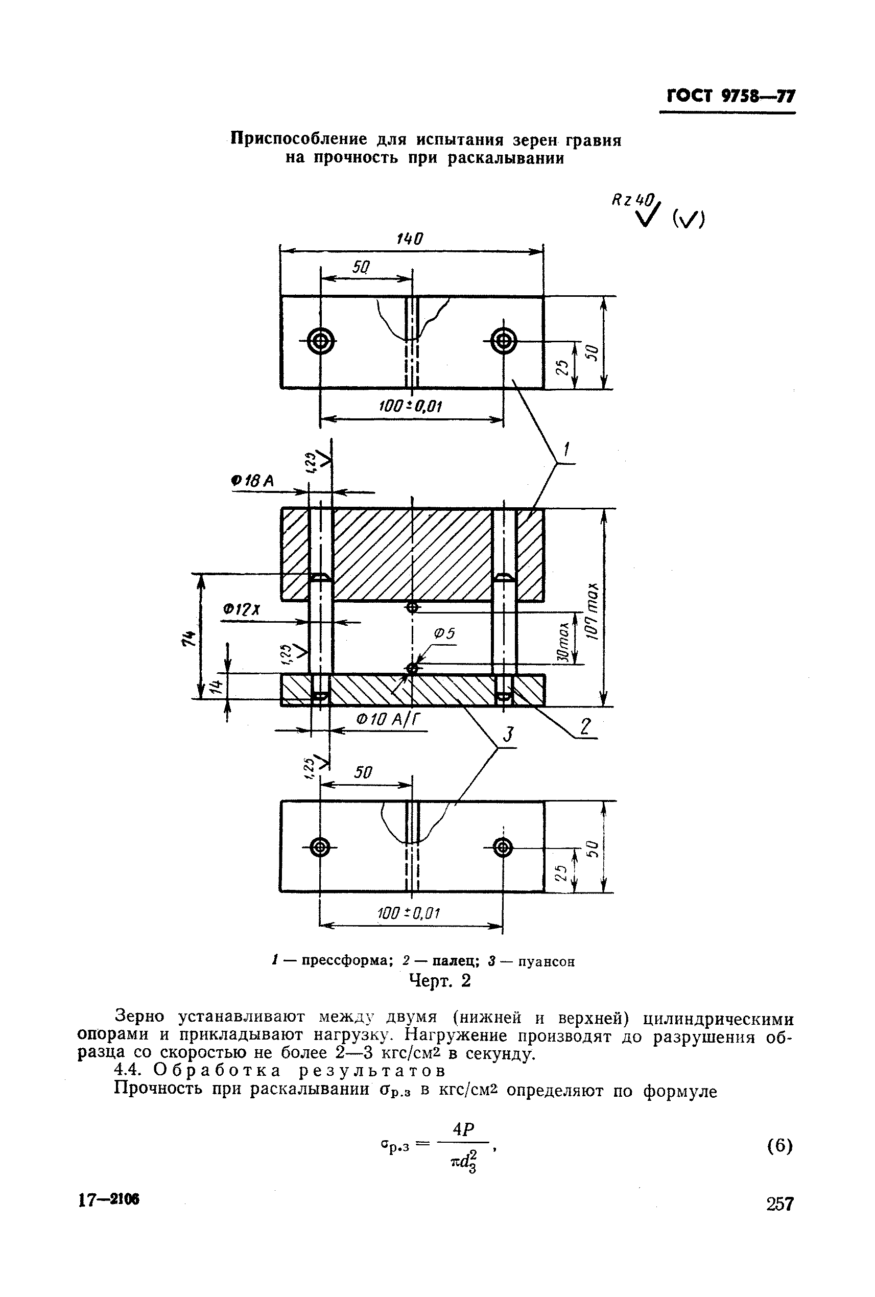
|
                                                  
|