Скачать ГОСТ 7875-56 Огнеупорные изделия. Метод определения термической стойкостиДата актуализации: 01.06.2025 ГОСТ 7875-56
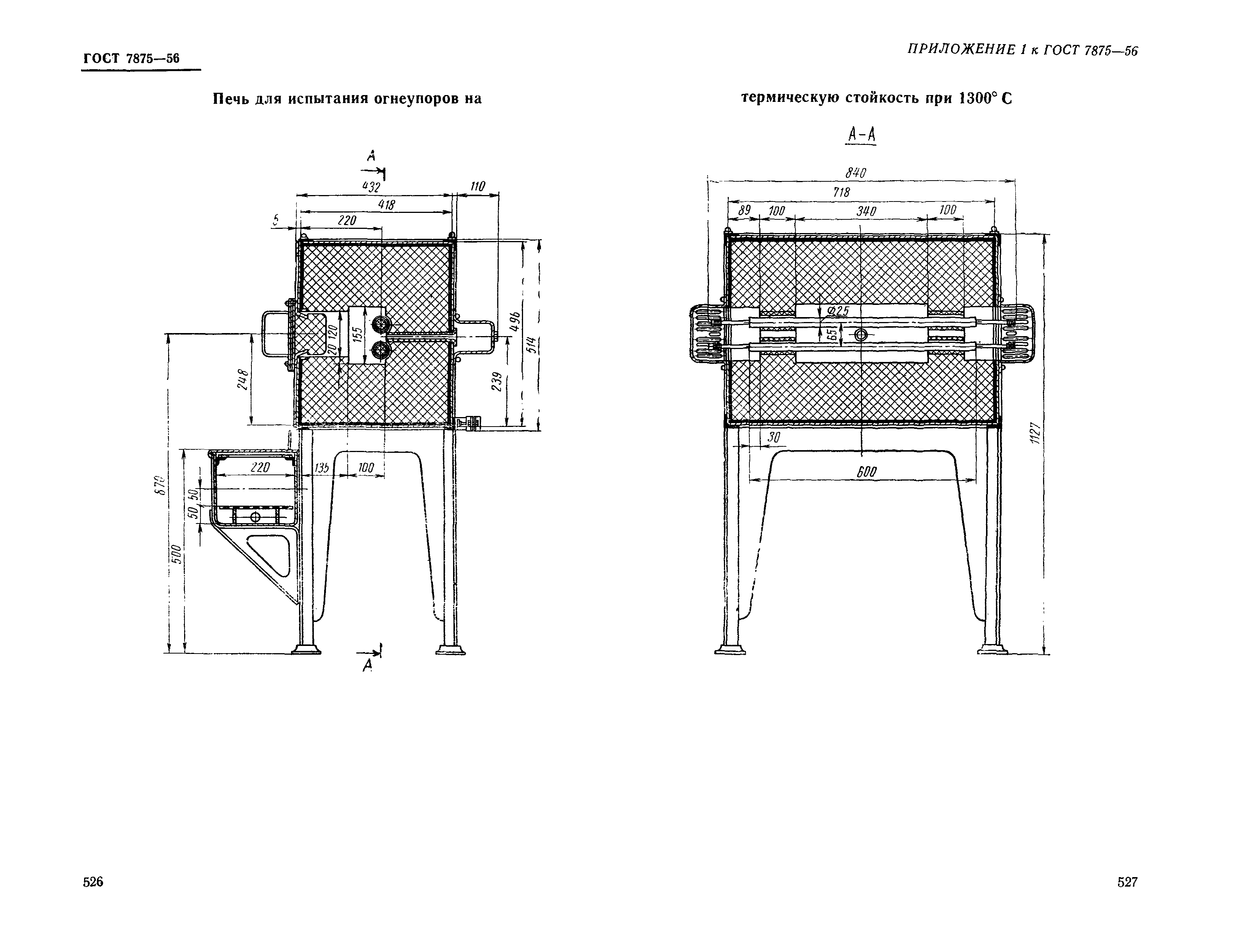
Огнеупорные изделия. Метод определения термической стойкости
| Обозначение: |  ГОСТ 7875-56 |
| Статус: | не действует в РФ |
| Название рус.: | Огнеупорные изделия. Метод определения термической стойкости | | Дата актуализации текста: | 06.04.2015 | | Дата актуализации описания: | 01.06.2019 | | Дата введения: | 01.01.1957 | |
| Расположен в: |
|
         
|