Информационная система
«Ёшкин Кот»

Скачать базу одним архивом
Скачать обновления
История создания базы
Карта сайта

Скачать ГОСТ Р 56297-2014 Кабины железобетонные защитные для взрывоопасных производств. Технические требования и оценка прочности

Дата актуализации: 01.06.2025

ГОСТ Р 56297-2014

Кабины железобетонные защитные для взрывоопасных производств. Технические требования и оценка прочности

Обозначение: ГОСТ Р 56297-2014
Статус:действующий
Название рус.:Кабины железобетонные защитные для взрывоопасных производств. Технические требования и оценка прочности
Дата актуализации текста:01.01.2021
Дата актуализации описания:01.01.2021
Дата издания:12.01.2015
Дата введения:01.07.2015
Код ОКП:589400
Нормативные ссылки:СП 63.13330.2012
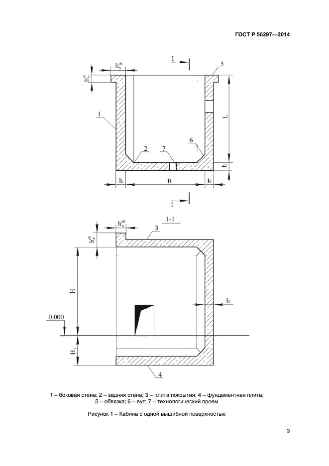
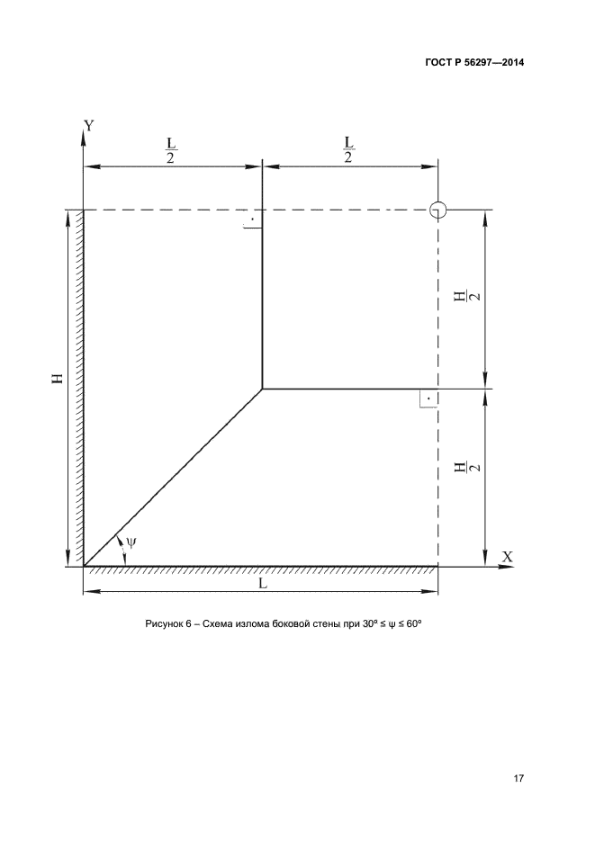
Область применения:Стандарт устанавливает метод расчета кабин на импульсное действие ударной волны (УВ) в зависимости от величины, химической природы заряда взрывчатого вещества, находящегося в кабине, и его расположения. Настоящий стандарт распространяется на монолитные железобетонные кабины, имеющие одну или две вышибные поверхности и предназначенные для локализации взрыва при детонации конденсированных взрывчатых веществ (ВВ) и обеспечения безопасности обслуживающего персонала
Расположен в:Государственные стандарты Общероссийский классификатор стандартов Строительные материалы и строительство Конструкции зданий Бетонные конструкции Классификатор государственных стандартов Строительство и стройматериалы Строительные конструкции и детали Каменные, кирпичные, бетонные и железобетонные конструкции и детали Окп Конструкции и детали сборные железобетонные Конструктивные и архитектурно-строительные элементы зданий и сооружений Архитектурно-строительные элементы зданий и сооружений
ГОСТ Р 56297-2014ГОСТ Р 56297-2014ГОСТ Р 56297-2014ГОСТ Р 56297-2014ГОСТ Р 56297-2014ГОСТ Р 56297-2014ГОСТ Р 56297-2014ГОСТ Р 56297-2014ГОСТ Р 56297-2014ГОСТ Р 56297-2014ГОСТ Р 56297-2014ГОСТ Р 56297-2014ГОСТ Р 56297-2014ГОСТ Р 56297-2014ГОСТ Р 56297-2014ГОСТ Р 56297-2014ГОСТ Р 56297-2014ГОСТ Р 56297-2014ГОСТ Р 56297-2014ГОСТ Р 56297-2014ГОСТ Р 56297-2014ГОСТ Р 56297-2014ГОСТ Р 56297-2014ГОСТ Р 56297-2014ГОСТ Р 56297-2014ГОСТ Р 56297-2014ГОСТ Р 56297-2014ГОСТ Р 56297-2014ГОСТ Р 56297-2014ГОСТ Р 56297-2014ГОСТ Р 56297-2014ГОСТ Р 56297-2014ГОСТ Р 56297-2014ГОСТ Р 56297-2014ГОСТ Р 56297-2014ГОСТ Р 56297-2014ГОСТ Р 56297-2014ГОСТ Р 56297-2014ГОСТ Р 56297-2014ГОСТ Р 56297-2014ГОСТ Р 56297-2014ГОСТ Р 56297-2014ГОСТ Р 56297-2014ГОСТ Р 56297-2014ГОСТ Р 56297-2014ГОСТ Р 56297-2014ГОСТ Р 56297-2014ГОСТ Р 56297-2014ГОСТ Р 56297-2014ГОСТ Р 56297-2014ГОСТ Р 56297-2014

© 2013 Ёшкин Кот :-) Карта сайта