Информационная система
«Ёшкин Кот»

Скачать базу одним архивом
Скачать обновления
История создания базы
Карта сайта

Скачать ГОСТ Р 56298-2014 Дворики железобетонные защитные. Технические требования и оценка прочности

Дата актуализации: 01.06.2025

ГОСТ Р 56298-2014

Дворики железобетонные защитные. Технические требования и оценка прочности

Обозначение: ГОСТ Р 56298-2014
Статус:действующий
Название рус.:Дворики железобетонные защитные. Технические требования и оценка прочности
Дата актуализации текста:01.01.2021
Дата актуализации описания:01.07.2023
Дата издания:12.01.2015
Дата введения:01.07.2015
Код ОКП:589400
Нормативные ссылки:СП 22.13330.2011;СП 24.13330.2011;СП 45.13330.2012;СП 63.13330.2012
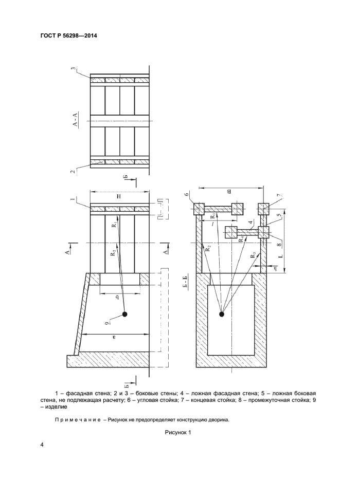
Область применения:Стандарт устанавливает метод расчета железобетонных двориков на импульсное действие ударной волны (УВ) в зависимости от массы, химической природы заряда ВВ, находящегося в кабине, и его расположения. Настоящий стандарт распространяется на железобетонные монолитные, сборно-монолитные и сборные дворики, предназначенные для частичной защиты территории, примыкающей к дворику со стороны вышибного окна кабины, от осколков оборудования при взрыве конденсированных взрывчатых веществ (ВВ) в кабине
Расположен в:Государственные стандарты Общероссийский классификатор стандартов Строительные материалы и строительство Конструкции зданий Бетонные конструкции Классификатор государственных стандартов Строительство и стройматериалы Строительные конструкции и детали Каменные, кирпичные, бетонные и железобетонные конструкции и детали Окп Конструкции и детали сборные железобетонные Конструктивные и архитектурно-строительные элементы зданий и сооружений Архитектурно-строительные элементы зданий и сооружений
ГОСТ Р 56298-2014ГОСТ Р 56298-2014ГОСТ Р 56298-2014ГОСТ Р 56298-2014ГОСТ Р 56298-2014ГОСТ Р 56298-2014ГОСТ Р 56298-2014ГОСТ Р 56298-2014ГОСТ Р 56298-2014ГОСТ Р 56298-2014ГОСТ Р 56298-2014ГОСТ Р 56298-2014ГОСТ Р 56298-2014ГОСТ Р 56298-2014ГОСТ Р 56298-2014ГОСТ Р 56298-2014ГОСТ Р 56298-2014ГОСТ Р 56298-2014ГОСТ Р 56298-2014ГОСТ Р 56298-2014ГОСТ Р 56298-2014ГОСТ Р 56298-2014ГОСТ Р 56298-2014ГОСТ Р 56298-2014ГОСТ Р 56298-2014ГОСТ Р 56298-2014ГОСТ Р 56298-2014

© 2013 Ёшкин Кот :-) Карта сайта